A kislakások berendezésekor a legnagyobb kihívást általában a funkciók elkülönítése és a tágas térérzet megőrzése jelenti. Ebben a 41 négyzetméteres otthonban a világos, semleges alapszíneket fekete kontrasztokkal és meleg, őszi tónusokkal egészítették ki, hogy stílusos és élhető környezetet teremtsenek egy fiatal egyetemista számára.
A belsőépítészeti terv fókuszában a praktikum és a hangulat rugalmas változtathatósága állt. A cél egy olyan modern, letisztult enteriőr kialakítása volt, amely egyszerre szolgálja a pihenést, a tanulást és a társasági életet. A színpaletta alapját a világosszürke és a fehér adja, amit grafikus fekete elemek kereteznek, míg az otthonosságért az okkersárga és a rozsdabarna kiegészítők felelnek.

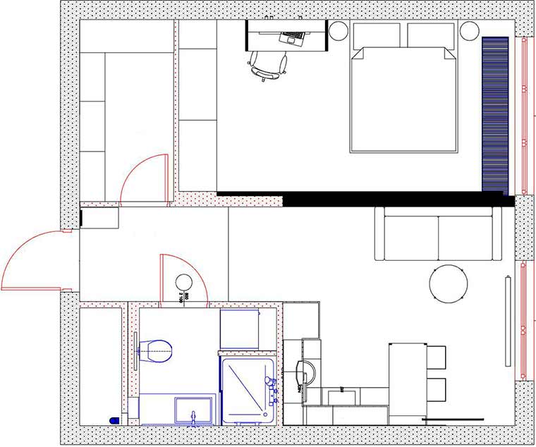
Az eredeti állapot és a tér átalakítása
Az új ingatlanban az eredeti alaprajz szerint egy fal választotta volna el a konyhát a szobától, ám a tervező és a lakó közösen úgy döntöttek, hogy ezt nem építik meg. Ehelyett a nyitott teret preferálták, a háló zónát pedig egy elegáns, eltolható üvegfallal szeparálták el. Ez a megoldás lehetővé teszi, hogy a természetes fény az egész lakást bejárja, ugyanakkor a funkciók vizuálisan mégis különválnak. A fürdőszoba kivételével az egész lakásban egységes, strapabíró vinyl padlóburkolatot fektettek le, a falakat pedig matt, világosszürke festéssel látták el.
Előszoba és tárolás
A belépőt egy tükörrel kombinált bejárati ajtó fogadja, amely optikailag tágítja a szűkebb belépőteret – a falak színe harmonizál az ajtókeret szürke árnyalatával. A funkcionális berendezést egy élénk színű puff és a felette elhelyezett falikarok egészítik ki; utóbbiak esti fényben látványos, grafikus fénycsóvákat vetítenek a falra, kiemelve az ott elhelyezett művészeti alkotást. A tárolást okosan oldották meg: mivel a bejárattól balra egy külön gardróbszobát alakítottak ki, az előszobát nem terhelik súlyos szekrények, csupán egy kecses kulcstartó polc és a napi használatban lévő kabátoknak szánt akasztók kaptak helyet.
Konyha és étkező
A konyha-nappali egységét nem törték meg vizuálisan, így a tér tágas maradt. Az egyedi tervezésű sarokkonyha matt fóliás frontokkal és tartós akrilkő munkalappal készült, amelynek nagy előnye, hogy esetleges karcolódás esetén polírozható. A konyhai hátfal és az oldalsó falfelület terrazzo mintás greslap burkolatot kapott, ami játékosságot visz a monokróm bútorzatba. Az étkező funkciót egy reggelizőpult látja el, amely plusz munkafelületként is szolgál a főzéshez. A pult felett hangsúlyos, fekete-fehér függőlámpák gondoskodnak a célzott világításról.
Ez is érdekelhet: Költséghatékony elegancia: felújítás 41 m²-es lakásban szürke árnyalatokkal
Nappali zóna
A közösségi tér középpontjában egy különleges, lekerekített formájú, texturált buklé szövettel kárpitozott kanapé áll. Ez a darab nemcsak kényelmes pihenőhely, hanem a lakás stílusának meghatározó eleme is. A dekorációt okker színű díszpárnákkal frissítették fel, amelyek az őszi hangulatot idézik. A világítás itt is rétegzett: a mennyezeti lámpák mellett a hangulatvilágítás is fontos szerepet kap, harmonizálva a lakás többi részével.
Ez is érdekelhet: Otthonról dolgozó fiatal informatikus lakása: Japandi harmónia 41 m²-en
Hálószoba és munkasarok
A háló zóna a lakás egyik legsokoldalúbb pontja. Itt kapott helyet a tanuláshoz elengedhetetlen munkasarok egy sötét tónusú asztallal és egy retró ihletésű, kényelmes székkel. A falat egyedi, szalagmintás absztrakt kép díszíti, amelynek motívuma visszaköszön az előszobai akasztók és a konyhai lámpák formavilágában is. Az ablak melletti fal mentén egy nagyméretű, beépített gardróbszekrény biztosít bőséges tárolóhelyet, amelynek nyitott polcos részei faerezetes felülettel visznek természetességet a szobába. A hálóban lemondtak a központi csillárról; helyette a szekrény mentén süllyesztett spotlámpák, asztali lámpa, az ágy két oldalán olvasólámpák, dekorációként pedig félgömb alakú falikarok teremtenek intimitást.
Fürdőszoba
A fürdőszobában a falakat és a padlót kőmintás porcelán burkolat borítja. A helytakarékosság jegyében kád helyett épített zuhanyzót alakítottak ki. A mosdópult itt is akrilkőből készült, amely alá méretre gyártott tárolószekrényt illesztettek. A mosdó mellett praktikus polcok találhatók az apróságoknak, egy falfülkében pedig egymásra rakva helyezték el a mosó- és szárítógépet, amelyek felett egy mély tárolórendszer segíti a rendszerezést.
további cikkek kis lakás berendezése témában | lakberendezés: Nina Abaseeva | fotók: Alekszandr Gavrilov























