Hogyan lehet egy kis egyszobás lakás egyszerre inspiráló home office és nyugodt menedék? A válasz a funkciók átgondolt szétválasztásában és a Japandi stílus letisztult eleganciájában rejlik. A 41 négyzetméteres otthont a tervező a saját fivére, egy távmunkában dolgozó fiatal informatikus számára alkottat meg.
A projekt koncepciója
A tulajdonos életvitele határozta meg a tervezés fő irányvonalait: mivel az IT szektorban dolgozó fiatalember ideje nagy részét otthon tölti, a térnek kettős célt kellett szolgálnia. Egyrészt biztosítania kellett egy zavartalan, koncentrációt segítő munkakörnyezetet, másrészt egy pihentető, stresszmentes életteret. A tervező feladata a funkciók vizuális és fizikai elszeparálása volt, mindezt úgy, hogy a végeredmény egy koherens, „nyugalmat árasztó” enteriőr legyen, amely nem tereli el a figyelmet a napi teendőkről, munka után pedig segíti a kikapcsolódást.

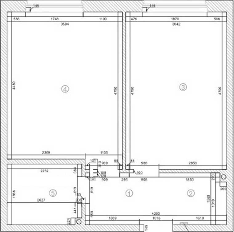
Alaprajz és térszervezés
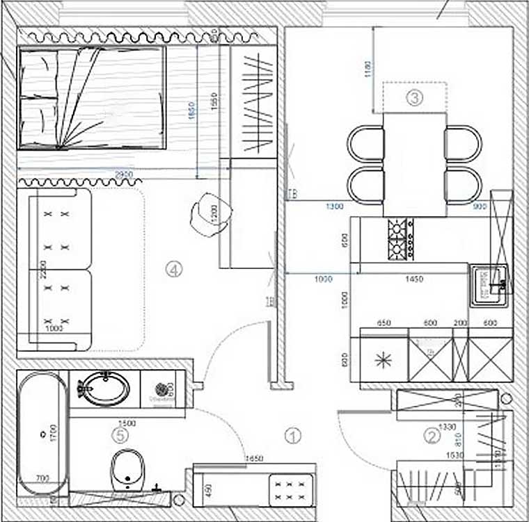
Az ingatlan eredeti adottságai kedvezőek voltak: a fejlesztő által kialakított alaprajz különálló konyhát, egy tágas szobát és egy fürdőszobát tartalmazott, így a tereken nem volt szükséges drasztikusan változtatni. A legfontosabb alaprajzi beavatkozás az előszobában történt, ahol egy önálló gardróbhelyiséget választottak le, tehermentesítve ezzel a lakás többi részét a tárolás alól. A fő lakóhelyiségben a legnagyobb kihívást a háló- és a nappali-munkazóna elkülönítése jelentette.
Az előtérben a leválasztott gardrób elnyeli a ruházatot és az olyan terjedelmesebb sporteszközöket, mint például a snowboard, így az előtér mindig rendezett maradhat. A vizuális könnyedség érdekében a bejáratnál csupán egy mennyezetről függesztett fogas és egy lebegő hatású cipőtároló kapott helyet.
A padlót tartós, terrazzo mintázatú greslappal burkolták, de nem álltak meg a járófelületnél: a praktikum és a vizuális egység jegyében ugyanez a burkolat fut fel a bejárati ajtó körüli falszakaszra és a kávákra is, strapabíró és látványos keretet adva a bejárati zónának.
A konyha bár alapterületét tekintve kompakt, az „U” alakú elrendezésnek köszönhetően maximális helykihasználást biztosít. A térérzet növelése érdekében a tervező elhagyta a felső konyhaszekrényeket, helyettük magas, mennyezetig érő kamra- és gépszekrényekbe rejtette a funkciókat.
A könnyedebb összhatás érdekében csupán egy kisebb, üveges vitrinszekrény került a falra. A figyelem középpontjában a kőhatású kerámia hátfal áll, amelyet rejtett világítás emel ki. Az étkezőasztal, markáns fa textúrájával, szinte „hozzánő” a konyhabútorhoz, természetes kontrasztot alkotva a modernebb felületekkel.
Az alapvilágítást a mennyezetbe süllyesztett spotlámpák biztosítják, de az igazi hangulatot a gondosan megtervezett kiegészítő fényforrások adják. A konyhaasztal felett szoborszerű függesztékek vonzzák a tekintetet.
Nappali és munkasarok
A lakás központi helyiségét a nappali és a dolgozósarok uralja. A falakat vakolathatású, texturált díszfestéssel látták el, amelyre a fal színével megegyező díszlécek kerültek – ez a megoldás finom dinamikát és plasztikusságot kölcsönöz a térnek anélkül, hogy túldíszítetté tenné.
A padlón világos tónusú, fahatású laminált burkolat fut végig, melegséget csempészve az enteriőrbe. A berendezés gerincét egy kényelmes sarokkanapé, vele szemben pedig egy fiókos, funkcionális íróasztal alkotja, biztosítva a kényelmes munkavégzést.
Háló zóna
A térszervezés legizgalmasabb eleme a hálórész leválasztása. A privát szférát egy épített dobogó jelöli ki, amelyre a matrac került. Ez a szinteltolás nemcsak vizuálisan, de funkcionálisan is elkülöníti az alvást a nappali élettértől. A dobogón kapott helyet a ruhásszekrény is. Az intimitást tovább fokozza egy áttetsző textilfüggöny, amely igény szerint teljesen elszeparálja, vagy épp csak sejtelmesen takarja a pihenő zónát.
Fürdőszoba
A vizesblokkban a természetes kövek világa dominál. A falakon és a padlón a kőmintázatú greslapok különböző árnyalatai és textúrái váltják egymást, elkerülve a monotonitást. A mosdózónában a tervező kisméretű, téglalap alakú csempékkel törte meg a nagy lapok egységét, játékosságot víve a térbe, így a fürdőszoba nem hat rideg kőbarlangnak. A tárolást a mosógép mellett elhelyezett mosdószekrény és a WC-tartály feletti beépítés oldja meg.
A Japandi esszenciája
A lakás stílusa a manapság rendkívül népszerű Japandi jegyeit hordozza: a skandináv design funkcionalitása és egyszerűsége találkozik itt a japán esztétika minimalizmusával és eleganciájával. A színhasználat visszafogott és meleg, az anyagválasztást pedig a természetesség jellemzi – a fa és a kő textúráinak dominanciája.
további cikkek kis lakás berendezése témában | lakberendezés: Aida Prokofieva | fotók: George Trushkin





























