Hogyan teremthetünk hívogató és stílusos otthont egyetlen hálószobával, ha a költségvetés visszafogott, de az igényesség nem? Ebben a 41 m²-es lakásban a tulajdonos és a tervező egy semleges, mégis karakteres enteriőr mellett tette le a voksát. A koncepció lényege a költséghatékonyság és a minőség egyensúlya volt: a konyhabútor kivételével a berendezés szinte minden darabja online piacterekről és áruházak készletéből származik, ami jelentősen csökkentette a kiadásokat. A végeredmény azonban egyáltalán nem tükrözi a spórolós megoldásokat; a lakás teljes körűen felszerelt, kényelmes és vizuálisan egységes életteret kínál a leendő lakónak.

Eredeti állapot és az élettér kialakítása: a finom részletek ereje
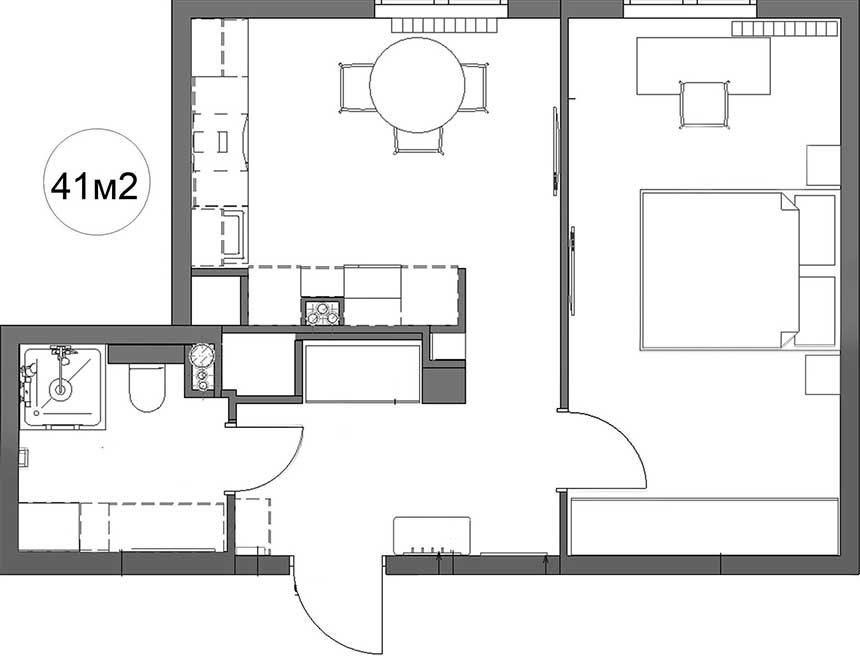
A felújítás során az eredeti alaprajzhoz nem nyúltak, falbontás nélkül sikerült optimalizálni a rendelkezésre álló teret. A lakás struktúrája klasszikus felosztású: tágas konyha, egy különálló hálószoba, gardróbbal bővített előszoba és egy kombinált fürdőszoba alkotja a helyiségeket.
A vizuális egység megteremtése érdekében a falak egységes, világosszürke festést kaptak, amelyet elegáns díszlécek tesznek plasztikusabbá és klasszikusabb hatásúvá. A burkolatok kiválasztásánál a praktikum és a tartósság volt a fő szempont: a vizes helyiségek kivételével mindenhol vinyl padló került lerakásra, amely meleg hatású, mégis rendkívül strapabíró megoldás. A mennyezet kialakítása is tartogat egy modern csavart: a feszített mennyezetet fekete szegélyléccel keretezték, ami finom grafikusságot kölcsönöz a térnek, és határozott kontúrt ad a helyiségeknek.
Előszoba: a beépített hatás illúziója
A költséghatékonyság egyik legleleményesebb megoldása itt, a tárolás kialakításánál érhető tetten. Ahelyett, hogy drága, asztalos által készített beépített szekrényeket rendeltek volna, a tervező előre kiválasztott, kész gardróbszekrényekkel dolgozott. A kivitelezők ezen bútorok pontos méreteihez igazítva építették ki a falmélyedéseket. Ez a megoldás nagyfokú precizitást igényelt – a falaknak tökéletesen derékszögűnek kellett lenniük, oldalanként minimum 1 centiméteres technológiai rést hagyva a beépítéshez –, de az eredmény egy méretre szabott bútor hatását kelti, töredékáron.
Konyha: a láthatatlan technológia
A megrendelő kifejezett kérése volt, hogy a konyhabútor ne uralja a teret, hanem vizuálisan olvadjon bele a környezetébe. Ennek érdekében a tervező sima, fogantyú nélküli vagy minimál fogantyúkkal ellátott frontokat választott, amelyek színben harmonizálnak a falakkal. Bár a megjelenés diszkrét, a felszereltség teljes: minden szükséges háztartási gép beépítésre került.
Ez az egyetlen helyiség, ahol a bútorzat asztalosmunkával készült, mivel a szekrények nem szabványos mélysége egyedi gyártást igényelt. Egy okos gépészeti megoldás is helyet kapott itt: a vízórákat és elzárókat rejtő szerelőnyílást az egyik magas elembe (kamraszekrénybe) integrálták.
Olvastad már? Hogyan lett szürke-fehér színekkel szuper lakása egy egyedülálló férfinak
Hálószoba és nappali funkciók
A különálló szoba egyszerre szolgál pihenésre és nappali tartózkodásra. A berendezés összeválogatása igazi kihívást jelentett, hiszen az online rendelt bútoroknál a szürke különböző árnyalatait kellett összehangolni. A tervező koncepciója rácáfol arra a tévhitre, hogy a monokróm enteriőrök létrehozása egyszerű feladat. A szürke színnek ugyanis számtalan arca van: zöldes, lilás vagy akár bézses altónusokkal rendelkezhet. Ezeknek a finom árnyalatoknak a patikamérlegen kimért egyensúlya teremti meg a harmóniát, elkerülve a vizuális káoszt.
A dekoráció terén a természetesség és a személyes érintés dominál. A semleges alapot élő szobanövények és kézzel festett vázák, valamint egyedi borítójú könyvek teszik otthonossá. Ezek az apró részletek töltik meg élettel a teret, oldva a szürke falak hűvösségét.
Ez is érdekelhet: Felújítás kevés pénzből, szürke árnyalatokkal, izgalmas végeredménnyel 40 m²-en
Fürdőszoba: márványminta és ritmus
A kombinált fürdőszobában a burkolatok játéka határozza meg a hangulatot. A falakon márványmintás greslapok sugároznak eleganciát, míg a padlón egy finomabb ornamentikával rendelkező burkolat töri meg a monotóniát és visz ritmust a térbe. A kis alapterület ellenére a funkciók nem szenvedtek csorbát: kényelmes zuhanykabin, mosógép, mosdószekrény és egy külön háztartási tárolószekrény is helyet kapott, biztosítva, hogy a tisztítószerek és textíliák rejtve maradjanak.
további cikkek kis lakás berendezése témában | lakberendezés: Alexandra Voynova | fotók: Alexandra Ivanova
























