Ez az amerikai konyhás nappalival és külön hálószobával kialakított lakás modern stílusban lett berendezve egy számítógépes játékokat tervező fiatal férfinak. Az enteriőr egyszerre életteli és letisztult, amely folyamatosan képes a változásra: a skandináv letisztultság, a minimalizmus és az eklektika elemeit ötvözi. A tervező kerülte a felesleges díszeket, helyette a természetes fényt és a karakteres, élénk kiegészítőket állította fókuszba.

A tulajdonosi igények
A 38 m²-es új építésű lakás tulajdonosa egy kreatív szakember, játéktervező, aki idejének nagy részét otthoni munkával tölti. Határozott elképzelésekkel érkezett a tervezőhöz:
- Világos alapok élénk színekkel kombinálva.
- Különálló hálószoba.
- Kényelmes munkaállomás.
- Kiegészítő alvóhely a nappaliban a barátai számára.
„A fiatalembernek fontos volt, hogy az otthona ne csak ergonomikus, hanem érzelmileg is inspiráló legyen” – emeli ki a lakberendező. A koncepció alapját a világos falak adják, amelyeket a klasszikus 70/20/10-es színarány szerint sárga és fekete elemekkel egészítettek ki. A fekete szín visszafogottan, ritmusadó elemként jelenik meg az ajtótokokon, a lámpatesteken, a bútorok lábain és a dekorációs printeken.
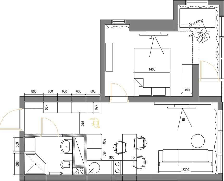
Alaprajz
Az ingatlan eredetileg egy válaszfalak nélküli üres beton kocka volt, egyetlen monolit tartófallal a háló és a nappali között, amelyen nem lehetett változtatni. A tervező megtartotta az eredeti elrendezést, csupán a fürdőszoba ajtaját mozdította el 20 centiméterrel, hogy az egyik oldalon a mosdónak, a másikon pedig a mosógépnek alakíthasson ki ideális helyet. A vizesblokkok az eredeti pozíciójukban maradtak.
A nappali és konyha padlójára világos, természetes kőhatást imitáló gresslap burkolat került. A falakat minden helyiségben minőségi, matt festékkel vonták be, a nappaliban egy finom középszürke árnyalat dominál.
A kisméretű konyhát a legmodernebb gépekkel szerelték fel: mosogatógép, sütő és a felső szekrénybe integrált mikrohullámú sütő biztosítja a kényelmet, miközben a munkapult szabadon maradt. A felső szekrénysort a belmagasság optikai növelése érdekében nem építették a mennyezetig. A hagyományos étkezőasztalt egy praktikus reggelizőpult váltja fel.
A pihenőzóna falait látványos 3D panelek díszítik, a TV-falat pedig falpanelek és gresslap burkolat kombinációjából álló kompozíció teszi egyedivé. Az enteriőr karakterét a geometriai játék adja: a poszteren megjelenő sávok, a karcsú állólámpa és a szőnyeg vonalai egyfajta vizuális ritmust teremtenek. A világítást modern, íves elemekkel kombinált sínrendszer biztosítja, amely a falról a mennyezetre fut fel.
Ez is érdekelhet: Hogyan lett üres betonkockából karakteres otthon: 38 m² lenyűgöző átalakulása
A hálószobában a falak mélyebb, selymes szürke árnyalatot kaptak. A padlóburkolat itt melegebb hatású vinylre vált, kivéve az ablak alatti sávot, ahol folytatódik a hidegburkolat. A helyiségben található szerkezeti áthidalót, amit nem lehetett eltávolítani, a tervező dizájnelemmé formálta: a félköríves stukkók az egyik falról ezen keresztül futnak át a szemközti oldalra. Az íves formavilágot a különleges, holdat formázó fali lámpa és a csillár is hangsúlyozza.
A hálószobába egyedi méretű, 140 cm széles ágyat terveztek, hogy maradjon elegendő hely a közlekedésre az ágy és a gardrób között. Mivel éjjeliszekrénynek nem maradt hely, az egyik oldalon egy kompakt lerakóasztalt, a másik oldalon pedig a szekrény nyitott polcait használhatja a tulajdonos tárolásra. A tárolórendszer mélysége a helytakarékosság jegyében a szokásos 60 helyett 45 centiméter – ez a méret jelenik meg az előszobai szekrénynél is.
A fürdőszobában zuhanykabin, falra szerelt WC és mosdószekrény kapott helyet. A falakat és a padlót egységes gresslap burkolja, a hangsúlyos falrészeknél pedig márványhatású dekoráció emeli ki a mosdó környékét.
további cikkek kis lakás berendezése témában | lakberendezés: Anna Sycheva @djindgerdesign | fotók: Vladislav Nagin





















