Fiatal férfi otthonának berendezésére kapott megbízást a lakberendező, az ügyfél a semleges megoldásokat és a természetes anyagokat részesítette előnyben. Bár a terek alapszínei visszafogottak és nyugodt árnyalatokból állnak, az enteriőr mégis részletgazdag és karakteres lett: a fa és a kő textúrája, a falpanelek, valamint a sötétebb tónusú elemek megadták a szükséges kontrasztokat.

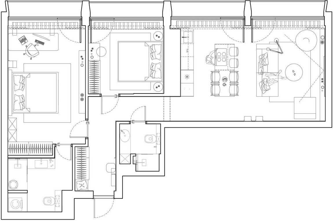
Az alaprajzon nem kellett jelentős módosításokat végezni. A lakás bal oldalán van a privát blokk: itt található a hálószoba saját fürdőszobával, gardróbbal és dolgozósarokkal. A jobb oldali szárnyba egy tágas konyha-nappalit terveztek, ahol a tér lineáris elrendezést követ: a konyhaszigettel kiegészült konyha, az ülőgarnitúra és a TV-zóna egymás után sorakoznak. Az apartman középpontjában egy vendég hálószoba és egy közös fürdő található.
„Alapként háttérbe simuló, de magas minőségű anyagokat választottunk: többrétegű fa padlóburkolatot, MDF bútorfrontokat, nagyméretű, meleg szürke színű kőlapokat és az ezekhez hangolt szürke frontokat” – magyarázza a tervező. „Az előszobában, a nappaliban és a hálóban elhelyezett strukturált falpanelek adnak extra karaktert a térnek.”
„A konyhabútor egy fő egységből és egy étkezőasztallal egybeépített szigetből áll. A felső szekrények egy síkba kerültek az előszoba furnérozott falával, így egységes tömeget alkotnak. A hátfal és a munkafelületek burkolatához karakteres erezetű márványt használtunk, a konyhasziget fölé pedig egy látványos, flexibilis neon világítással ellátott lámpatest került. A folyosóról a nappaliba átnyúló hosszú falat függőleges ritmusú falpanelek és nyitott polcos elemek tagolják. A TV-zóna kiemelkedő hátterét kőlapok borítják és kontúrvilágítás emel ki. A dekoratív kompozíciót egy hosszú, faltól falig húzódó tárolóelem metszi át.”
„A hálószobában a különálló gardróbhelyiség helyett egy beépített szekrény mellett döntöttünk. Ennek L-alakú kialakítása egyik oldalon nyitott vitrint, a másikon zárt tárolófelületet kínál. Az ablak elé egy nagyméretű, állítható magasságú íróasztal került – ez a tulajdonos egyik fő igénye volt.”
„A vendégszobában az öltözőasztal fölé helyezett kerek tükör oldja a helyiség formáinak szigorúságát.
további cikkek 50 és 100n2 közötti lakások lakberendezése témában | lakberendezés: Simple Forms Interiors | fotók: Mihail Csekalov

































