Ez a 42 négyzetméteres lakás egy fiatal, egyedülálló nő számára lett berendezve. Az enteriőr kialakításánál a fő szempont az volt, hogy a sokat dolgozó, otthon keveset főző, ugyanakkor a vizuális esztétikára fogékony hölgy igényeit maximálisan szolgálja ki. A tervező elsődleges feladata az volt, hogy viszonylag alacsony költségvetésből hozzon létre valami maradandót. Az alapokat elérhető árú anyagok és a nagyáruházakból származó, standard bútorok adják, a projekt mégis kiemelkedik az átlagból: a titok a merész színpalettában, a játékos fali grafikákban és az átgondolt kiegészítőkben rejlik. A végeredmény egy modern, eklektikus otthon, amelyből teljesen hiányzik a „sablonos” érzet.
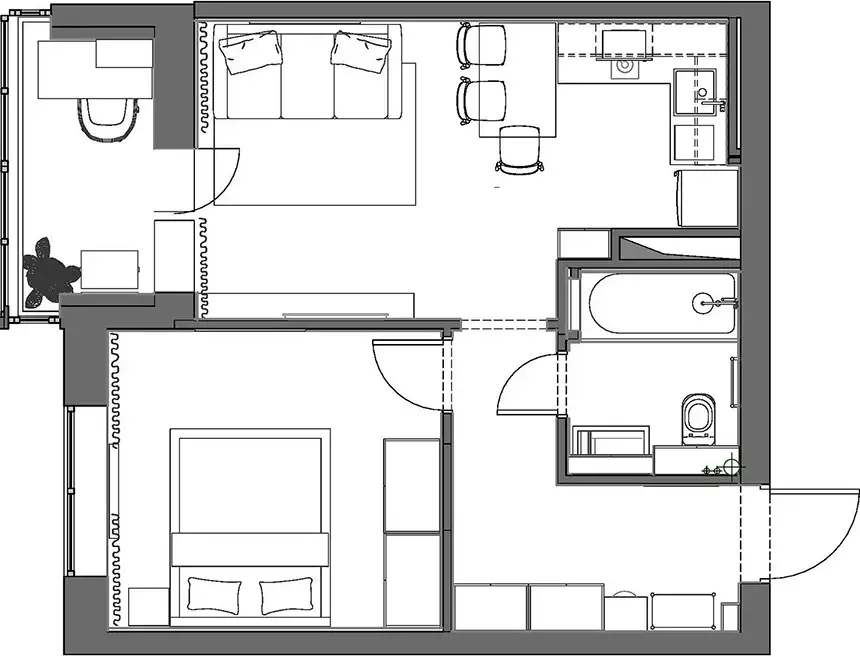
A lakás eredeti alaprajzát nagyrészt érintetlenül hagyták, így megmaradt a lodzsával egybekötött konyha-nappali, a hálószoba, a fürdőszoba és az előszoba elrendezése. Egyetlen funkcionális változtatás történt az alaprajzon: a hálószoba bejáratát áthelyezték, hogy az előszobában elegendő falfelület és tér szabaduljon fel a beépített tárolórendszerek számára. A burkolatok tekintetében az egységességre törekedtek: a vizes helyiségek és az előszoba kivételével az egész lakásban fahatású laminált padlót fektettek le. A lakás általános, alapvető megvilágítását mindenhol a mennyezetbe süllyesztett szpotlámpák biztosítják, amelyeket az adott zóna funkciójához illeszkedő kiegészítő fények tesznek teljessé.
A bejárati zónát egy határozott, mély bordó színblokk választja el vizuálisan a lakás többi részétől. Itt a padlóra elegáns, márványhatású greslap került. Mivel a lakó egy fiatal nő, a tárolás kiemelt figyelmet kapott: a bejárat mellett egy nagyméretű, mennyezetig érő gardróbszekrényt építettek be. Ez nemcsak a ruhák, a cipők és a háztartási gépek tárolását oldja meg, de a frontok mögött az elosztószekrényt is elegánsan elrejti. Az apróbb tárgyak számára egy lebegő, fiókos konzolasztalt szereltek fel, a mindennapi kényelmet és a térnövelést pedig egy ajtóval szemben elhelyezett nagyméretű tükör, valamint egy praktikus puff garantálja.
A nappalival egy légtérben található konyhába – a közlekedőhöz hasonlóan – semleges, világos falfestés került. A konyhabútort egy meglévő falfülkébe kellett integrálni, így a sarok elrendezés bizonyult a legideálisabbnak. A munkafelületbe egy kétzónás főzőlapot süllyesztettek, alá pedig beépített sütő került – ez a megoldás tökéletesen elegendő egy olyan élethelyzetben, ahol ritkán főznek. A költségek optimalizálása érdekében a beépített hűtő helyett egy szabadon álló modellt választottak. A konyha vizuális karakterét az alsó, kék színű frontok és a felső, semleges fehér szekrények kontrasztja adja, amelyeket látványos, élénk színű kerámia fogantyúkkal tettek egyedivé. Az étkezőasztal fölött egy dizájnos függeszték kapott helyet, amely otthonos kiegészítő fényforrásként szolgál.
A konyhához szervesen kapcsolódó nappali zóna központjában egy kényelmes, kinyitható kanapé áll, amely praktikus megoldást nyújt, ha a vendégek éjszakára is maradnának. Vele szemben, a letisztult formavilágot követve egy falra szerelt, lebegő TV-szekrény kapott helyet. Az alapbútorok egyszerűségét itt is a merészen megválasztott, grafikus textilek és a jól átgondolt dekorációs részletek keltik életre.
A hálószobában a tervező nagyméretű, drámai színblokkokkal operált: az egyik oldalon kékes-smaragd (kék-türkiz) falfelület alkot erős kontrasztot a szemközti, telített borvörös fallal. A fekete-fehér tapéta egy csipetnyi játékosságot csempész az enteriőrbe. A tárolást egy tágas ruhásszekrény és egy komód biztosítja. A borvörös falhoz tökéletesen illeszkedő, puha kárpitozott fejtámlával rendelkező ágy két oldalára szándékosan aszimmetrikus éjjeliszekrények kerültek: az egyik oldalon egy fekete, minimalista asztalka, míg a másikon egy szoborszerű, terrakotta színű darab áll. A pihenéshez szükséges intim atmoszférát az ágy két oldalán elhelyezett, fali olvasólámpák teremtik meg.
A fürdőszoba padlóját szürke és bézs tónusú, geometrikus mintájú burkolat fedi. A falakon a világos betonhatású greslapokat szürkészöld csempékkel kombinálták, folytatva a lakás egészére jellemző izgalmas szín- és textúrahasználatot. A helykihasználás maximalizálása érdekében a mosógépet a mosdópult alá építették be, mellette pedig egy kompakt tárolót alakítottak ki. A pipereholmik elrejtéséről a tükrös felsőszekrény, valamint a beépített WC-tartály feletti tárolószekrény gondoskodik. A sminkeléshez és a mindennapi rutinhoz szükséges irányított, funkcionális fényt a tükör beépített világítása adja.
további cikkek kis lakás berendezése témában | lakberendezés: Lusine Dadanova | fotók: Daria Kopylova



























