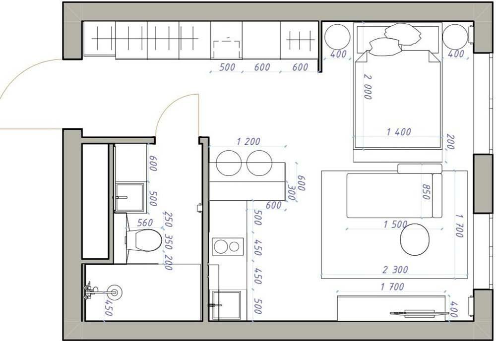
Légiesen könnyű, részletekkel nem túlzsúfolt enteriőrt alkotott a lakberendező a pici, 28m2-es lakásban, kiemelt figyelmet szentelve a tér átgondolt és funkcionális felosztásának.

A szerény alapterületen kialakított konyhát bárszékes, pultos étkezővel, mini nappalit, egy vizuálisan szeparált hálót, előszobát tágas tárolóhellyel, valamint WC-vel kombinált fürdőszobát – mindezt a jól átgondolt térfelosztás tette lehetővé. A tér zónákra osztásához egy nyitott polcos elemet használt, amely elválasztja a hálót a nappalitól. Az enteriőr díszítéséhez hűvös kék árnyalatokat használt, világos falakkal és könnyed, aranyló kiegészítőkkel kombinálva. / Hogyan oszthatod fel a teret falak nélkül? A 9 legjobb megoldás
A nappali, hálószoba és konyha falain dekoratív vakolatot használt, míg az előszobához festhető tapétát választott. A fürdőszobában a zuhanyzó falait gránit burkolat fedi, amely tartósságot és könnyű tisztíthatóságot biztosít, a többi falat mosható festékkel festették le. A mosdó és a tükör között csempe díszíti és védi a falat. A konyhai munkalap fölötti falat szintén tartós, mosható dekorvakolattal burkolták, így elkerülhető volt egy költségesebb konyha hátfal kialakítása.
Az előszobában a falakat, a beépített szekrényt és a mennyezetet is kékre festették, ez a bejárati zónának intim, különleges hangulatot ad, még világosabbnak és légiesebbnek mutatva a lakás belső, világos díszítéssel kialakított terét.
A konyha minimális, de a szükséges gépekkel fel van szerelve: főzőlap, páraelszívó és kompakt mosogatógép került beépítésre. A konyha előszoba felőli oldalán a nagy szekrény egyik felében helyezték el a sütőt és a mikrohullámú sütőt, a másik elem ruhásszekrény akasztórúddal és kihúzható fiókokkal. Minden beépített bútor egyedi gyártású.
A bárszékek az enteriőr díszei lettek – harmonikusan illeszkednek a hálóban, az ágy mögötti fal díszítéséhez választott dekoratív falpanelekhez.
A háló zónában hagyományos ágytámla helyett gipszpaneles, háttérvilágítással ellátott burkolatot alkalmaztak, ami otthonos hangulatot teremt és figyelemfelkeltő dekorációs elemként vizuális mélységet ad a térnek. / 7 hálószoba berendezés ötlet a jó alváshoz
A nappaliba a könnyű térérzet megőrzésének érdekében egy kicsi, de mutatós kanapét választottak.
A fürdőszobát a praktikusság jegyében alakították ki. A megrendelő kérésére a kádat egy épített zuhanykabinnal helyettesítették, a mosógépet helytakarékosan a mosdópult alatt helyezték el. A WC beépített tartálya fölött szekrényt alakítottak ki, amely elrejti a vízmelegítőt és az összes csővezetéket. / Fürdőszoba felújítás olcsón és stílusosan? 11 praktikus ötlet
Lakásfelújítás a láthatáron? Hogyan kerüld el a gyakran elkövetett hibákat és 10 megoldás
további cikkek kis lakás berendezése témában | lakberendezés: Natalia Kalentyeva | fotók: Dina Alexandrova




















