Ebben a projektben a feladat nem volt kisebb, mint egy mindössze 11 négyzetméteres alapterületű helyiség átalakítása egy funkcionálisan teljesen felszerelt mikrolakássá. A tulajdonos, aki ebben a térben nőtt fel, szerette volna, ha a parányi alapterületen helyet kap egy kényelmes ágy, konyha, munkaállomás, valamint fürdőszoba és megfelelő tárolórendszer is. A tervező számára a feladat igazi szakmai kihívást jelentett, hiszen virtuóz térszervezési megoldások nélkül lehetetlen lett volna megvalósítani az elképzeléseket egy belvárosi épület falai között.

A helyiség egy történelmi épületben található, és eredetileg a személyzet szálláshelyéül szolgált. Bár az ingatlan besorolása nem lakáscélú volt, ez éppen előnyt jelentett, mert lehetővé tette a vizesblokk kialakítását, gyakorlatilag összkomfortos lakássá alakítva a szobát. A tér eredetileg is két szintre volt osztva, amit a közel 4 méteres belmagasság tett lehetővé, ám a korábbi galéria szerencsétlen módon eltakarta az egyetlen ablakot.
Az eredeti állapot:
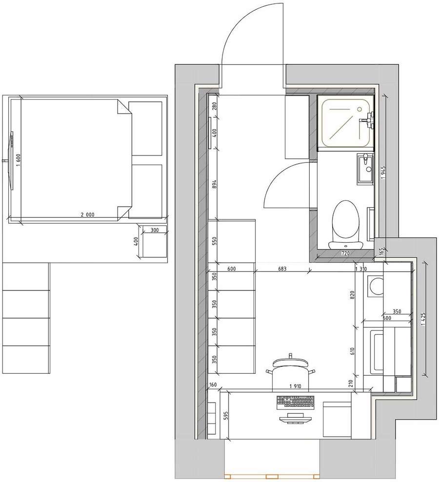
Az új koncepció megtartotta a nagy belmagasság előnyeit: az ágyat egy újonnan épített galérián helyezték el, amely alá a fürdőszoba és az előszoba került – a galériával együtt a hasznos terület 14,5 m²-re nőtt. A munkaállomást közvetlenül az ablak elé szervezték a természetes fény maximalizálása érdekében, mellé pedig a minikonyha került. A galériára vezető lépcső nem csupán közlekedő, hanem a lakás fő tárolóeleme is. A falakat világos, enyhén hűvös árnyalatú festékkel kezelték, ami vizuálisan szinte megkétszerezi a teret – különösen a korábbi sötét falakhoz képest.
A bejárati zóna a galériaszint alatt kapott helyet. A kis alapterületű előszobában egy cipőtárolót és fali akasztókat helyeztek el a kabátok számára. A szemközti falon egy tükrös fronttal ellátott szekrény található, amely vizuálisan tágítja a teret, és elrejti a vasalódeszkát, így csukott állapotban a háztartási funkció teljesen rejtve marad. A padlóburkolat itt – akárcsak a fürdőszobában és a földszinti élettérben – strapabíró PVC-padló.
A konyhabútor rendkívül kompakt kialakítású. A tárolószekrények mellett a felső elembe építették be a mikrohullámú sütőt, a pulton pedig egy kétzónás főzőlap kapott helyet. A dekoráció egyik leghangsúlyosabb eleme itt jelenik meg: a konyhai hátfalat gyönyörű, türkizkék színű, téglalap alakú fényes csempével burkolták, amely megcsillantja az ablakon beáramló napfényt, ezáltal a lakás látványos fókuszpontjává válik. A konyhaszekrények alatti LED-világítás tovább fokozza a funkcionalitást és a hangulatot.
Ez is érdekelhet: Pici lakást nehéz szebben és élhetőbben berendezni mint ezt a 16 m²-es minigarzont
A nappali funkcióját ebben a térben a munkaállomás és a közlekedőzóna látja el. Az ablaknál elhelyezett, egyedi gyártású íróasztal fiókos tárolókkal rendelkezik, mellette pedig nyitott polcos állvány biztosít helyet a könyveknek és dísztárgyaknak. A helytakarékosság jegyében a minihűtőt az asztallap alatt rejtették el. A tér központi megvilágításáról egy masszív csillár gondoskodik, amely elegendő fényt ad az egész helyiségnek, de a hangulatvilágításról a polcokba épített rejtett fények is gondoskodnak.
Ez is érdekelhet: Drága megoldások nélkül: minigarzon színek és kompakt megoldások egyensúlyával
A galériaszintre vezető lépcső maga a fő tárolórendszer: minden lépcsőfok és a szerkezet oldala fiókokat és szekrényeket rejt. Bár a lépcső meredeksége miatt a feljutás odafigyelést igényel, a helykihasználás maximális. A korlátba épített világítás segíti a biztonságos közlekedést.
Fent, a hálószobában a padlóburkolat vált: itt meleg hatású, természetes parkettát használtak. A berendezés minimalista, csupán az ágy és egy apró éjjeliszekrény kapott helyet, az olvasást pedig fali karok segítik.
Külön bravúr a mindössze 1,4 négyzetméteres fürdőszoba kialakítása. A parányi térben sikerült elhelyezni egy 70×70 cm-es zuhanyzót, egy kisméretű mosdót tárolószekrénnyel, valamint egy sarokba fordított WC-t. A falakon a festett felületek és a csempeburkolat váltják egymást, utóbbi csak a közvetlen víznek kitett zónákban jelenik meg, így a helyiség nem válik nyomasztóvá.
további cikkek kis lakás berendezése témában | lakberendezés: Polina Andreeva | fotók: Kristina Pleer
































