Egy szobányi területű, mini lakás felújítása komoly kihívás, ahol a tervezés szó szerint centimétereken múlik. Ha a rendelkezésre álló tér egyetlen helyiségből áll, ahol a konyhának is meg kell férnie a lakó- és alvó funkciókkal, a berendezés valóságos logisztikai bravúrrá válik. Hová kerüljön a mosógép és a hűtőszekrény? Kanapé vagy ágy a jobb választás? Hogyan alakítható ki egy teljes értékű fürdőszoba? Ezek a kérdések egy kis alapterületű ingatlan tulajdonosának legfőbb dilemmái.
Egy fiatal hölgy pontosan ezzel a feladattal szembesült a régi építésű ház 16 m²-es lakásában. A felújítás előtti állapot kényelmes életvitelre alkalmatlan volt, egy belsőépítész segítségével azonban a tér újjászületett. Az inspirációt az elegáns és hangulatos francia enteriőrök adták, amihez kiváló alapot biztosított az ingatlan legelőnyösebb adottsága, a 3,2 méteres belmagasság. A tervezés során minden elem a tágasabb térérzet megteremtését szolgálja, beleértve a magas mennyezetet, a bőséges természetes fényt és a tükrök használatát.

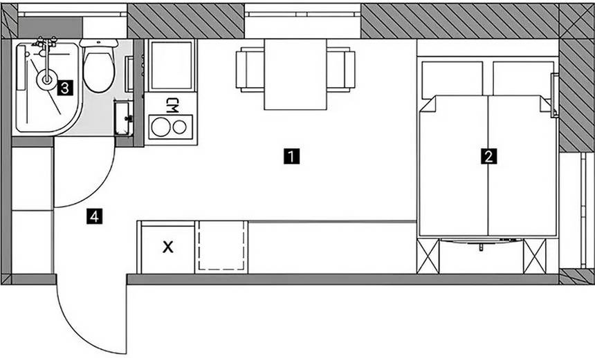
Az előszobába lépve egy nagyméretű, tükörrel borított beépített szekrény fogadja az érkezőt, amely a kabátok, cipők és a háztartási eszközök tárolását is megoldja.
A lakótérbe lépve a helyiség kompakt, de teljes funkcionalitású konyhával folytatódik, beépített gépekkel, ajtó mögé rejtett mosógéppel. A lakásban tudatosan világos, fehér bútorokat – ágyat, szekrényeket és konyhablokkot – választottak. Ezek az elemek nem irányítják magukra tolakodóan a figyelmet, elkerülik a vizuális zajt, így a lakás a valós méreténél nagyobbnak és levegősebbnek hat. A helykihasználás maximalizálása érdekében minden bútordarab egyedi méretre készült, így egyetlen centiméternyi hely sem veszett kárba.
A lakás távolabbi végében, ablaki előtt helyezték el az alvóhelyet amelyet praktikus, kihúzható tárolórekeszekkel integráltak. Érdekes tervezői megoldás a szokatlanul magasan elhelyezett radiátor. A döntést az indokolta, hogy ez a határoló fal korábban rendkívül hideg volt. Mivel ez a fűtőtest nem az egyetlen hőforrás a lakásban, csak a leghidegebb napokon van rá szükség, így ez a kreatív elhelyezés hatékonyan megoldja az ingatlan termikus komfortjának problémáját.
A projekt egyik legbonyolultabb feladata a mindössze 1,5 négyzetméteres fürdőszoba kialakítása volt. A nagyon kis területen egy épített zuhanyzónak is helyet kellett szorítani – ehhez megemelték a padlószintet, hogy kialakíthassák a megfelelő lejtésű zuhanytálcát.
A tervező kiemelt figyelmet fordított arra, hogy a padló vizuális egységét megőrizze, elkerülve, hogy a szűkös teret a burkolatváltások még inkább feldarabolják. Az apró helyiségbe minden szükséges szaniter befért. A fürdőszoba különleges díszítőelemeként egy fakeretes, ólomüveg hatású ablak szolgál, amely egyedi karaktert kölcsönöz a helyiségnek.
további cikkek kis lakás berendezése témában | lakberendezés: Svetlana Molina | fotók: Vladislav Nagin


























