A 39 m²-es, új építésű garzonlakásban a tervező élénk színpalettát használt, vintázs bútorokat kevert modern berendezési tárgyakkal, mindezt a funkcionalitás és az ergonómia jegyében. A belsőépítészeti koncepció ihletője és központi eleme egy régi, felújított komód volt. A lakásban egy fiatal, sportot és utazást kedvelő pár él, akik nyitottak a merészebb színvilágra, valamint a karakteres régi bútorok jelenlétére.

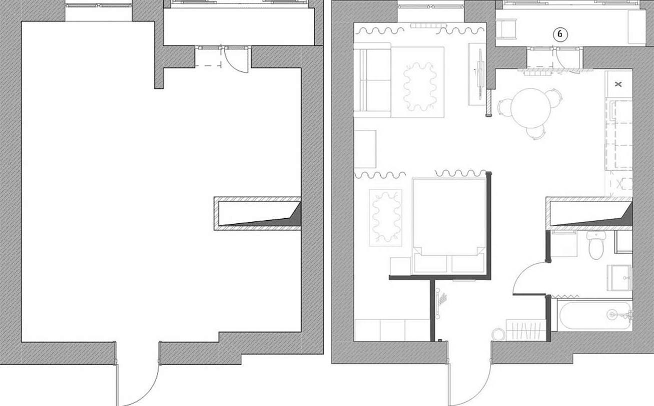
Eredeti állapot és az alaprajz kialakítása
A lakást szerkezetkész állapotban vették át, így az alaprajzot és a teljes életteret a nulláról kellett megtervezni. A konyha és a fürdőszoba a gépészeti kiállásokkal meghatározott zónákba került, a tágasabb szobát pedig sikerült funkcionálisan nappalira, hálóra és egy különálló gardróbszobára osztani.
A konyhát és a nappalit nem választották el ajtóval; egy széles nyílást hagytak szabadon, hogy a tér tágasabbnak, levegősebbnek tűnjön. A hálórész szükség esetén vastag fényzáró függönyökkel szeparálható a nappalitól, míg a gardrób egy teljesen leválasztott, zárt helyiséget kapott.
Előszoba
Az előszoba falai karakteres zöld festést kaptak. A padlót fekete-fehér geometrikus mintás kerámialap fedi, amely „szőnyeg” hatást keltve azonnal megadja a lakás retró hangulatát. A tárolásról egy falra rögzített fogas, egy cipőtároló polcokkal ellátott puff, valamint egy lábakon álló, könnyed hatású, különálló szekrény gondoskodik. A megfelelő megvilágítást a tükör fölötti lámpa egészíti ki.
Konyha
A konyha egy széles átjárón keresztül vizuálisan és funkcionálisan is kapcsolódik a nappalihoz. A bútorzat kompakt, mégis rendkívül funkcionális. Az alsó szekrények rejtik a beépített mosogatógépet és a mikrohullámú sütőt. A felső elemek szándékosan alacsonyabbak, üvegezett frontokkal készültek; az itt tárolt szép edények diszkrét hangulatvilágítást is kaptak. A mennyezeti sínlámpa egyenletes általános fényt biztosít, míg az étkezőasztal melletti állólámpa és a pultvilágítás további, célzott fényforrásként szolgál.
Nappali
A nappaliban a kanapé mögötti fal szintén a lakásban végigvonuló zöld árnyalatot kapta, melyet finom krémszín, valamint terrakotta és természetes fa akcentusok ellensúlyoznak. A padlóra az egész lakótérben egységesen laminált parketta került. A tárolást egy tv-szekrény biztosítja az apróbb tárgyaknak.
Ez is érdekelhet: Hogyan értek el tágas hatást 39m2-en: nyugodt tejeskávé, csokoládé és zöld színek
Különleges és kreatív megoldás a magas, szokatlanul széles ablakpárkány, amelyet kiegészítő munkafelületként (akár íróasztalként) is lehet használni. Ennek érdekében a belső ablaknyílásba süllyesztett konnektorokat is beépítettek. A központi világítást egy vintázs stílusú csillár adja, amit a komódon elhelyezett asztali lámpa fénye egészít ki.
Ez is érdekelhet: Kezdő lakberendező első munkája a saját otthona, 39m2
A kanapé mellett kapott helyet a lakás fénypontja, az a bizonyos vintázs komód, amely az egész koncepciót ihlette. A restaurátor által felújított, különleges bútor eredeti, működő zárral és a hozzá tartozó kulcsokkal rendelkezik. A kanapé kihúzható, így szükség esetén kényelmes vendégággyá alakítható.
Hálószoba
A nappalitól függönnyel leválasztható háló zónában az ágy mögötti falat növényi mintás, zöld tónusú tapéta díszíti, meghitt hangulatot teremtve. A világításról egy egyszerű, mennyezeti vezetéken függő papír lámpaernyő, valamint az éjjeliszekrény feletti fali olvasólámpa gondoskodik.
Fürdőszoba
A fürdőszobában visszaköszön a lakás meghatározó zöld falszíne, amelyet a vizes zónákban (a kád körül és a mosdó mögött) világos, kis formátumú csempével kombináltak. A padlóburkolat megegyezik az előszobáéval: itt is a fekete-fehér geometrikus minta jelenik meg, keretbe foglalva a helyiséget. Tárolásra egy fiókos, falra függesztett mosdószekrény szolgál. A mosógépnek a WC mellett alakítottak ki helyet. A tükör feletti célzott fali lámpa biztosítja a megfelelő világítást.
további cikkek kis lakás berendezése témában | lakberendezés: Svetlana Klepko | fotók: Alexander Polshvedkin



























