A 66 m²-es lakás tulajdonosai – házaspár és két fiúgyermekük – azzal a kéréssel fordultak a tervezőhöz, hogy funkcionális, ugyanakkor harmonikus és barátságos otthont teremtsen számukra. A fő cél egy olyan modern, letisztult tér kialakítása volt, amely a nyugalom és a pihenés légkörét árasztja, felesleges részletek nélkül, békés színárnyalatokkal. A család referenciai között modern klasszikus és skandináv stílusjegyek egyaránt szerepeltek, így a tervezés egyik kulcskérdése az volt, hogy megtalálják azt az egyedi esztétikát, amelyben a család igazán komfortosan érzi magát. A végeredmény egy modern enteriőr lett, amely szabadon ötvöz különböző megoldásokat és anyagokat.

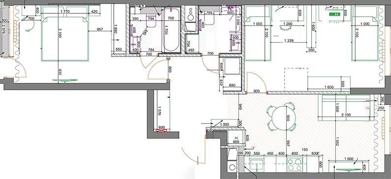
.Eredeti állapot és az alaprajz átalakítása
Az ingatlan eredeti alaprajza két szobát, egy konyha-nappalit, két vizes helyiséget és egy tágas előszobát foglalt magában. A tervező az elrendezésen csak minimálisan változtatott, de ezek a beavatkozások jelentős funkcionális előnyökkel jártak.
Az előszoba és a konyha-nappali közötti átjárót kiszélesítették, hogy tágasabbá tegyék a közösségi térbe való belépést. A legfontosabb változtatás a gyerekszoba bejáratának áthelyezése volt: az eredeti ajtónyílást lezárták, és egy újat nyitottak a gyerekszoba és a konyha-nappali közötti válaszfalon. Ez a döntés két célt szolgált: egyrészt lehetővé tette a gyerekszoba bútorainak sokkal ergonomikusabb elrendezését, másrészt az előszoba felől, a volt ajtó helyén, egy teljes magasságú, beépített háztartási szekrény kialakítását tette lehetővé.
Az általános padlóburkolat egységesen egy praktikus, fa hatású vinyl lett.
Előszoba
Az előszobában két fő szekrény kapott helyet. Az első, közvetlenül a bejáratnál, a kabátok és cipők tárolására szolgál. A második – amely a gyerekszoba áthelyezett ajtaja révén nyert helyen épült – háztartási és mosókonyha-szekrény funkciót tölt be. Itt kapott helyet a mosó- és szárítógép, a robotporszívó és minden egyéb háztartási kellék. A konyha-nappali bejárata előtti falszakaszon egy elegáns konzolasztalt helyeztek el, melyet finom, zsályazöld falfestés emel ki.
Konyha
A konyha-nappali a családi élet központja. A konyhabútor tervezése során egy gépészeti kiállás okozta falrészlethez kellett alkalmazkodni. A megoldás egy „L” alakú elrendezés lett, mennyezetig érő felső szekrénysorral. Ahol a falmélység csökkent, oda egy sekélyebb vitrines elem került. Minden konyhagép – a hűtőszekrénytől kezdve a sütőn és mikrón át a mosogatógépig – teljesen beépített, így a megjelenés egységes és letisztult maradt.
Ez is érdekelhet: Így fért el anya és három gyermeke egy 66 m²-es lakásban
Nappali
A nappali térrész kialakítása szorosan kapcsolódik a konyhához. A TV-állvány bútortestként a konyha folytatása, azonos stílusban és anyagokból készült.
A kanapé mögött egy sötétebb, teltebb szürke falfelület töri meg a falak világos alaptónusát; a festett sáv határát diszkrét aranyszínű profil zárja le. Az arany árnyalatú kiegészítők – melyek a tulajdonosok kifejezett kérései voltak – finoman visszaköszönnek az egész lakásban. A kanapé melletti ablaknál, a függöny mögött egy polcrendszer rejtőzik, amely a gyerekkönyveknek ad helyet. Ez a megoldás egyszerre praktikus, hiszen könnyű hozzáférést biztosít, és esztétikus, mivel elrejti a színes könyvborítók által keltett vizuális „zajt”. A világítási koncepció itt is többrétegű: az általános fényt adó spotlámpákat az étkezőasztal feletti függesztékek és a kanapé melletti falikarok egészítik ki.
Ez is érdekelhet: Lakberendezés frissítése 66m2-es lakásban alaprajz változtatása nélkül – fiatal pár kétszobás otthona
Hálószoba
A szülői hálószoba hangulatát és inspirációját a franciaágy mögötti, kézzel készített, festői tapétapanel adja. Ennek lágy, organikus formái és visszafogott színei ihlették a többi bútor és dekoráció kiválasztását is. A tárolásról egy négyszárnyú gardróbszekrény gondoskodik. Az egyik éjjeliszekrény helyett egy légies konzol került a falra, amely fésülködőasztalként is funkcionál. Az általános világítást egy központi csillár adja, míg a hangulatfényekről az ágy két oldalán lebegő függesztékek gondoskodnak.
Gyerekszoba
A két fiú szobájának kialakítása kiemelt fontosságú volt. A teret egy központi elemként elhelyezett, nyitott polcrendszerrel osztották ketté. Ez a térelválasztó bútor finoman jelöli ki a két fiú saját territóriumát, így mindkettőjüknek saját alvó- és tanulósarka lehetett. A ruháikat közös szekrényben tárolják, amelynek alsó részét kifejezetten a sportszerek, labdák tárolására alakították ki – ez egyszerre funkcionális és dekoratív megoldás. A szoba egyik sarkában bordásfal is helyet kapott az aktív testmozgáshoz. A falak alapszínét egy magas lábazatként felfutó, visszafogott zöld sáv, illetve az egyik ágynál egy kék akcentusfal egészíti ki. A világítás is a tematikához igazodik: az ágyak feletti falikarok kosárlabdát és palánkot formáznak.
Fürdőszoba
A lakás két vizes helyiséggel (egy fürdőszobával és egy külön zuhanyzóval) rendelkezik. Míg a lakás többi részén egységesen fa hatású vinyl borítja a padlót, addig a fürdőszobákban a praktikum és a tartósság jegyében a padlóra és a falakra is greslap burkolat került.
további cikkek 50 és 100n2 közötti lakások lakberendezése témában | lakberendezés: Anastasia Grigorieva| fotók: Sergey Gura































