Ennek az enteriőrnek a koncepcióját a latte, a cappuccino és a csokoládéhab meleg, otthonos, nyugodt hangulatot teremtő árnyalatai ihlették. A mélység és a kontraszt érdekében a tervezők telt zöld hangsúlyokkal és szaténfényű rozsdamentes acél részletekkel egészítették ki a palettát.

A tulajdonos kérései
- Modern és funkcionális tér.
- Kényelmes hálószoba sötétítő (blackout) függönyökkel.
- Teljesen felszerelt konyha, étkezőasztal helyett bárpult és egy borhűtő.
- Elegendő tárolóhely.
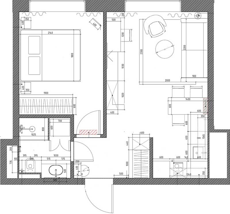
Az elosztás
A lakást szerkezetkész állapotban adták át: falak még nem voltak, csupán azok helyét jelölték ki vékony vonalakkal a padlón. Az elrendezésen nem változtattak. A lakás előnyei a nagy belmagasság és a panorámás kilátás, ugyanakkor éppen a nagy belmagasság nehezítette meg a fürdőszoba kialakítását, mivel fennállt a veszélye, hogy egy „kút” hatású, aránytalanul magas helyiséget kapnak.
Ez is érdekelhet: Maximális tér és panoráma a fókuszban – 39m2-es lakás letisztult formákkal
Előszoba
Az előszoba falfestése és burkolatai megegyeznek a konyha-nappaliéval. A bejáratnál egy egyedileg gyártott, mennyezetig (3,2 m magas) érő gardróbszekrényt helyeztek el. A szekrény frontjának felső részén egy zöld sáv fut végig, amely visszaköszön a projekt hangsúlyos színeként. A zöld szín itt jelenik meg először a belső térben, és már a küszöbtől kezdve kibontakozik az átfogó koncepció.
Ez is érdekelhet: 6 ötlet, amitől tökéletes lesz az előszobád
Konyha-nappali
A padlón egységes felületként natúr tölgy árnyalatú vinyl burkolatot fektettek le. A falakat semleges latte árnyalatra festették. A festéket Hygge alapra keverték, az árnyalatot pedig a Little Greene palettájáról választották. A konyhai hátfal greslapját a fal síkjába süllyesztették. „Ez esztétikusabb és a tisztán tartása is sokkal kellemesebb – sehol sem gyűlik össze a por, és nincsenek látható élek” – vélik a tervezők.
A konyhabútor frontjai kétféle anyagból készültek. Bár a konyha felső része nem ér teljesen a mennyezetig, magassága több mint 2,7 méter. Ezt a megoldást a kényelmes használat és a költséghatékonyság jegyében választották. A lekerekített oldalsó frontok rádiusza 30 cm. Ezek nem véletlenül jelentek meg itt, hanem rímelnek a belső tér egyéb íves formáira: a bárpult feletti függőlámpára, a csillár és az állólámpa formájára, a fotel és a dolgozószék háttámlájára, valamint a polcrendszerben elhelyezett dekorációkra. A munkalap akrilkőből készült, árnyalatát a hátfal greslapjához és a falak színéhez igazították.
A bárpult alatt egy borhűtő rejtőzik, melynek beépítése a megbízó kérése volt.
A nappali zónában helyet kapott egy nagyméretű íróasztal is, amely szinte egybeolvad a tárolórésszel. Itt egy polcrendszer található a könyvek és dekorációk számára. A hátfal ugyanabból az anyagból készült, mint a konyha íves felső eleme. Az árnyalat enyhén fémes csillogású, matt, puha szatén hatással.
A szerkezet egy stabil, lábazat nélküli, egységes szekrényrészen nyugszik. „A szaténfényű fém árnyalatának használata a bútorokon, a világítótesteken és a dekorációkon trendi jegyeket kölcsönzött, és érdekessé, naprakésszé tette az enteriőrt” – kommentálják a tervezők.
A lakásban több világítási forgatókönyvet is megvalósítottak: van erős általános fény, valamint helyi, lágyabb hangulatvilágítás is. A fényforrások különböző magasságokban helyezkednek el: a mennyezeti világításért csillárok és sínrendszeres lámpák felelnek, a középső szinten állólámpák és a bárpult feletti függeszték található, míg a konyhai munkaterület megvilágítása, valamint a polcon, az éjjeliszekrényen és az íróasztalon elhelyezett asztali lámpák célzottan látják el funkcionális feladataikat.
Ez is érdekelhet: Ötletek kanapé mögötti fal díszítéséhez, 15 tipp és technika példákkal
Hálószoba
„Az egész lakásban a mennyezetet a falak színére festették, de ez a megoldás a hálószobában a legkifejezőbb” – mondják a tervezők. „A helyiség kompakt méreteinek köszönhetően egyfajta körbeölelő hatás jön létre, a falak és a mennyezet közötti határ pedig szinte elmosódik. Mindenki, aki belép a szobába, felfigyel erre. Különleges hangsúlyt kap a kontrasztos zöld sáv, amely körbefut a szobán és a szekrény felső lécén is. Ennek a megoldásnak nemcsak dekoratív, hanem vizuális szerepe is van: segít optikailag kissé „lejjebb hozni” a magas mennyezetet és kiegyensúlyozni a tér arányait.”
Ez is érdekelhet: A legjobb hálószoba szín nyomában: 5 színösszeállítás ötlet
Fürdőszoba
A fürdőszobában kétféle csempét használtak:
- fényeset a zuhanyzóban, a fali WC-tartály mögött és a mosdó környékén;
- mattot a padlón: ez praktikusabb a tisztán tartás szempontjából és biztonságosabb a vizes zónában.
„A nagy belmagasság előny, de a kis alapterületű helyiségekben nem mindig válik be” – mesélik a projekt alkotói. „Ha itt fehérre festettük volna a mennyezetet, „kút” hatást értünk volna el – egy keskeny és túl magas teret kaptunk volna. Ezért tudatosan elhagytuk a klasszikus fehéret, és egy telített csokoládé árnyalatot, az Attic II 144-et választottuk a Little Greene palettájáról. Ezzel a színnel nemcsak a mennyezetet, hanem a falak felső részét is lefestettük – ez otthonosságot teremt és kiegyenlíti az arányokat. A beépített bútorok precízen a színhatárhoz lettek igazítva, ami rendezett megjelenést kölcsönöz.”
A cappuccino színű, matt szaniterek lágy hatást keltenek, és nem lógnak ki az összképből. Még a mosó- és szárítógép sem fehér, hanem mély szürke-acél színű, fekete elemekkel – minden egységes vizuális ritmusban van.
Ez is érdekelhet: Fürdőszoba felújítás olcsón és stílusosan? Íme 11 praktikus ötlet
további cikkek kis lakás berendezése témában | lakberendezés: Yuna Lukinskaya és Natalia Pele | fotók: Roman Alekseev
































