Az alig 30 négyzetméteres, hetvenes évekbeli kislakás átalakítása igazi mesterkurzus a helykihasználásról. A fiatal építész hölgy első saját otthonát formálta át, a cél a maximális funkcionalitás, kellemes élettér és a lehetőségekhez képest tágas térérzet megteremtése volt. A megoldás kulcsa a merész térszervezés és a milliméterre pontosan megtervezett, egyedi bútorzat lett.

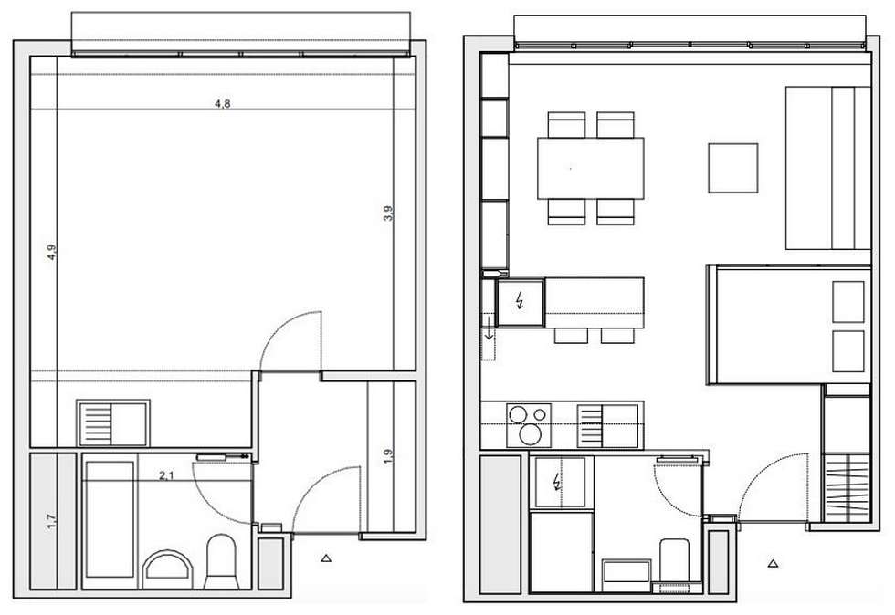
A kiindulási alap egy egyszerű, négyzetes alaprajzú garzon volt. A tervező a meglévő néhány válaszfalat elbontotta, hogy egy teljesen új, logikus és funkcionális elrendezést hozzon létre. A lakás központi eleme egy multifunkcionális „doboz” lett, amely nem csupán a hálószobát rejti, de a tárolási gondok jelentős részét is megoldja.
Alaprajz előtte / utána:
A felújítás előtt:
A háló, ami térelválasztó és tároló is egyben
A bejárattal szemben egy 1,1 méter magas dobogóra emelt hálóalkóv kapott helyet. Ez az intelligens megoldás egyszerre több célt is szolgál: finoman elválasztja a bejárati zónát a nappalitól, miközben az ipari stílusú belső ablakán keresztül elegendő természetes fényt enged át, egészen az előtérig. A dobogó alatti tér maga a tárolóparadicsom: a bejárat felől mély fiókok rejtik a ruhaneműt, a nappali oldalából egy könyvespolc és a csellónak kialakított tároló nyílik, a konyha felé eső részen pedig a bőröndök és bevásárlótáskák is elférnek. Ezzel a megoldással a tervező egyetlen négyzetcentimétert sem hagyott kihasználatlanul.
Ez is érdekelhet: Zseniálisan berendezett keskeny kislakás nem szokványos konyha és háló kialakítással, 30m2
Közösségi zóna: konyha és étkező
A lakás legvilágosabb részén, a nagyméretű szalagablak előtt kapott helyet a nappali-étkező-konyha hármasa. A konyha párhuzamos elrendezése rendkívül hatékony. Míg az egyik oldalon a fő funkciók (mosogató, főzőlap, sütő) sorakoznak, a másik oldalt egy bárpultként is funkcionáló félsziget zárja, ami reggelizőpult, extra munkafelület és a baráti összejövetelek központja is egyben. A félsziget nappali felőli oldala további tárolókat rejt, ahová pl. az étkészlet került.
Az ablak előtti teret egy kényelmes, négyszemélyes étkező és egy nagyméretű, falat beborító könyvespolcrendszer tölti ki. Utóbbi nemcsak rengeteg tárolóhelyet biztosít, de vizuálisan a helyére is igazítja a nem központosan elhelyezkedő ablakot, gyakorlatilag keretbe foglalva azt.
Ez is érdekelhet: Fiatal házaspár első lakása még gyermek nélkül – könnyű, funkcionális berendezés 30m2-en
Letisztult felületek, anyagok, meleg hangulat
Az otthonos atmoszférát a gondosan megválasztott anyagok és színek harmóniája alakítja ki. A fehér bútorokat mellőzve, a világos, matt lakkozott tölgy furnér dominál, melynek melegségét a szeladonzöld frontok frissessége és a szürke padló modern eleganciája ellensúlyozza. A fogantyú nélküli, letisztult felületek, a minőségi anyaghasználat és a beépített megoldások egységes, rendezett és tágas hatást keltenek.
további cikkek kis lakás berendezése témában | építész: Katarina Mijic, fotók: Pierre Morel

























