.A kétszobás, tetőtéri lakást egy fiatal doktornőnek rendezte be a lakberendező. Az alapkoncepció egy sötét tónusú, kifinomult színvilágú otthon megteremtése volt, ahol a hangsúly a nagy belmagasság kiemelésére és a praktikusan kialakított tárolórendszerekre helyeződik.

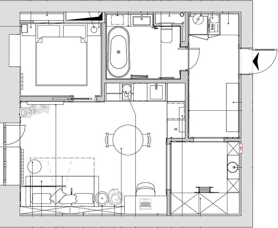
A lakás eredeti alaprajzát a tervezők finomhangolták, a helyiségek alapvető funkcióit megőrizve. A beavatkozások elsősorban a tárolórendszerek optimalizálását és az ajtók, átjárók áthelyezését célozták. Az átalakítás eredményeként egy tágas, egységes konyha-nappali tér, különálló hálószoba, gardrób, tágas előszoba és egy komfortos fürdőszoba jött létre.
Már a bejáratnál megadja az alaphangot a lakás kifinomult színvilága. A falakon a törtfehér és egy mély, padlizsánba hajló bordó árnyalat alkot drámai, mégis elegáns kontrasztot. A tervezők ezt a gazdag, sötét tónust nem a teljes falfelületen, hanem az ajtókereteken, a mennyezeten (és alatta egy széles sávban) és a lábazaton alkalmazták, ami keretet ad a térnek és kiemeli a klasszikus stílusjegyeket.
Az egyedi tervezésű konyhabútor a teljes belmagasságot kihasználja. Jobb oldalon a hűtőszekrényt és egyéb tárolókat magukba foglaló toronyszekrények kaptak helyet. Egy dekoratív, áttört frontú felső elem rejti a klímaberendezés beltéri egységét. A felső szekrénysort antikolt tükör borítja, amely finoman „feloldja” a bútor tömegét a térben, miközben izgalmas mélységet ad az enteriőrnek.
A bútorfrontok felületét amerikai dió furnér és metálfényű festék nemesíti, a munkapult és a hátfal pedig egybefüggő, nagyméretű greslapból készült. A konyha teljes gépesítést kapott: a beépített mosogatógép, főzőlap, kombinált sütő és vízszűrő rendszer mind a modern kényelmet szolgálják. A fennmaradó szekrények bőséges és hatékonyan kihasználható tárolóhelyet kínálnak.
Ez a cikk is érdekelhet: 7 konyha design trükk, amit a profi tervezők gyakran használnak
A falakon a mély tónusú, matt festés, a különleges tapéták és a greslap burkolatok harmonikus egységet alkotnak. A tapéták melegséget és finom textúrát visznek a térbe, míg a természetes kő hatású, fugamentesen burkolható greslapok nemcsak esztétikusak, de a nagyméretű, illesztés nélküli felületeknek köszönhetően a tisztán tartásuk is rendkívül egyszerű.
A 4,1 méteres belmagasság adta lehetőségeket a tervezők maximálisan kihasználták: a mennyezetig érő beépített szekrények felső, „galériás” részeiben rejtették el a gépészeti elemeket, a klímát és a ritkábban használt háztartási eszközöket. Bár az egyedi bútorgyártás nagyobb befektetést igényel, ez tette lehetővé a tér adottságaihoz tökéletesen illeszkedő, funkcionális és egyedi megjelenésű tárolórendszerek megalkotását.
A fürdőszoba fókuszpontja a szabadon álló kád, amelynek intimitását és funkcionalitását egy egyedi sárgaréz karnison futó, vízlepergető textíliából készült zuhanyfüggöny biztosítja, lehetővé téve a zuhanyzást is. A tárolásról egy nagyméretű, széles pulttal rendelkező mosdószekrény gondoskodik. Innovatív megoldásként a hagyományos törölközőszárító radiátor helyett egy falfűtési rendszert, úgynevezett „meleg falat” alakítottak ki, amely diszkréten oldja meg a törölközők szárítását, mentesítve a teret a felesleges vizuális zajtól.
A tervezés során a négylábú lakótársak kényelmére is gondoltak: a macskatoalett a mosdópult alá rejtve, diszkréten kapott helyet. A WC feletti, elegánsan eltakart szerelőajtó mögött található a gépészet és egy praktikus, rejtett tároló. A falakon a nagyméretű greslap, egy finom mintázatú dekorcsempe és a páraálló festés elegáns hármasa jelenik meg.
további cikkek kis lakás berendezése témában | lakberendezés: AM|Interior studio | fotók: Ivan Sorokin


























