A lakás kialakítása során a funkcionális térszervezésre és a telített, mégis visszafogott színekre koncentráltak. A belsőépítészeti terv vezérfonala a nyers beton felületet idéző dekorvakolat, amelyhez markáns kontrasztként mély kék árnyalatokat és természetes fa textúrákat társítottak – a színválasztás erőteljes karaktert és mélységet ad a térnek. A további anyagok és árnyalatok kiválasztásánál a tökéletes összhangra törekedtek, a kék szín gazdagságát finoman kiemelve hoztak létre egységes, mégis izgalmas vizuális kompozíciót.

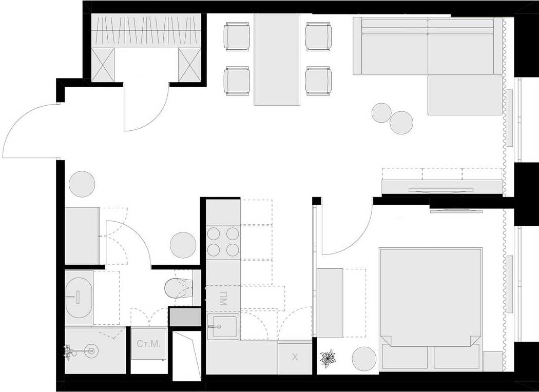
A 48 m²-es lakás elosztását leginkább ahhoz az adottsághoz kellett igazítani, hogy csak egyetlen, rövidebb falon van két ablak. A tulajdonos kérése egy olyan funkcionális térszervezés volt, amely a közösségi zónákat – a konyhát, az étkezőt és a nappalit – logikusan tagolja, ugyanakkor egy teljesen privát teret is létrehoz a külön hálószobával. Fontos volt még egy gardrób kialakítása is.
Alaprajz és a tervezéshez használt hangulattábla (moodboard)
A tervezők leleményességének köszönhetően okos megoldások születtek: bár a konyha gépészetileg az eredeti helyén maradt, a hálószoba felé nyitott belső ablaknak köszönhetően természetes fénnyel telik meg. A konyha a nappali vizuális kiterjesztéseként, azzal egy légtérben kapott helyet; tágas és jól felszerelt, mégis diszkréten bújik meg a bútor oldalát elrejtő elem takarásában.
Ez is érdekelhet: Így lett kreatív, érdekes berendezés a fiatal férfi új, 48m2-es lakásában
A kicsi, ugyanakkor jól felszerelt L alakú konyha három szintes: vannak alsó, felső szekrények és egy sor közvetlenül a mennyezet alatt, ahol a ritkán használt holmikat lehet elpakolni. A fő tárolórendszer az előszobából nyíló gardróbhelyiség.
Ez is érdekelhet: Könnyed, légies és rugalmas tér fiatal, aktív nő 48m2-es lakásában
A falak díszítéséhez festéket és betonhatású dekorvakolatot használtak – az utóbbi felületek tapintásra kellemesek, moshatóak, tökéletesen passzolnak a stílushoz, és markáns megjelenést adnak az enteriőrnek. A padló laminált, a dekorációban használt fa panelek otthonos, természetes hangulatot adnak, kontrasztban a betonhatású textúrákkal.
Kényelmes, zuhanyzós fürdőszobát építettek ki, a helytakarékos megoldásnak köszönhetően a divatos terrazzo burkolattal díszített zuhanyfülke mellett egy oszlopban polcokat, zárt szekrényt lehetett kialakítani, alul mosógéppel.
további cikkek kis lakás berendezése témában | lakberendezés: ISTOK design bureau | fotók: Anton Ivanov






















