Az 1968-ban épült társasházban található ingatlan felújítása során a tulajdonosok számára elsődleges szempont volt az örökölt otthon meleg, családias hangulatának megtartása. A tervezői koncepció a „radikális csere helyett értékmentés” elvére épült: bár műszakilag minden elemet korszerűsíteni kellett, a cél az volt, hogy a lakás személyes karaktere és a tér történetisége ne vesszen el. A végeredmény egy karakteres, mid-century stílusjegyeket hordozó, műszakilag teljesen megújult otthon, amely a tulajdonosok emlékeit is tiszteletben tartja.

Térszervezés és a funkciók újragondolása
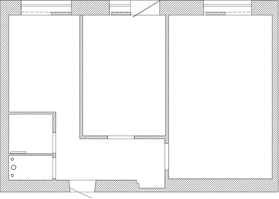
A mindössze 49 négyzetméteres alapterület maximális kihasználása érdekében a tervező jelentős átalakításokat végzett az alaprajzon. A fürdőszoba és a mellékhelyiség összevonásával tágasabb vizesblokk jött létre, míg a közlekedőben egy háztartási blokkot (rejtett mosókonyhát) alakítottak ki.
A szűkös terek vizuális tágítása érdekében a szobákat enfilade elrendezéssel nyitották egybe, a korábbi közlekedőfolyosó helyén pedig egy gardróbot alakítottak ki. A belmagasság érzetének növelését a szokványosnál magasabb és szélesebb ajtónyílások alkalmazásával értékelt el. Ezzel a megoldással a lakás elveszítette a korszakra jellemző típuslakás-jellegét, és a mid-century stílusra jellemző légiességet kapott.
A nappali bejárata – akárcsak a bejárati ajtó – portálszerű keretezést kapott, ami ünnepélyes, reprezentatív karaktert kölcsönöz a térnek. Az előszoba a természetes fénynek és a gardrób tükörborítású ajtóinak köszönhetően optikailag kitágul, elveszítve korábbi szűkös jellegét.
Konyha: retró esztétika, modern technológia
A konyhabútor egyedi asztalosmunka eredménye, amely tudatosan idézi a múlt század közepének formavilágát. A felső szekrénysor szellős elhelyezése – csak az egyik falon fut végig – segít megőrizni a tér tágasságát. Bár a beépített gépek modernek, megjelenésükben illeszkednek a koncepcióhoz: a főzőlap és a sütő sárgaréz szerelvényei, valamint a hűtőszekrény szokatlan, a konyhabútor kék frontjaival harmonizáló árnyalata mind a retro hatást erősítik. A költséghatékony anyagválasztást a gondosan megválasztott színpaletta és a karakteres fogantyúk emelik prémium hatásúvá.
Ez a múltidéző dizájn elegáns kontrasztot alkot a modern anyagokkal és a falakat díszítő kortárs festményekkel, amelyek szerves részévé váltak az enteriőrnek.
Ez is érdekelhet: A retro stílus életteli otthonossága fiatal nő 45 m²-es lakásában
A múlt öröksége: anyaghasználat és bútorok
A hatvanas-hetvenes évek hangulata visszaköszön a burkolatok kiválasztásában, a csempék formátumában, a padlóburkolat kiosztásában, valamint a gardrób és a konyha ajtóinak formavilágában. Az enteriőr meghatározó stíluselemei azonban egyértelműen a restaurált bútorok.
A nappaliban központi szerepet kapott egy vintage, cseh bútorgarnitúra, amely évtizedeken át a család tulajdonában volt. A bútorok eredeti, markáns vöröses árnyalatát a restaurálás során egy nyugodtabb, elegánsabb diófa tónusra cserélték. A fotelek, a kanapé és az állólámpa felújításával és újrakárpitozásával olyan tárgyak kerültek vissza a térbe, amelyek nemcsak esztétikai értékkel bírnak, hanem a minőségi anyaghasználatuknak köszönhetően időtállóak is.
A hálószobában a funkcionális térszervezés dominál: olvasósarok és egy tágas gardrób is helyet kapott, amelyet egy markáns, grafikus mintázatú textil függöny választ el a tértől. A függöny elhúzásával nem közvetlenül a ruhák, hanem egy tükörrel kombinált komód válik láthatóvá, rendezett hatást keltve. Az enteriőrbe beemeltek egzotikus, távol-keleti kiegészítőket is – például egy különleges éjjeliszekrényt –, amelyek izgalmas, eklektikus párbeszédet teremtenek a különböző kultúrák és korszakok között.
Bár a vizuális megjelenés a múltat idézi, a lakás műszaki tartalma a 21. századi igényeknek megfelelően teljeskörűen megújult. A gépészeti felújítás magában foglalta a vezetékek cseréjét, vízszivárgás-érzékelők telepítését, valamint a légkondicionáló, a modern bojler és a videó kaputelefon integrálását.
további cikkek kis lakás berendezése témában | lakberendezés: Alexandra Yakushenko | fotók: Ivan Sorokin
























