Lehetséges-e mindössze 19 négyzetméteren úgy élni, hogy ne kelljen rengeteg kompromisszumot kötni a funkcionalitás terén? Ezzel a projekttel a lakberendező megmutatta, hogyan férhet meg egymás mellett a konyha, az étkező, a háló és a bőséges tárolóhely egyetlen apró térben, mindezt a könnyedség és a funkcionalitás jegyében.
A koncepció és a kihívás
A projekt fő célkitűzése az volt, hogy extrém kis alapterületen hozzanak létre egy kényelmes, minden igényt kielégítő életteret egy fiatal egyetemista lány számára. A tervező elé állított feladat nem volt egyszerű: szűkös határidők és szigorú költségvetési keretek között kellett maradandót alkotni. A koncepció alapja a pasztell árnyalatok nyugtató hatása, amelyhez a bolhapiacokon fellelt vintage dekorációs tárgyak adnak karaktert, elkerülve a túlságosan steril, „új” hatást, élettel töltve meg a teret. A végeredmény egy olyan komfortos, egyszobás lakás lett, amely vizuális trükkökkel és okos megoldásokkal feledteti valós méreteit.

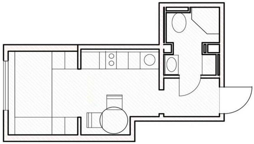
Az eredeti állapot és a térszervezés
Az L-alakú alaprajzzal rendelkező ingatlan beosztása logikus, ám a rendelkezésre álló hely szűkössége miatt némi korrekcióra szorult. A bejárattól jobbra a vizesblokk, szemben pedig a konyhával egybenyitott lakótér található. A felújítás során a szerkezeti átalakítások minimálisak, de kulcsfontosságúak voltak. A fürdőszoba falát kismértékben az előszoba irányába tolták el, hogy a mosógép kényelmesen elférjen. A lakószobában gipszkarton válaszfalakkal hoztak létre új beugrókat, amelyek lehetővé tették a konyhabútor és az ablak melletti gardróbszekrény síkba süllyesztett beépítését, így a bútorok nem türemkednek be a térbe, hanem szerves részei a falaknak.
A térérzet növelése érdekében a falakat egységes, világos árnyalatra festették, ami tágasabbnak mutatja a helyiségeket. A padlóburkolat tekintetében is a folytonosságra törekedtek: a szobában, a konyhában és az előszobában azonos, világos kőhatású vinyl burkolat fut végig, amely nem töri meg a teret, így a szem akadálytalanul futhat végig a teljes lakáson.
A mindössze 13 négyzetméteres lakótérben a tárolás és a funkciók elhelyezése komoly tervezői leleményt igényelt. A lineáris konyhabútor egy előre kialakított falmélyedésben kapott helyet. A helykihasználás maximalizálása érdekében a felső szekrények egészen a mennyezetig érnek, a magas elemben pedig helyet kapott a hűtőszekrény és a beépített mikrohullámú sütő is. A bútorfrontok fogantyú nélküli kialakítása és a fal színével megegyező árnyalata azt a célt szolgálja, hogy a konyha vizuálisan szinte „feloldódjon” a térben.
Közvetlenül a konyha mellett, egyfajta fülkében alakították ki az étkező zónát. Itt a tervező a térnövelés egyik leghatékonyabb eszközéhez nyúlt: a falakat több mint felerészben tükör borítással látták el. Ez a megoldás nemcsak a határokat tolja ki optikailag, hanem a fényt is megsokszorozza. A tükrökre szerelt falikarok este hangulatos, szórt fényt biztosítanak, kiegészítve a mennyezetbe süllyesztett, minimalista spotlámpák funkcionális világítását.
Ez is érdekelhet: Pici otthon 19 m²-en: kreatív berendezés, amit a japán mikrolakások inspiráltak
A szoba másik felében, az ablak előtt rendezték be a pihenő zónát. A helytakarékosság jegyében a franciaágy egyedi tervezésű, magasított dobogóra került, amely alatt mély fiókok rejtik el az ágyneműt és egyéb ritkábban használt tárgyakat. Az ágyvégnél a falat grafikus mintázatú tapéta emeli ki, amely fókuszpontot ad a térnek, és amelyet kétoldalt elhelyezett olvasólámpák kereteznek.
Ez is érdekelhet: Szekrényágy egyetemista fiúnak helytakarékosan berendezett mini lakásban, 19m2
A tárolórendszerek itt is a falakba simulnak: az ágy mellett, illetve vele szemben is egy-egy beépített szekrény található. Ez utóbbi egy televíziós fülkét is magában foglal, így a médiafal nem vesz el külön helyet. Az integrált fogantyúk és a falszínnel harmonizáló felületek itt is a zsúfoltságérzet elkerülését szolgálják, miközben minden szükséges holminak helyet biztosítanak.
A vizesblokkban a padlót márványmintás greslap, a falakat pedig a világos festék és a zuhanyzónában alkalmazott fényes, világos csempe kombinációja borítja. Különleges látványelem a WC tartályának szerelőfala felett elhelyezett mozaikbetét, amely függőleges sávként folytatódik a zuhanyzóban is, dinamikát víve a kis helyiségbe.
A tárolás itt is maximális: a mosdó alatti szekrény mellett a szerelőfal felett és a mosógép felett is beépített tárolók kaptak helyet. A tükrös felületek itt sem hiányozhatnak: nemcsak a mosdó felett, hanem a beépített szekrények frontjain is visszaköszönnek, tovább tágítva a teret. A világításról a rejtett LED-szalagok gondoskodnak, amelyek a falfülkékben kiemelik a burkolatok textúráját, intim és relaxáló atmoszférát teremtve.
további cikkek kis lakás berendezése témában | lakberendezés: Natalia Kosyanenko | fotók: Mariya Irinarkhova


























