Ezt a kulcsrakész új építésű lakást a házaspár a kivitelező által elkészített belsőépítészeti megoldásokkal vásárolta meg. Lássuk, hogyan sikerült az üres terekben alapvetően skandináv és japandi stílusjegyeket hordozó, egyszerű megoldásokkal berendezett enteriőrt kialakítani.

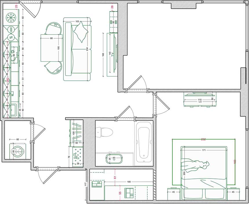
A házaspár semleges, világos enteriőrt szeretett volna, skandináv és japandi stíluselemekkel a dizájnban. Az alaprajzon nem változtattak, hogy a lehető legnagyobb mértékben megőrizzék a meglévő burkolatokat és felületeket. Az egyik hálószobát egyelőre üresen hagyták, később gyerek- vagy dolgozószobát alakítanak ki. Az ingatlan erősségei a hatalmas ablakok, amelyek természetes fénnyel töltik meg a kis alapterületű szobákat.
Ez is érdekelhet: Maximálisan kényelmes és praktikus alaprajz három fő részére 58m2-en
Az előszobába egy gardróbszekrényt terveztek. Ennek egyik része nyitott, akasztókkal és egy ülőkével. A szekrény alatt hagytak helyet a cipőknek.
Ez is érdekelhet: Sok polcot és szekrényt kért a fiatal férfi új otthonának berendezésében – 58m2
A világos konyhabútort egy fal mentén helyezték el, és a frontok színének köszönhetően szinte “feloldódik” a térben. A konyhai hátfalat kisméretű csempével burkolták. A csempézett sarok kialakítása gyakran nem esztétikus, ennek elkerülése érdekében úgy döntöttek, hogy a szomszédos falon egészen a mennyezetig folytatják a burkolást.
Ez is érdekelhet: Ideális lakás a szülőknek – 58m2-es kétszobás lakás modern klasszikus stílusban
A falakat lefestették egy az eredeti hófehérnél kellemesebb, szürkés árnyalatú fehérrel, a szegélyléceket és az ajtókat kicserélték. A laminált padlót meghagyták az eredeti, kivitelező által lerakott formájában. A lakásban tágas a konyha-nappali, de a formája miatt nehéz volt egyszerre kialakítani egy étkezőt és egy pihenőzónát kanapéval, ezért úgy döntöttek, hogy a kanapét a tér közepére helyezik. A pihenő zónát egy dohányzóasztallal és falra szerelt tárolórendszerekkel egészítették ki. A polcokba épített, lágy, sárga fényű világítás kiegészítő esti fényforrásként is használható.
Ez is érdekelhet: A bézs árnyalatok időtlen szépsége egy 58m2-es lakásban, háromfős család otthona
A hálószobában a falakat festék borítja. Dekorációként duropolimer léceket használtak az ágy fejtámlája mögött, amelyeket a fal színére festettek. A kivitelező egy mély falfülkét alakított ki a szobában, amelyben gardróbot rendeztek be. A nyitott gardróbrendszert egyedileg készítették, világítással látták el, és üvegezett tolóajtókkal zárták le.
Ez is érdekelhet: Hogyan változtattak az alaprajzon egy 58m2-es lakásban, hogy elférjen három szoba és egy gardrób
Az alaprajz szerint a lakásban két vizesblokk található. A kisebbikben egy mosókonyhát alakítottak ki mosó- és szárítógéppel. A fürdőszobában a falakon lévő csempét meghagyták, csupán a fugákat festették át egy hangsúlyos terrakotta színre. A padlólapot terrazzo hatású greslapra cserélték, ezzel a lappal burkolták a kádat is. A tárolást a beépített WC-tartály feletti szekrény és egy tágas, fiókos mosdószekrény biztosítja.
Ez is érdekelhet: Fiatal házaspár első közös lakása: japandi stílus, finom, természetes színárnyalatok
további cikkek 50 és 100n2 közötti lakások lakberendezése témában | lakberendezés: Daria Buyanova | fotók: Egor Vorobyev


























