A férfi otthonokhoz választott racionális, modern stílus gyakran annyira nélkülözi az érdekes fókuszpontokat teremtő dekorációt, hogy az ilyen terek hűvösnek és egysíkúnak hathatnak. Ebben a 60 m²-es lakásban a tervezők megtalálták az egyensúlyt: a letisztult formákat természetes anyagokkal és egyedi, erdőt idéző világítási koncepcióval és tapétával tették otthonosabbá.
A tervezési koncepció központi eleme a fény és a természet kapcsolata lett. A minimalizmust a tervezők egy “varázserdő” tematikával oldották fel, amely nem direkt dekorációként, hanem hangulati elemként jelenik meg. A lakásban számos világítási forgatókönyv áll rendelkezésre, így a tulajdonos mindig az aktuális hangulatához igazíthatja a fényviszonyokat, a funkcionális fényektől egészen a rejtett hangulatvilágításig.

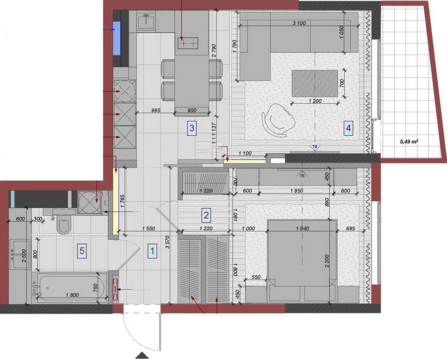
A projekt célja egy fiatal férfi számára készült otthon megtervezése volt egy új építésű lakóparkban. A megrendelő határozott elképzelésekkel érkezett: a modern, maszkulin stílust részesítette előnyben a felesleges díszítések kerülésével, ugyanakkor ragaszkodott a természetes anyagok használatához is. A 60 négyzetméteres alapterületen egy tágas, amerikai konyhás nappalit, egy elszeparált hálószobát és egy fürdőszobát alakítottak ki.
Alaprajzi korrekciók és térszervezés
Az eredeti alaprajz némi módosításra szorult, különösen a bejárati zónában, mivel az előszoba túlságosan szűkösnek bizonyult. A térérzet javítása és a tárolókapacitás növelése érdekében a tervezők elbontották az előszoba és a hálószoba közötti válaszfalat, helyére egy beépített szekrények fogadására alkalmas falfülkét alakítottak ki.
A közösségi tér és az előszoba közé egy elegáns, fémkeretes, színezett üvegből készült tolóajtó került. Ez a megoldás lehetővé teszi a terek rugalmas elválasztását: szükség esetén az “ajtó“ a falba csúsztatva teljesen eltűnik, vizuálisan és fizikailag is egybenyitva a tereket. A gépészeti megoldások – különösen a szellőztető rendszer csövei – miatt a nappaliban, a hálószobában és a fürdőben az álmennyezetet mintegy húsz centiméterrel lejjebb hozták.
Előszoba
Már a belépéskor érvényesül a lakás vezérmotívuma. A falakat a Little Greene palettájából választott, mosható, matt festék borítja, amely elegáns hátteret biztosít a különleges, stilizált fákat mintázó világítópaneleknek. Bár a tulajdonos kezdetben idegenkedett a hangsúlyos dekorációs elemektől, ez a finom, asztalosműhelyben készült megoldás elnyerte tetszését: a panelek meleg, hívogató fénnyel töltik meg a teret, optikailag tágítva a folyosót. A padlót az Atlas Concorde kőhatású kerámia burkolata fedi, amely strapabíró és természetes hatást kelt.
Konyha: Funkcionalitás felső szekrények nélkül
A konyha kialakításánál a fiatalos életvitel volt a meghatározó szempont. Mivel a tulajdonos ritkán főz, a tervezők bátran elhagyták a felső konyhaszekrényeket, ami szellősebbé, nappali-szerűbbé teszi a teret. A tárolást és a háztartási gépek (köztük a Bosch sütő és a Liebherr hűtőszekrény) elhelyezését egy magas, mennyezetig érő beépített blokk oldja meg.
A konyhabútor fehér lakkfelületei ritmust adnak a térnek, míg a hátfalat nedvességtűrő impregnálással kezelt dekorvakolat borítja. A konyhasziget felett, az étkezőzónát kijelölve, ágakat formázó csillár erősíti a természeti tematikát. A konyha padlóburkolata megegyezik az előszobáéval, a sötétszürke pala hatású felület vizuálisan is leválasztja a funkcionális zónát a nappali melegebb burkolatától.
Nappali: Ikonikus design és természetes anyagok
A nappaliban a hidegburkolatot meleg tónusú fapadló váltja fel. Érdekesség, hogy bár a padló színe egységes, a deszkák szélessége változó, ami finom, alig észrevehető, mégis dinamikus textúrát ad a felületnek. A fehér falak és a kőhatású dekorvakolat mellett itt is megjelennek a fa felületek, például a diófából készült elemek formájában.
A berendezés visszafogott, a tér fókuszpontjában a 20. század közepének egyik design ikonja, Arne Jacobsen legendás Egg fotelje áll. A kevés, de gondosan válogatott bútordarab hagyja érvényesülni a teret. A világítás itt is kulcsszerepet kap: a központi fényforrás helyett a rejtett karnisvilágítás, a spotlámpák és az állólámpák variálhatósága teremti meg az otthonos légkört.
Hálószoba: A nyugalom szigete
A hálószoba a tárolás központja is egyben: a mennyezetig érő beépített szekrények és a komódok a fal színére fújt matt felületükkel szinte beleolvadnak a környezetbe, elrejtve a ruhákat és a személyes tárgyakat. A “varázserdő” koncepció itt teljesedik ki igazán: az ágy mögötti falat a Cole & Son tapétája díszíti, amelynek fa motívumai rímelnek az előszobai világítópanelek grafikájára.
Fürdőszoba: Spa-élmény kis helyen
A vizesblokkban a tervezők a funkcionalitást a természetes esztétikával ötvözték. A falak egy részét és a padlót itt is természetes hatású pala, illetve az Atlas Concorde burkolatai fedik, melyeket az Equipe Cerámicas ‘Scale’ kollekciójának különleges formájú csempéi egészítenek ki.
A helyiség egyik legérdekesebb eleme a tölgyfurnérral borított fali panel, amelyet speciális, vízlepergető lakkréteggel kezeltek. Ez az esztétikus megoldás nem csupán dekoráció, hanem egy fülkét rejt, amelyben a mosógép kapott helyet. A szaniterek esetében a minőségre helyezték a hangsúlyt, a választás a német Duravit termékeire esett, biztosítva a tartósságot és a modern formavilágot.
további cikkek 50 és 100n2 közötti lakások lakberendezése témában | lakberendezés: YA INTERIORS | fotók: Sergey Burt
























