Hogyan lehet egy kétszobás, 47 m²-es ingatlanból praktikusan élhető otthont varázsolni egy négytagú család számára? A kihívás nem kicsi, de a megfelelő térelválasztással, multifunkcionális bútorokkal és skandináv letisztultsággal a végeredmény nemcsak élhető, de kifejezetten stílusos is lehet. Elemzésünkben bemutatjuk, milyen trükkökkel sikerült maximálisan kihasználni a teret ebben a lakásban.

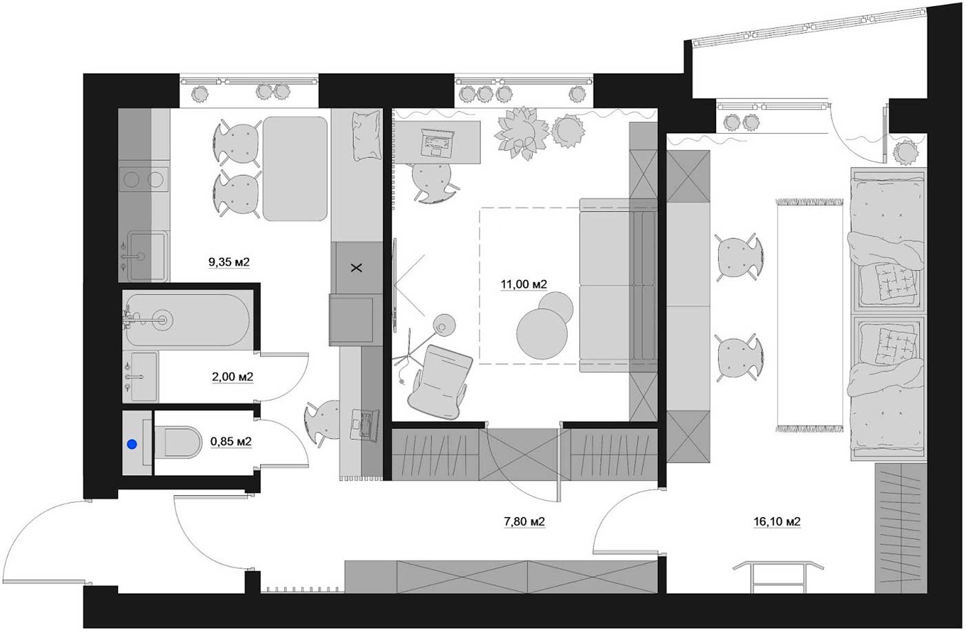
A kis alapterületű lakások berendezése akkor a legkomolyabb tervezői feladat, ha a funkcionalitást egy teljes család – jelen esetben két felnőtt és két gyermek – igényeihez kell igazítani. Ebben a projektben a tervező célja az volt, hogy a költséghatékonyságot szem előtt tartva, skandináv stílusjegyekkel operálva hozzon létre egy modern életteret. A koncepció sikerének kulcsa a zónákra osztásban rejlik: a fürdő és a toalett szeparált maradt, a konyha étkezőként, a folyosó dolgozósarokként is funkcionál, a nappali éjszakára hálószobává alakul, a gyerekszoba pedig alvásra, tanulásra és játékra is alkalmas teret biztosít két gyermek számára.
Előszoba
Szűk folyosók és előterek esetén az egyik leghatékonyabb eszköz a nagyméretű tükörfelületek alkalmazása. Ebben a lakásban a bejárati zónában a padlótól mennyezetig érő tükrös szekrényfrontok visszaverik a fényt, így a sötétebb, ablak nélküli közlekedő is világosabbnak, levegősebbnek hat. Érdemes a padlóburkolattal is játszani: itt a geometrikus mintázatú járólap (Dualgres Bosham Blue) vezeti a szemet, elterelve a figyelmet a tér szűkösségéről.
Átlátható térelválasztás
A nyitott terek előnye a világosság, hátránya a funkciók összemosódása. A falak felhúzása helyett azonban érdemes könnyedebb megoldásokat választani. A képeken látható fa lamellás térelválasztó kiváló példa erre: kijelöli a közlekedő és a dolgozósarok határát, intimitást ad az íróasztalnál ülőnek, ugyanakkor átengedi a természetes fényt. Ez a megoldás a skandináv stílusba is remekül illeszkedik, egy kis melegséget csempészve a modern enteriőrbe.
Karakteres hátfal a konyhában
Egy kis konyhában, ahol a bútorok fehérek és egyszerű vonalvezetésűek, a térérzet növelése érdekében szükség van egy fókuszpontra. A tervező itt egy mélykék, geometrikus mintázatú csempét (Equipe Scale) választott a konyhapult mögötti falra. Ez a merész színválasztás mélységet ad a térnek, és elegáns kontrasztot alkot a fa munkalappal, valamint a fehér frontokkal. A felső szekrények üveges elemei szintén a légiességet szolgálják, megtörve a zárt felületek monotonitását
Étkezősarok
Kis lakásokban gyakori probléma az étkezőasztal elhelyezése. Ha nincs hely külön étkezőhelyiségre, a konyhán belül érdemes kijelölni a zónát. Itt a falburkolat kapta a főszerepet: a rusztikus, kopottas fa hatású panel vizuálisan leválasztja az étkezőt a konyha többi részéről. A helytakarékosság jegyében székek helyett padot is beépítettek, amely alatt – a rendelkezésre álló helyet maximálisan kihasználva – további tárolórekeszek kaptak helyet.
A nappali titkos funkciója: a szekrényágy
Ahol nincs lehetőség külön szülői hálószoba kialakítására, ott a nappalinak kell ezt a funkciót ellátnia. A kényelmetlen kinyitható kanapék helyett azonban létezik elegánsabb megoldás: a szekrényágy. Ebben az enteriőrben a kanapé mögötti, zárt szekrénynek tűnő fal rejti a franciaágyat. Napközben a tér tágas nappaliként és dolgozószobaként funkcionál, este pedig egyetlen mozdulattal teljes értékű hálóvá alakul, anélkül, hogy a nappali esztétikája sérülne.
Természetes dekorációs elemek
A modern, letisztult terekben fontos a természetközeliség megjelenítése, hogy az otthon ne hasson sterilnek. A nappaliban látható masszív fa panel nemcsak dekoráció, hanem a tér struktúráját is gazdagítja. A finom rajzú tapéta és a fa elem kombinációja mozgalmassá teszi a TV falat, elvonva a figyelmet a technikai eszközökről.
Vertikális térkihasználás a gyerekszobában
Két gyermek esetén egy kis szobában a vertikális terjeszkedés elengedhetetlen. A házikó formájú ágy nemcsak alvóhely, hanem a gyerekek saját kis birodalma is. A szerkezet kialakítása lehetővé teszi, hogy az ágy alatti fiókokban rengeteg játék vagy ruha elférjen. A játékosságot a tematikus tapéta és a hangulatvilágítás fokozza, barátságos kuckóvá varázsolva az alvóhelyet.
Kétszemélyes tanulózóna
Iskolás korú gyermekeknél kritikus pont az íróasztal elhelyezése. A projektben látható megoldás egyetlen hosszú pulttal oldja meg két gyermek kényelmes elhelyezését. A falra szerelt, nyitott polcrendszer és a bútorba integrált világítás biztosítja, hogy minden eszköz kéznél legyen, de ne foglaljon el értékes helyet az asztallapon. A parafa hátfal pedig nemcsak védi a falat, hanem lehetőséget ad jegyzetek, rajzok kitűzésére is.
Felhasznált burkolatok listája:
- Konyha hátfal: Equipe Scale
- Előszoba padló: Dualgres Bosham Blue
- Mellékhelyiség: Cifre Ceramica OPAL SKY
- Fürdőszoba fehér csempéje: Equipe Chevron
- Fürdőszoba falon fa hatású csempe: Kerama Marazzi Dover Gray
WC és fürdőszoba
további cikkek kis lakás berendezése témában | lakberendezés: Julya Chernova




































