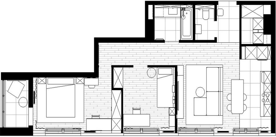
A lakberendezők egy programozó házaspár 67 m²-es lakását tervezték meg egy új lakóparkban. A tervezők előtt több feladat állt: egyrészt a viszonylag kis alapterületen három külön szobát – köztük egy gyerekszobát, amely a felújítás befejezése után vált aktuálissá – kellett berendezni; másrészt a kivitelezési anyagok kiválasztásakor tartani kellett egy korlátozott költségkeretet.

A lakás az átvételkor egy teljesen egybenyitott, válaszfalak nélküli tér volt. A lakberendezők a szükséges helyiségek és bútorok elhelyezését milliméterre pontosan megtervezték: „Minden egyes milliméter számított: úgy kellett felhúzni a falakat és elhelyezni a bútorokat, hogy a közlekedő sávok ergonomikusak maradjanak. Több tört vonalú falat is kialakítottunk a beépített, rejtett szekrények számára” – mesélik a tervezők.
Ez is érdekelhet: Család új építésű lakása szabálytalan alaprajzzal – letisztult, elegáns enteriőr, 67m2
A végső tervben külön hálószoba, gyerekszoba, konyha‑nappali, külön fürdő és WC, valamint egy kisebb gardrób szerepelt. A konyha‑nappaliban a tervezők egyik kedvenc, „áramló” alaprajzi megoldását alkalmazták: minden funkció több oldalról megközelíthető, a konyhasziget és a kanapé például nem simulnak falhoz. A folyosói gardróbot mennyezetig futó tolóajtó rejti, amely egyben tükörként is szolgál.
Ez is érdekelhet: Férfias minimalizmus és formavilág játékos részletekkel, 67m2-es lakás
A semleges háttér és a fókuszpontok kialakításához a tervezők különféle anyagokat és textúrákat kombináltak. A lakószobák összes fala és a rejtett tokos ajtók kávébarna árnyalatú tapétát kaptak, a lábazati szegélyek süllyesztve futnak a falsíkban. A TV‑zónát dekorvakolat és rejtett világítás emeli ki, míg az előteret a falak tónusához igazított, süllyesztett álmennyezet jelöli ki.
Ez is érdekelhet: Lehetetlen kényelmes négyszobás lakás kialakítása 67m2-en? A gyermekes család megoldotta
A zöld árnyalatú kiegészítők és textilek szintén hangsúlyos szerepet kaptak. „A koncepció szerint eredetileg kékes tónusok domináltak volna, ám a kivitelezés során a megrendelők a zöld mellett döntöttek – valami rejtélyes okból ez a szín a projektjeink 80%-ában felbukkan” – jegyzik meg a tervezők. A padlótól mennyezetig érő nyílászáróknak köszönhetően napközben bőséges a természetes fény, estére pedig többféle világítási lehetőséget alakítottak ki.
Ez is érdekelhet: Homoktövis és cseresznye színek, modern stílus 67m2-es lakásban
A hálószobában az ágy fejtámlája mögé beépített LED‑csík került, a folyosó végében pedig mozgásérzékelős irányfény működik, amely finom derengést ad, így éjszaka nem zavaró, viszont a közlekedést segíti.
Ez is érdekelhet: Fiatal házasok és egy nagy kutya otthona, 67m2-es lakás szép dekorációval
Ez is érdekelhet: Ajándék szülőknek: lakásberendezés visszafogott, természetes színpalettával, 67m2
további cikkek 50 és 100n2 közötti lakások lakberendezése témában | lakberendezés: Bezformi stúdió | fotók: Alexander Yurchik


























