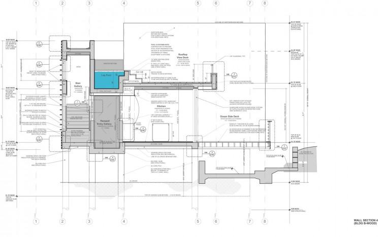
A Hughes Umbanhowar Architects egy amerikai építész cég, stúdióik Dél-Floridában és Los Angelesben vannak. Az ő munkájuk a Beach Road 2 Rezidencia, egy 3.600 nm-es tengerparti ház a floridai Jupiter Szigeten… a teljes cikkhez kattintson a képre>>

Kivonat a project leírásából:
Egyszerre modern és időtlen, egyszerű tengerparti otthon, ugyanakkor egy divatos szigeti villa. Az építészeti design olyan elemeket köt össze mint az üveg, homok és alumínium, metafórikusan és anyagában is, a mindennapi élet három területét jelenítve meg: a homok, mely körülveszi a hálószekciót, alumínium, mely élettel tölti meg a szórakozást szolgáló tereket és az üveg mely a közösségi tereket terjeszti ki a falakon túlra. Mindegyik szekció orientációjának legfőbb szempontja a fény és kilátás legteljesebb kihasználása volt.
A lenti térképen a Street View (utcanézet) is elérhető, húzd a sárga ember ikont a kívánt pozícióba.
Fotók: Ken Hayden



















