Ezt az új építésű, kis alapterületű lakást egy modern lakóparkban vásárolta meg a tuljdonos. A fő célkitűzés egy értékálló berendezés volt, amely nem avul el gyorsan a trendek változásával, és a személyes karaktert a kiegészítőkkel lehet hozzáadni a letisztult, minimalista enteriőrhöz.

Fontos cél volt még a tér maximális és hatékony kihasználása, a pihenő-, munka- és tárolófunkciók átgondolt integrálásával.
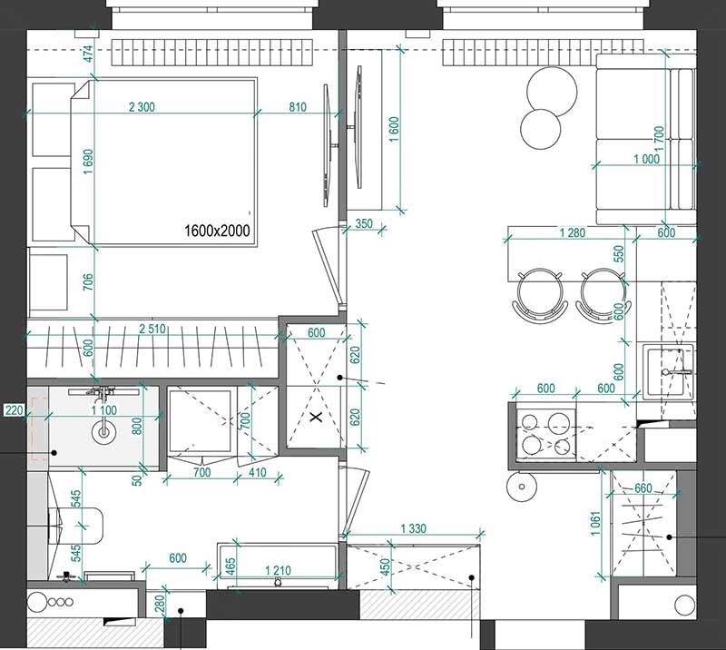
Az alaprajzot csak minimálisan módosították. A vizesblokkok az eredeti helyükön maradtak. A konyhabútornak gipszkarton falfülkéket építettek, a fürdőszoba területét a közlekedő rovására növelték, a hálószobában pedig egy gardróbot alakítottak ki.
Előszoba
A bejárati zóna és a fürdőszoba padlóját greslappal burkolták. Az előszobában egy szekrény a kabátoknak, valamint egy különálló cipősszekrény kapott helyet.
Konyha és nappali
A konyhabútor világos, meleg tónust kapott, a plafonig érő felső szekrények matt fekete üvegezésűek. A beépített gépekkel teli magas elemek (toronyszekrények) a szemközti falon, egy falfülkébe süllyesztve kaptak helyet. A konyha mindennel felszerelt: háromégős indukciós főzőlap, beépített páraelszívó, 45 cm-es mosogatógép, vízszűrő és konyhamalac. A toronyszekrények rejtik a hűtőt, a borhűtőt, a sütőt és a mikrohullámú sütőt is.
A konyhapult érdekessége, hogy zökkenőmentesen fut át a konyhát a nappalitól elválasztó bárpultba. A pult fölött egy látványos, piros függeszték lóg.
Ez is érdekelhet: Városi kislakás szuper funkcionális és karakteres berendezéssel – ügyvédnő 36m2-es otthona
Hálószoba
A szobákban a falakra festéket, a padlóra pedig kvarc-vinyl burkolatot választottak. Az ágy fejtámlája mögötti falszakaszt velúr hatású dekorvakolattal emelték ki. A függőleges tagolást a vakolatba süllyesztett fekete fémprofilok adják.
A hálószobába egy franciaágy és egy méretes tolóajtós gardrób került. „Gyakori tévhit, hogy a fekete szín szűkíti a teret, és hogy kis alapterületen tilos sötét árnyalatokat használni, de ez nem így van” – jegyzi meg a tervező. „A lényeg, hogy hol és hogyan alkalmazzuk, milyen felületeken és textúrákon. Ebben a hálószobában a sötét szín éppen ellenkezőleg, tágítja a teret, köszönhetően annak, hogy a fényes felület az ablakkal szemben kapott helyet.”
Fürdőszoba
A kompakt fürdőszobába egy épített zuhanyzót, valamint egy háztartási gép-tornyot (mosó- és szárítógép) terveztek. A kozmetikumok tárolásról egy beépített falfülke gondoskodik, illetve egy nagyméretű, tágas fiókokkal rendelkező mosdó alatti szekrényt is elhelyeztek.
további cikkek kis lakás berendezése témában | lakberendezés: Julia Grishina | fotók: Egor Kodyakov
























