A lakás berendezésének legfőbb díszei a tulajdonosok művészeti gyűjteményének darabjai. A tulajdonos házaspár szenvedélyes műtárgy és vintage gyűjtő, így a lakberendező legfontosabb feladata az volt, hogy a lehető legtöbb műalkotást helyezze a lakásban anélkül, hogy túlzsúfolttá válna a tér.

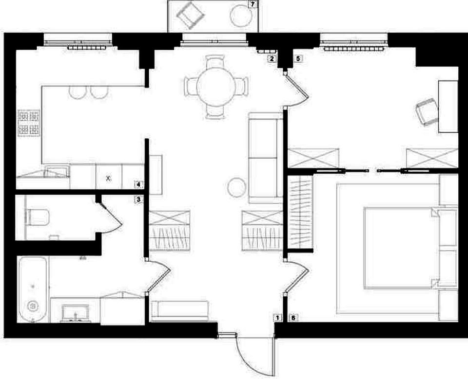
Az eredeti alaprajz különálló konyhát és két szobát tartalmazott. A tervezés során a tervező legfőbb célja volt, hogy vizuálisan megnyissa a tengelyt az nagy, parkra néző erkélyes ablakok felé, valamint hogy egyesítse a konyhát a közösségi térrel. Egy szokatlan javaslat volt az egyik szoba kettéválasztása dolgozószobára és hálóra. A két zónát nagy, matt üvegezésű tolóajtók választják el egymástól. Ezek általában nyitva vannak, de a tulajdonosok bármikor el tudnak vonulni, ha nyugalomra van szükségük a munkához. Amikor pedig a dolgozószoba ajtaja nyitva van a nappali felől, a lakás tágasnak és átjárhatónak tűnik.
Az előszobát két, dupla funkciójú bútor-tömbbel választották el a nappalitól: az előszoba felől ezek ruhatároló szekrények, a nappali felől pedig könyvespolcok. Az oszlopok szimmetrikusak, tagolják a teret, és vizuálisan is támogatják az erkélyre vezető tengelyt.
A konyha ablaka is parkra néz, ezért egy félig bárpult jellegű sarkot alakítottak ki reggelikhez vagy esti borozásokhoz. Ez lett a háziasszony kedvenc helye, de mindketten több időt töltenek a konyhában amióta elkészült a lakás.
Tekintettel arra, hogy a megrendelők műgyűjteménye többnyire élénk és hangsúlyos darabokból áll, a tervező szerette volna a lakást lágy-fehérbe „öltöztetni”, és ehhez fa-árnyalatokat, valamint a padlóburkolatként alkalmazott kőlapokat használt kiegészítésként.
Az enteriőrbe a tulajdonosok vintázs bútorait és lámpáit is be kellett illeszteni – például a kanapét és a nappaliban lógó csillárt.
A meleg hangulatú fürdőszoba sem maradt vintázs elem nélkül: a tükör mellé egy az 1970-es években készült VECA falilámpát tettek. A WC maradt külön, de a fürdőszoba területének növelése miatt ebből a helyiségből nyílik.
további cikkek 50 és 100n2 közötti lakások lakberendezése témában | lakberendezés: Evgeniya Samarina | fotók: Szergej Ananyev


























