Ebben a lakberendezési projektben a tervező fő irányelve az volt, hogy a kis alapterület nem kompromisszumokat, hanem kreatív megoldásokat követel. A 40 m²-es lakásba lépve egy olyan világ fogad, ahol a klasszikus polgári elegancia kezet ráz a modern térszervezéssel, mindezt egy meleg, „ölelő” színpalettába csomagolva.

A lakás hangulata már az első pillanatban magával ragad: mintha egy letűnt idők finom eleganciáját ötvözték volna a mai kor kényelmével. A terek kialakításával a tervező megmutatja, hogyan lehet a funkciókat elválasztani anélkül, hogy a térérzetet feláldoznánk.
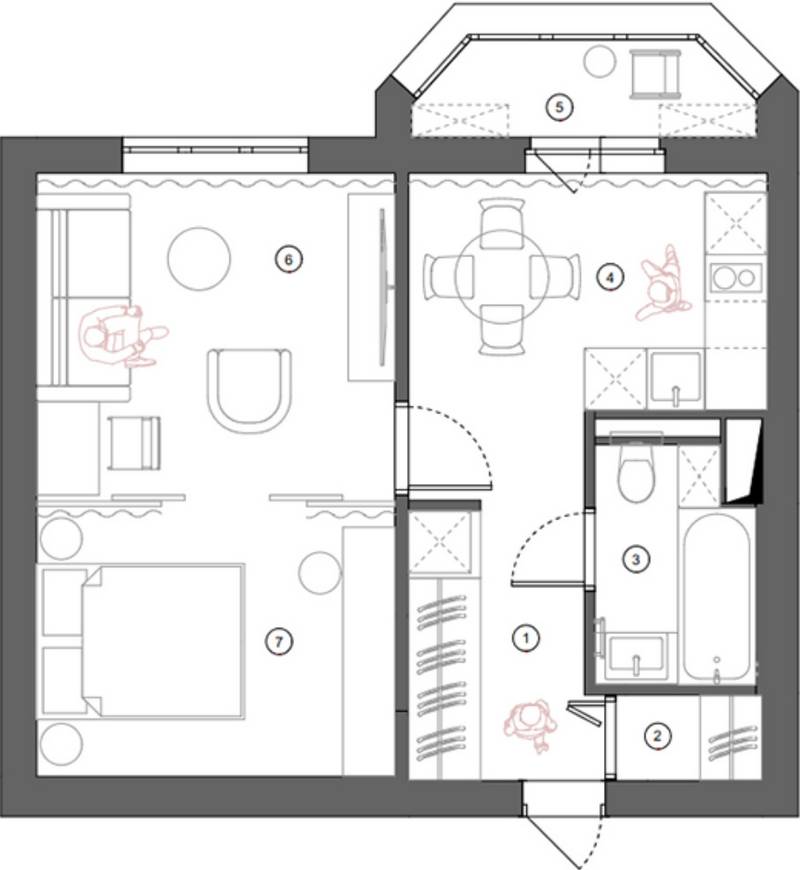
Előszoba és étkező
Az előszoba és a konyha-étkező zóna egy légtérben kapott helyet, de a burkolatok játékával finoman elkülönülnek. A mintás cementlapok nosztalgikus hangulata fogad a bejáratnál, amely aztán a szobák felé haladva elegáns, halszálkás fapadlóba vált. A beépített, tükrös gardróbszekrények nemcsak elnyelik a ruhákat, de tágítják a teret és szórják a fényt is. A kis kerek étkezőasztal felett lógó texturált lámpa pedig kijelöli az étkezés helyét a közlekedő végén.
Tipp: Tükrös felületek stratégiai használata
A szűk folyosókon vagy előszobákban a tükrös gardróbajtók elengedhetetlenek. Nemcsak a praktikum miatt, hanem azért is, mert visszatükrözik a fényt és a szemközti falat, így a folyosó kétszer szélesebbnek hat.
Tipp: Rétegezett világítás
Figyeld meg, milyen sokféle fényforrás van jelen! Ne elégedj meg egyetlen mennyezeti lámpával. Használj rejtett LED-szalagokat a stukkókban (hangulatfény), lógó lámpákat az éjjeliszekrények felett (irányított fény), és dekoratív csillárokat (általános fény).
A tér lelke: a nappali és háló kapcsolata
A lakás központi eleme a nappali és a hálószoba zseniális összekapcsolása. Ahelyett, hogy egy szűkös falat húztak volna fel, a tervező egy kazettás, üvegezett tolóajtó-rendszert álmodott meg. Ez a megoldás egyszerre praktikus és esztétikus: amikor nyitva van, a tér szellős és átjárható, amikor pedig csukva, biztosítja az intimitást, miközben a természetes fényt átengedi a belső terekbe.
A nappaliban a rozsdabarna bársony kanapé és a mohazöld fotel párosa teremti meg a hívogató atmoszférát, amelyet a falakon futó díszlécek (stukkók) tesznek igazán előkelővé. A helyiség drámai hatását a mennyezet alatt futó, mélyvörös (burgundi) sáv adja, amely vizuálisan keretezi a teret, és egyfajta „kuckós” melegséget kölcsönöz a nagyobb belmagasság ellenére is.
Tipp: Bánj bátran a mennyezettel!
Sokan félnek a sötét színektől, de ahogy a nappaliban látjuk, a fal felső harmadának és a mennyezet szegélyének sötétebb színre (pl. mélyvörös, terrakotta) festése nem összenyomja, hanem „felöltözteti” a teret. Ez különösen nagy belmagasságnál előnyös, mert intimebbé teszi a szobát.
Álomvilág a hálószobában
A hálószoba nem csupán alvóhely, hanem egy vizuális utazás. A tekintetet azonnal vonzza az ágy mögötti fal: a díszlécekkel keretezett, szépia tónusú tájkép-tapéta olyan, mint egy hatalmas festmény, amely mélységet ad a szobának. A tűzött fejtámla puhasága és a modern, kristályos csillár ragyogása tökéletes kontrasztot alkot.
Tipp: Üvegezett válaszfalak a tágasabb térérzetért
Kis lakásokban a tömör falak helyett használj üvegezett tolóajtókat vagy térelválasztókat. Ez (ahogy a háló és nappali között látható) engedi áramlani a fényt, és nem vágja el vizuálisan a teret, mégis megvan a privát szféra lehetősége.
Tipp: Tapéta mint műalkotás
Nem kell az egész szobát tapétázni. A hálószobában látott megoldás, ahol a díszlécekkel „bekereteznek” egy különleges tapétát, olyan hatást kelt, mintha egy óriási festmény lenne a falon. Ez fókuszpontot teremt és luxus érzetet ad.
Fürdőszoba: a nyugalom szigete
A fürdőszoba a lakás színvilágának esszenciája. A zsályazöld, függőlegesen rakott csempék optikailag nyújtják a falakat, míg a mennyezet terrakotta árnyalata melegséget sugároz. A sárgaréz csaptelepek és kiegészítők itt is visszaköszönnek, egységes keretbe foglalva az egész lakás dizájnját.
további cikkek kis lakás berendezése témában | lakberendezés: Olya Markova | vizualizáció: Alexander Veselov






























