Az 1958-ban épült polgári házban található lakás átalakítása során a cél egy olyan élettér létrehozása volt, amely tiszteletben tartja az épület múltját és karakterét, ugyanakkor maradéktalanul kiszolgálja egy házaspár modern igényeit. Az eredmény egy átgondolt részletekkel berendezett, tárolóhelyekben gazdag otthon lett.
A projekt háttere és a koncepció
Az ingatlan új tulajdonosainak egyik fő kérése volt a lakberendező felé: a lakás enteriőrje stílusában igazodjon a ház külső, klasszikus megjelenéséhez. Ugyanakkor elengedhetetlen feltétel volt a kortárs kényelem megteremtése: a korszerű háztartási gépek elhelyezése és a tulajdonosok számára elegendő, nagy kapacitású tárolórendszerek kialakítása. A végeredmény a tradicionális polgári hangulat és a funkcionális modernizmus harmonikus ötvözete lett.

Az alaprajz és a térszervezés kihívásai
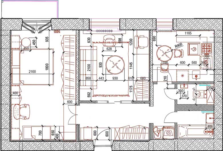
Mivel az eredeti alaprajz jelentős kötöttségekkel járt, radikális falmozgatásra nem nyílt lehetőség.
A térszervezésben csak finomhangolásra került sor: a korábbi hálószoba és az előszoba közötti válaszfalat kismértékben áthelyezték. Ezzel a beavatkozással sikerült növelni az előszoba alapterületét, helyet teremtve egy méretes beépített szekrénynek. A természetes fény jobb eloszlása érdekében a nappali szoba és a közlekedő közé egy nagy felületű, üvegezett tolóajtót építettek be, míg a hálószoba bejáratát a klasszikus eleganciát idéző, kétszárnyú nyílászáró keretezi.
A tervező a természetes anyagokat és a nyugodt, pasztell színpalettát részesítette előnyben. Az előszobában egy furnérozott „portál” fogja egységbe a bejárati ajtót, a mennyezetet és a falakat, amely vizuálisan egybeolvad a beépített bútorzattal. A közlekedő egyik fülkéjében, a fürdőszoba szomszédságában alakították ki a háztartási helyiséget: egy függöny mögött kapott helyet a mosógép, a vasalódeszka, a szárító és egyéb tisztítószerek, kihasználva a korábbi kamra helyét.
A konyhabútor U-alakú elrendezése lehetővé tette a tér maximális kihasználását. Az alsó és felső szekrénysor mellett egy elegáns vitrines elem is helyet kapott. A gépészetet (gázcsövek, mérőórák) szekrényajtók rejtik, a hűtőszekrényt és a mosogatógépet pedig beépítették a bútorfrontok mögé. Az étkezőasztal dió furnér felülete és a terrakotta kárpitozású faszékek melegséget visznek a térbe; a kárpit színe a függönyök szegélyén is visszaköszön.
Ez is érdekelhet: A klasszikus polgári hangulathoz 53 m² is elég volt: kétszobás lakás vintage eleganciával
A nappali fő falát egy teljes felületet betöltő, egyedi tervezésű szekrényrendszer foglalja el. A bútorzat multifunkcionális: a bejárat felőli oldalon ruhásszekrényként funkcionál, középen a televízió kapott helyet, alatta pedig mély fiókok találhatók. Az ablak melletti szekcióban egy dolgozósarok került kialakításra könyvespolcokkal. A helyiség nyugodt színharmóniáját a kanapé és a falikép élénkebb tónusai törik meg, fókuszpontot teremtve a térben.
Ez is érdekelhet: Szülők, ötéves kislány és két cica 53m2-en, háromszobás lakásban
A hálószoba tervezésénél a tárolókapacitás növelése volt az elsődleges szempont. Szinte minden falfelületet beépített szekrények borítanak, amelyeket úgy alakítottak ki, hogy a házaspár ruhatára mellett a szezonális holmik is elférjenek. Az ablak melletti szekrényelem rejti a légkondicionáló beltéri egységét is, így az nem zavarja az összképet. A hagyományos éjjeliszekrények helyett a szekrényfalba integrált fülkék, illetve az egyik oldalon egy fésülködőasztal biztosítanak lerakófelületet. Az ágy és a fotel mögötti falfülkéket faburkolat emeli ki.
A fürdőszoba kompakt méretei miatt itt csak a legszükségesebb berendezések fértek el: egy kisebb mosdószekrény a tároláshoz, valamint egy tükrös szekrény a mosdó felett, amely optikailag is tágítja a teret.
további cikkek 50 és 100n2 közötti lakások lakberendezése témában | lakberendezés: Tatyana Kazantseva | fotók: Evgeny Kulibaba































