Amikor egy háztartásban három hölgyre csupán egyetlen férfi jut, a poros vagy fáradt rózsaszín árnyalatai garantált sikert aratnak. Ebben a háromszobás lakásban a lakberendező úgy alkotott otthonos, rózsaszín tónusokra és lágy szürkékre épülő enteriőrt, hogy az új építésű ingatlanban részben megőrizte az építtető által átadott eredeti burkolatokat.
A megbízók – fiatal házaspár két lánygyermekkel (a nagyobbik tizenegy, a kisebbik kétéves) – alapvető kérése az volt, hogy a privát zónák mellett az otthonuk biztosítson kényelmes teret a közös családi estéknek is.

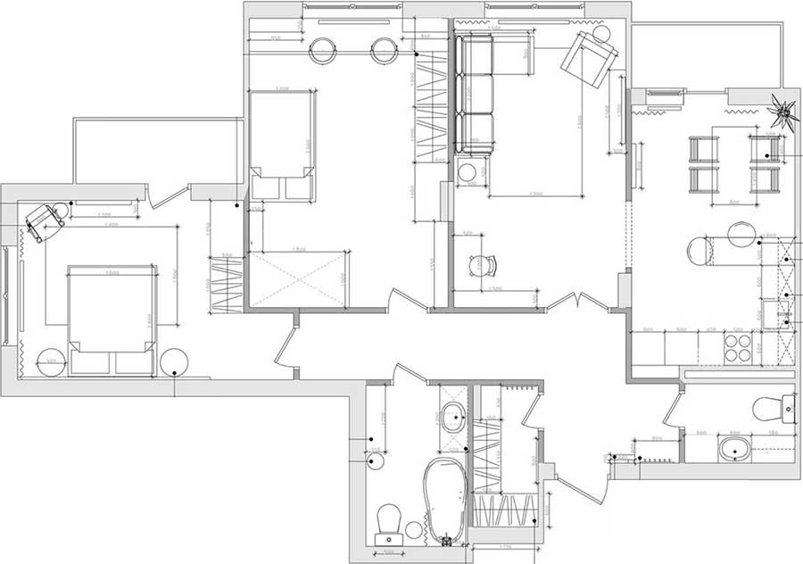
Térszervezés és alaprajzi adottságok
Jelentős alaprajzi módosításra nem volt szükség. Mivel a tulajdonosok a felújítás gyors megkezdését és a költséghatékonyságot tartották szem előtt, a falak többsége és az eredeti burkolatok egy része a helyén maradt.
„Csupán a konyha bejáratát helyeztük át annak érdekében, hogy tágasabbá tegyük a közösségi teret, és szorosabb kapcsolatot teremtsünk a nappali és a konyha funkciói között” – avat be a részletekbe a belsőépítész.
Színek és stílusjegyek
A tervezői koncepció a klasszikus és a modern stílusjegyek egyensúlyára törekedett:
- Klasszikus elemek: A beépített bútorok, a beltéri ajtók és a mennyezeti stukkók.
- Modern elemek: A mozgatható bútorok, a kárpitozott elemek és a világítástechnika.
A székek és fotelek bársony kárpitozása lágyítja a stílusok közötti átmenetet, míg a rózsaszín és a szürke párosítása meleg, otthonos atmoszférát teremt. Különleges látványelem az arany színű páraelszívó, amelyet a tervező egy korábbi projekt sikerére alapozva emelt át ebbe az enteriőrbe, mint univerzálisan kedvelt esztétikai megoldást.
Tárolás és funkcionalitás
Bár az alaprajz magában foglal egy gardrób-tároló helyiséget, minden szobában helyet kaptak további tárolórendszerek is.
- Hálószobák: A szülői hálóban és a gyerekszobában fehér, nyílóajtós szekrények kerültek beépítésre.
- Közösségi terek: A konyhában, a nappaliban és az előszobában egységes, mennyezetig érő szürke szekrényfrontokat alkalmaztak, amelyek vizuálisan összekapcsolják ezeket a zónákat.
Ez is érdekelhet: Egy nagymama otthonának új berendezése: menta, őszibarack és rózsaszín
Anyaghasználat és színharmónia
A lakás azon részein, ahol nem volt meglévő burkolat, a tervező szabad kezet kapott. A falakra egyszínű tapéták kerültek, melyek a fáradt rózsaszíntől a szürke árnyalatokig terjednek, kiegészülve márványhatású burkolatokkal és puha falpanelekkel.
A vizuális egység érdekében a lábazati léceket a fal színére festették, kerülve a kontrasztos keretezést. A mennyezeten klasszikus fehér díszléceket alkalmaztak, amelyek finoman ellensúlyozzák és összekötik a modern és klasszikus elemeket.
Ez is érdekelhet: Csokoládébarna és füstös rózsaszín, két fürdőszoba: család kényelmes otthona
A gyerekszoba kivételével az egész lakás színpalettája három fő tónusra épül: a fáradt rózsaszín komplex árnyalatára, a szürkére és a fehérre. Ezeket különböző púderes tónusok és arany kiegészítők teszik teljessé. A gyerekszoba ezzel szemben semleges alapot kapott, ahol a színes textíliák gondoskodnak a vidám hangulatról.
Meglévő elemek újragondolása
A koncepció része volt a meglévő adottságok kreatív integrálása. A fürdőszobában például az eredeti állapot szerinti fehér fali csempéket és a bézs-rózsaszín padlóburkolatot nem bontották el, inkább stíluselemmé emelték.
A tervező egy klasszikus, lábas káddal, arany tónusú szerelvényekkel és a szerelőnyílást eltakaró festménnyel egészítette ki a teret, aminek köszönhetően a helyiség könnyed, francia sikket kapott.
további cikkek 50 és 100n2 közötti lakások lakberendezése témában | lakberendezés: PLAN A







































