A projekt koncepciója egy egyedülálló fiatalember új építésű, egyszobás lakásának minden igényt kielégítő, modern otthonná alakítása volt. A nyitott, de határozottan kijelölt zónákra építő térszervezés és a letisztult design tágasságérzetet és kiemelkedő funkcionalitást teremtett a szerény alapterületen.
A 48 m²-en szükség volt: szeparált hálószobára, tágas nappalira, konyhára, dolgozósarokra, valamint bőséges tárolóhelyre, beleértve egy gardróbot és egy mosókonyhát is.

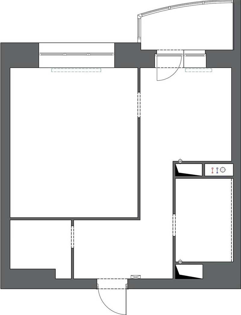
Az eredeti állapot és a térszervezés
Az egyszobás lakások örök dilemmája a választás kényszere a teljes értékű franciaágy és a kanapé, vagyis a háló és a nappali funkció között. Ebben a projektben azonban a tervezők elkerülték a kompromisszumokat. Mivel az ingatlan a legfelső emeleten található, az adottságok lehetővé tettek egy merészebb átalakítást: a vizesblokkokhoz igazodva a konyhai zónát áthelyezték a közlekedő területére.
Ez a döntés felszabadította az eredeti konyha helyiségét, ahol így egy kényelmes hálószobát alakíthattak ki, még a szigetelt lodzsát is bevonva a hasznos lakóterületbe. A felszabaduló nagy térben egy teljes értékű nappali kapott helyet. A koncepció kulcsa a “doboz a dobozban” elv elkerülése volt: a tereket nem falakkal, hanem funkcionális zónákkal és áttetsző elemekkel határolták el, megőrizve a lakás légiességét.
Előszoba és tárolás
A belépéskor azonnal érzékelhető a praktikumra való törekvés. A tárolókapacitás maximalizálása érdekében három beépített szekrény került az előszobába, amelyek közül kettő kifejezetten háztartási célokat szolgál, elrejtve a takarítóeszközöket és a gépészetet. A letisztult frontok és az egységes szürke falfestés elegánsan integrálja a bútorokat a térbe.
Konyha és étkező zóna
A közlekedőbe áthelyezett konyha sarok elrendezést kapott, amelyet egy praktikus bárpult egészít ki, elválasztva, mégis összekötve a teret a nappalival. A térérzet növelése és a költséghatékonyság érdekében a tervezők elhagyták a felső konyhaszekrények egy részét, helyettük nyitott polcokat alkalmaztak. Ez a megoldás nemcsak a legszükségesebb eszközök kézközelben tartását teszi lehetővé, de lazábbá, loftosabbá is teszi az összhatást.
Nappali
A lakás központi eleme a nappali, ahol a monokróm szürke falfelületek dominálnak. Ez a színhasználat nemcsak modern, de optikailag tágítja is a teret, miközben “levegősebbé” teszi az enteriőrt. A hideg szürke falak szigorúságát a meleg árnyalatú, markáns textúrájú szalagparketta oldja fel, otthonos kontrasztot teremtve. A berendezés a skandináv egyszerűség és az ipari stílus elegye: a bútorok egy része – a költséghatékonyság jegyében – az IKEA kínálatából származik, amelyet egyedi, loft stílusú fém lámpatestek és fekete-fehér poszterek egészítenek ki.
Ez is érdekelhet. Így lett kreatív, érdekes berendezés a fiatal férfi új, 48m2-es lakásában
Hálószoba és dolgozósarok
Az egykori konyha helyén kialakított hálószoba a lakás legkarakteresebb pontja. A nappalitól egy indusztriális jellegű, fekete keretes üvegfal választja el, amely biztosítja a fény áramlását, ugyanakkor intimitást is ad. A tervezők tudatosan elhagyták a hagyományos ajtókat: az ágy két oldalán szabad az átjárás.
A hálószobához csatolt lodzsát téliesítették, így itt egy teljes értékű, természetes fénnyel megvilágított dolgozósarok jött létre – elengedhetetlen funkció volt ez, a lakó home office igényeihez igazodva. A hálóhoz közvetlenül kapcsolódik egy tágas gardrób is, így a ruhák tárolása teljesen szeparált a közösségi tértől.
Fürdőszoba
A vizesblokk stílusában követi a lakás többi részét: a szürke árnyalatok és a minőségi szaniterek dominálnak, a funkcionalitást és a könnyű tisztíthatóságot helyezve előtérbe.
további cikkek kis lakás berendezése témában | lakberendezés: Design Studio 20:18































