Újratervezett alaprajz, teljes felújítás az összes burkolat, vezeték, nyílászáró cseréjével – 4 hónap alatt leheltek új életet a 45 m²-es lakásba. Ez idő alatt az ingatlant szó szerint az alapokig „kipucolták”, majd ésszerű költségkereten belül maradva új, barátságos életteret hoztak létre.

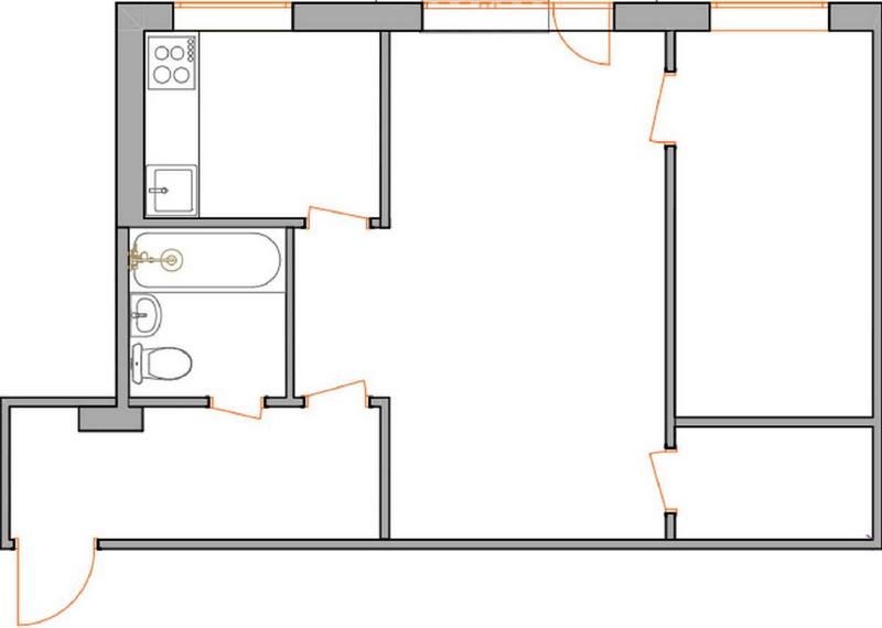
Ötemeletes tégla épületben vásárolta meg a tulajdonos a kétszobás lakást. Az ingatlan állapota siralmas volt: eldugult szennyvízelvezetők, rozsdás vízvezetékek, lyukak a padlóban és hulló vakolat jellemezték.
A felújítás során kicserélték az összes közművet, a víz- és fűtési csöveket, teljesen megújították az elektromos hálózatot és a mérőórákat, felbontották a padlót és új aljzatbetont öntöttek. Az összes válaszfalat lebontották és újjáépítették. A konyhát egybenyitották a nappalival, a fürdőszobát a folyosó rovására kibővítették, és kialakítottak benne egy mosókonyhát is.
Az előszobába falfülkét terveztek egy tágas szekrény számára, valamint a folyosó végén egy külön gardróbszobát is kialakítottak.
Az apró, mindössze 5 m²es konyhában sikerült rengeteg tárolóhelyet biztosítani, minden szükséges háztartási gépet elhelyezni, és kellően nagy munkafelületet kialakítani. A felső szekrényeket a bejárattal szembeni falon elhagyták, ez könnyedebbé teszi a kis helyiséget. Az étkezőt a nappali zónába, a nagy ablakhoz helyezték át.
Minden helyiségbe változatos világítást terveztek. Az alacsony belmagasság miatt az egész lakásban a spotlámpák jelentik a fő fényforrást, csak az étkező zónát emeli ki egy nagyméretű, szövet lámpaernyős függesztett lámpa.
Ez is érdekelhet: Modern átalakulás: Így lett világos, légies, japandi stílusú otthon 45m2-en
Minden helyiségben mosható festéket használtak a falakon, a kiemelt, hangsúlyos felületek kivételével. „A festett falak nemcsak szépek, hanem praktikusak is. A szennyeződések könnyen eltávolíthatók egy nedves ruhával, a komolyabb felületi sérülések pedig könnyen javíthatók” – mondja a tervező.
A főbb helyiségek világos, meleg tónusokat kaptak, így a tér könnyeddé és barátságossá vált. A nappali falait díszlécekkel dekorálták, amelyeket a TV falon díszes sarokelemekkel, máshol bronzszínű tükörbetétekkel egészítettek ki.
Ez is érdekelhet: Eredeti, a lakó személyiségét tükröző berendezés, érdekes, hangulatos tér 45m2-en
„A hálószobát a kék szín árnyalataival díszítettük– mintha egy drága, méretre szabott kabát színes bélése lenne. Az ágy fejtámlája mögé a fal színével harmonizáló, szövethatású tapétát ragasztottunk. A fal vízszintes, színekkel való tagolása vizuálisan tágítja a szoba egyébként nagyon keskeny terét, az ágy és a falakkal azonos színű függönyök pedig letisztulttá teszik a szobát, és nem terhelik túl a teret” – osztja meg a projekt alkotója.
Ez is érdekelhet: Modern berendezés egyedül élő nő lakásában, jól kihasznált 45m2
A fürdőszobában elhelyeztek egy mosdót, egy fali WC-t a fal mögé beépített tartály feletti tárolóval, egy kényelmes kádat, és ami a legfontosabb, egy külön mosóhelyiséget is kialakítottak a mosó- és szárítógép számára. Csempét csak a viznek kitett felületeken használtak, a többi falat lefestették.
Rétegzett világítás
A hangulatos esti atmoszféra megteremtéséhez a nappaliban a kanapé mögötti falat két elegáns, matt üvegből készült, kecses arany szárakon álló lámpa díszíti. A konyhában a felső szekrények nélküli falra két játékos gömblámpát választottak. A hálószobában az ágy fejtámlája mögé indirekt fényt adó fali karokat helyeztek el. A fürdőszobában és a folyosón lágy háttérvilágítással ellátott tükrök kaptak helyet.
további cikkek kis lakás berendezése témában | lakberendezés: Maria Tartashnik | fotók: Elena Mikhalina
 
	    	 
		     
            
















 
   
  









