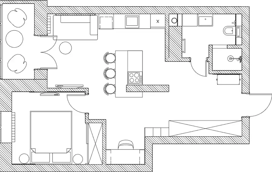
Egy 45 m²-es lakásban minden döntésnek tétje van: mennyi helyet vesz el a tárolás, hogyan működik együtt az egy térben kialakított konyha és nappali, sikerül-e elkerülni a zsúfoltság érzetet, mennyire biztosítja a zavartalan pihenést a háló. Ebben a fiatal férfinak berendezett enteriőrben a tervezés fókusza egyértelműen a fegyelmezett téralakításon, az egységes összképet adó dekoráción és az átgondolt, rétegzett világításon volt. A lakás nem látványos gesztusokkal akar hatni, hanem a beépített elemek pontosságával, a visszafogott, de változatos anyagpalettával és azzal, hogy szinte minden funkció a helyén van, mégsem válik zsúfolttá.
Az enteriőr egyik legnagyobb erénye, hogy következetesen bánik az anyagokkal. A világos fa, a meleg szürkék, a grafitszínű részletek, a fekete fémes elemek és a kőhatású felületek végig ugyanannak a gondolatnak a részei. Nincs benne fölösleges díszítés, de nem is válik hideggé vagy túl merevvé. A lakás karakterét inkább a felületek aránya, a beépített bútorok pontossága, néhány jól elhelyezett hangsúly és a rétegzett világítás adja. A térszervezés zsenialitását mutatja, hogy a remek konyha-nappali mellett van külön hálószoba és egy okosan elhelyezett dolgozósarok, a tárolás pedig bőséges.
Az ötletadó megoldások között megfigyelhető, hogy a tárolás ebben a projektben nem külön feladatként jelenik meg, hanem a belsőépítészet egyik fő szervezőeleme. Ugyanilyen tanulságos a központi teherhordó pillér kezelése, amelyből probléma helyett funkcionális csomópont lett. A nappali színkezelése, a háló visszafogottsága és a fürdő burkolat-párosítása mind azt mutatják, hogy kis alapterületen a tudatos szerkesztés sokkal többet ér, mint a túlzott dekorativitás.
Az első erős benyomást a közlekedő adja. A teljes falhosszon futó, mennyezetig épített tárolórendszer nem egyszerűen szekrénysor, inkább építészeti felületként működik. A világos tölgy tónusú frontok finom függőleges ritmusa nyújtja a teret, a síkba rendezett felületek pedig csendes, rendezett hátteret adnak. Különösen jó megoldás, hogy a zárt tárolást néhány nyitott polcos szekció töri meg: ettől a hosszú bútorfal nem válik monotonná, és kap egy visszafogottan személyes réteget is. A folyosó ebben a formában a lakás egyik legfontosabb funkcionális zónája lett.
A közösségi térben a konyha, az étkező és a nappali egyetlen, jól szervezett kompozícióként kapcsolódik össze. A középpontot részben a tartószerkezeti pillér köré szervezett pult adja, amely egyszerre működik térelválasztóként, étkezőfelületként és a konyha kiterjesztéseként. Ez a megoldás különösen hatékony kis alapterületen: nem kell külön étkezőasztalnak helyet keresni, mégis megmarad a nappali nyitottsága. A pillér burkolása és a pult tömege egységes, szoborszerű központi elemmé áll össze, amely köré a többi funkció természetesen szerveződik.
A konyhabútor anyaghasználata szintén tudatosan visszafogott. Az alsó és oldalsó elemek meleg faerezetes felületeihez finom szürkés felső szekrények társulnak, így a kompozíció nem lesz nehéz, mégis elég karakteres marad. A magas szekrénybe integrált gépek, a fogantyúmentes frontok és a következetes vonalvezetés mind azt erősítik, hogy a konyha nem különálló technikai blokk, hanem a nappali szerves része. Ebben a lakásméretben ez különösen fontos: a szem előtt lévő felületek rendezettsége alapvetően befolyásolja az egész enteriőr minőségét.
Látványos ellenpont a hengeres, rozsdamentes páraelszívó és a grafikus, hurkolt LED függeszték. A tér alapvetően szögletes, visszafogott karakterét ez a két elem oldja fel. Nem túlbeszélt designról van szó, inkább arról, hogy egy átgondoltan szerkesztett enteriőrben szükség van néhány puhább, organikusabb vonalra is. Ettől a konyha-étkező rész kevésbé lesz merev, és kap egy könnyen megjegyezhető vizuális fókuszt.
A nappaliban a legfontosabb színfolt a zöld kanapé. Jó arányérzékkel került be a térbe: nem uralja le az enteriőrt, de elég erős ahhoz, hogy a sok szürke, fa és fekete felület között életet vigyen a kompozícióba. A texturált szőnyeg, a kis méretű, fekete lerakóasztalok és a falnak támasztott absztrakt kép egy lazább réteget adnak a helyiségnek. A függönyök teljes belmagasságban futnak, ettől a homlokzati fal magasabbnak, a nappali pedig nyugodtabbnak érződik. Az indirekt világítás a mennyezet és a fal találkozásánál finoman mélyíti a teret, este pedig teljesen más hangulatot ad a helyiségnek, mint a mennyezeti spotok vagy a funkcionális világítás.
Érdekes részlet a nappali közelében kialakított kis munkasarok is. Nem külön dolgozószobáról van szó, inkább egy ügyesen leválasztott, csendesebb zónáról, amely pontosan annyi helyet kapott, amennyi a mindennapi használathoz szükséges. Ez a megoldás sokkal reálisabb és használhatóbb, mint amikor egy apró lakásban mindenáron önálló dolgozót próbálnak létrehozni. Itt a munkaállomás jelen van, de nem veszi át az uralmat a lakás felett.
A hálószoba tónusa tudatosan lágyabb, mint a közösségi téré. Itt már a textilek, a rétegzettség kerülnek előtérbe. A kárpitozott ágy, a szürke és bézses ágyneműk, a puha esésű textíliák, valamint a visszafogott mintázatú falpanel együttese nyugodt, zárt hangulatot ad. Jó döntés, hogy a hálóban nem próbáltak újabb hangsúlyos színeket vagy erős dekorációt bevezetni: a nappali karakteressége után itt kifejezetten jól működik a csillapított, halkabb vizuális környezet. A nagy ablak köré szervezett függönyözés és a minimális kiegészítők ugyanezt az irányt erősítik.
A fürdőszoba anyagkezelése külön figyelmet érdemel. A kőhatású, nagy formátumú burkolatok mellett megjelenő, természetes fa hatású kerámia felület az egész helyiségnek melegebb, összetettebb karaktert ad. A kerek tükör oldja a sok egyenes vonalat, a fali WC és a lebegő hatású mosdószekrény pedig vizuálisan is könnyítik a teret. A zuhanyzó kialakítása visszafogott, de kifejezetten erős: a falsíkok közé húzott zuhanyrészben a fa hatású burkolat és a mennyezeti peremvilágítás együtt sokkal kifinomultabb térélményt ad, mint amit a helyiség mérete önmagában ígérne. Jó példa arra, hogy egy kis fürdőszoba esetében nem a sokféle anyag, hanem az arányos kontraszt működik igazán.
további cikkek kis lakás berendezése témában | lakberendezés: @petra_kado_design | fotók: @vitalii.photo



































