A belsőépítészetben a színek bátor használata gyakran válik a tér karakterének meghatározójává. Ebben a kislakásban a tervező egy rendkívül izgalmas, „ízletes” palettát álmodott meg: az enteriőrben a barack, a csokoládé, az áfonyás pite és a ribizlifagylalt tónusai találkoznak. Ezt a gazdag színvilágot grafikus fekete elemekkel egyensúlyozták ki, és a fehér részletek gondoskodnak a tér tisztaságáról és szellősségéről.
A lakás tulajdonosai, egy fiatal és dinamikus pár, olyan otthonra vágytak, amely egyszerre életteli, színes és funkcionális. Az igények listáján a természetes fény maximalizálása mellett egy elkülönített hálószoba és egy jól felszerelt, nyitott konyha-nappali szerepelt. Különös hangsúlyt fektettek a tárolókapacitásra, így a tervezés során a lehető legtöbb zárt tároló kialakítására törekedtek, hogy megőrizzék a rendet és az átláthatóságot. A stílust a mid-century modern elemek és a kortárs megoldások ötvözete határozza meg.

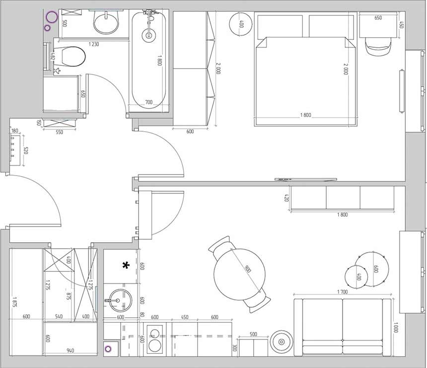
Az ingatlan átvételekor a terek már elérték a szerkezetkész állapotot, így a szakemberek az alaprajzi kiosztást változatlanul hagyták. A tér egyik legfőbb adottsága a bejárat melletti mélyedés, amely ideális helyet biztosított egy gardróbszoba kialakításához. A viszonylag kompakt, 39 négyzetméteres alapterület ellenére a hálószoba és a vizesblokk meglepően tágas maradt, ami kényelmes életteret biztosít a mindennapokhoz.
A lakásba belépve azonnal érvényesül a koncepció: a padlót elegáns, fényes felületű, fekete-fehér geometrikus kerámialapokkal burkolták. A falak és az ajtó visszafogott szürkéskék tónust kaptak, ami nyugodt hangulatot biztosít az előtérben. A bejárati ajtó körül egy íves festési technika jelenik meg, amely vizuálisan kijelöli a zónát, és egyben előrevetíti a hálószobában visszaköszönő formavilágot. A tárolásról a korábban említett gardróbfülke gondoskodik, tehermentesítve a közlekedőt a felesleges bútoroktól.
A közösségi tér fő stíluseszköze a „color-blocking” (színblokkolás), ahol határozott színekkel különítik el az egyes funkciókat. A konyhabútor alsó elemei mély, hamvas áfonyakék színt kaptak, míg a felső szekrények fehér frontjai vizuálisan beleolvadnak a falba, megakadályozva a zsúfoltság érzetét. Az étkező zónát egy sötétkék bútorcsoport határolja le, amely kontrasztos pontként szolgál a világosabb háttér előtt. A konyhai munkafelület megvilágítása diszkréten a felső elemekbe integrált, biztosítva a funkcionális fényt.
Ez is érdekelhet: Egyszerű alapokon: összeköltöző fiatal pár első otthonnak rendezte be a 39 m²-es lakást
A nappali zónájában a pasztellkék árnyalatok dominálnak: a szín a falról felfut a mennyezetre is, vizuálisan keretbe foglalva a pihenőhelyet. Ehhez illeszkedik a központi függeszték is, amely színben tökéletesen harmonizál a környezetével. A helyiség egyik legélénkebb eleme a terrakotta árnyalatú kanapé, amely vendégágyként is funkcionál. A kárpit színét a felette elhelyezett falikép tónusai ismétlik meg, megteremtve a dekorációs egységet. A fekete lábak és kiegészítők itt is megjelennek, grafikai keretet adva a puha színeknek.
A hálószobában a falakat horizontálisan osztották meg: az alsó rész meleg rózsaszín festést kapott, míg a felső harmad és a mennyezet tiszta fehér maradt – ez a megoldás az ajtón is folytatódik. Az ágy fejtámláját egyedi, íves textilpanelek alkotják, amelyek a fal teljes szélességében futnak, látványos textúrát és puhaságot adva a térnek. A kék frontú beépített szekrények mélységet adnak a szobának, miközben jelentős tárolóhelyet biztosítanak. Az éjjeli zónát fekete lerakóasztalok és felettük függesztett olvasólámpák teszik teljessé, melyek a modern stílus jegyeit erősítik.
A vizesblokk hű marad a lakás színkoncepciójához: a kék és a barack árnyalatait fehér csempével és geometrikus mintázatú padlóburkolattal kombinálták. A falak felső részét speciális, nedvességálló festékkel kezelték, míg a fürdőkád előlapját az oldalfalakkal azonos burkolattal látták el a folytonosság érdekében. A tárolásról egy egyedileg tervezett mosdópult gondoskodik, amely méretében és funkciójában is pontosan illeszkedik a rendelkezésre álló térbe.
további cikkek kis lakás berendezése témában | lakberendezés: Svetlana Khabieva | fotók: Olga Meleketseva

























