A lakberendező egy kis stúdiólakás kialakításán dolgozott, ahol a választott stílusnak – otthonos minimalizmus – és az aktuális lakberendezési trendekhez is tökéletesen passzoló karamell barna színvilágnak köszönhetően meghitt, meleg és egyedi hangulatú enteriőr jött létre.

Melegséget és otthonosságot sugárzó enteriőr megalkotására kérte fel a lakberendezőt ennek a kis, új építésű lakásnak a tulajdonosa. „A férfi régóta a vendéglátóiparban tevékenykedik, és egy olyan barátságos élettérre volt szüksége, ahová az ember újra és újra hazavágyik” – meséli a tervező.
Annak érdekében, hogy a kis előszoba nagyobbnak tűnjön, a tervező a bejárati zónát a fő helyiségtől elválasztó válaszfalat tükörrel burkolta. Ennek a megoldásnak köszönhetően az előszoba határai szó szerint feloldódnak a térben, így a lakásba lépve egy tágasabb helyiség benyomását keltik.
Ez is érdekelhet: Kertes ház 40m²-en tökéletes felszereltséggel, nagy terasszal? Íme egy stílusos és funkcionális kis otthon
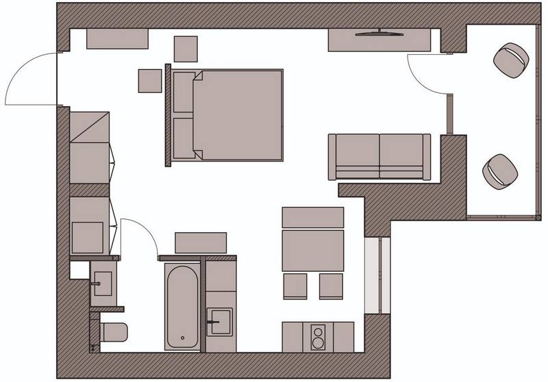
A kis alapterületen a lehető legnyitottabb térre törekedtek, ezért falakkal alig, inkább csak a bútorok elrendezésével tagolták a teret. Végül sikerült elhelyezni egy konyhát, nappali zónát kis kanapéval, kényelmes ágyat, valamint előszobát, amelyet egy gardróbszekrényekkel felszerelt folyosó követ (ahol nemcsak a ruhák, de a mosógép is el van rejtve).
Ez is érdekelhet: Térelválasztó fal mennyezetig érő tolóajtókkal, minimalista, letisztult berendezés 40m2-en
A lakberendező igyekezett a teret minél tágasabbnak mutatni, ezért az egész lakásban egységes színpalettát alkalmazott – ez egy hatásos tervezői fogás, amikor a mennyezetet és a falakat ugyanazzal a festékkel festik, még akkor is, ha, mint ebben az esetben, az árnyalat nem a legvilágosabb. A stílus, a dekoráció és a színvilág maximálisan a pihenést és a feltöltődést szolgálja. A színpaletta: karamell, szarvasgombás jegyekkel.
további cikkek kis lakás berendezése témában | lakberendezés: Ekaterina Plotnikova | fotók: Evgeny Ryazhev





















