Az enteriőrt a lakberendező a szülők megbízásából egy egyetemista lánynak tervezte, aki tanulmányai miatt költözött a városi lakásba. A szülők egy olyan modern életteret képzeltek el, amelynek atmoszférája a lakó ízlésének változásával könnyedén alakítható. Bár a tervezési folyamat kezdetén a megrendelők ihletforrásként személytelen enteriőröket mutattak, a végeredményt karakteres, eklektikus részletek teszik egyedivé.

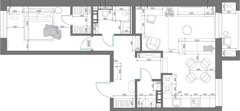
A megbízók kérésére a tervező kerülte a nagyszabású átalakításokat, így a 61 m²-es lakás eredeti alaprajzi elrendezése szinte változatlan maradt.
A térérzet növelése érdekében a tervező több kifinomult megoldást is alkalmazott. Ilyen például a falakon megjelenő, díszlécekből formált geometrikus ornamentika, amely optikailag magasítja a mennyezetet. A koncepció egységességét erősítve a konyhabútor frontjain a domború panelek ritmikus kazettás tagolásban folytatódnak. Az előszobában nagyméretű tükörfelületek borítják a falakat, megsokszorozva a beáramló természetes fényt.
Ez is érdekelhet: Szülei otthonát tervezte át a lakberendező stílusos és ízléses részletekkel, 61m2
A funkcionális igényeknek megfelelően a vendégmosdó helyére praktikus mosókonyha került, a terek vizuális tagolását pedig a bútorozás és az ajtónyílások átgondolt kialakítása biztosítja. A térszervezés a tulajdonos életvitelét tükrözi: létrejött egy kényelmes, vendégfogadásra is ideális közösségi zóna, mely magában foglalja a konyhát, az étkezőt és egy látványos ülőgarnitúrát.
Ez is érdekelhet: Anya és lánya otthona – lágy kéktől a pisztáciáig, meleg pasztellszínek 61m2-en
Az étkezőasztal fölött a függeszték az enteriőr egyik legkarakteresebb eleme: a lapos ernyő cizellált sárgaréz, míg a gömb búra a „tört üveg” illúzióját kelti. A tanulásnak egy funkcionális dolgozósarok ad teret, íróasztallal és a hozzá tartozó tárolórendszerrel.
A színhasználat visszafogott és harmonikus: a konyha-nappali térben főleg világosszürke tónusokat használt a tervező, a hálószoba bejáratát egy púderes menta árnyalatú portál keretezi. Egy mélyebb kék árnyalatot bútorokkal vitt a terekbe, a folyosó egy részét pedig kellemes tejeskávé színbe öltöztette. A hűvösebb árnyalatokat a fa felületek és a padlóburkolat meleg, krémes tónusai ellenpontozzák, otthonos és harmonikus légkört teremtve.
további cikkek 50 és 100n2 közötti lakások lakberendezése témában | lakberendezés: Yulia Babintseva | fotók: Ivan Sorokin























