A lakás tulajdonosa egy szellős, semleges, mégis otthonos enteriőr kialakítására kért fel a lakberendezőt. A koncepció alapjául letisztult, minimalista, karakteres részletektől és színektől mentes terek szolgáltak, lehetővé téve, hogy a lakó a saját ízlése szerint formálhassa kiegészítőkkel az otthon hangulatát.

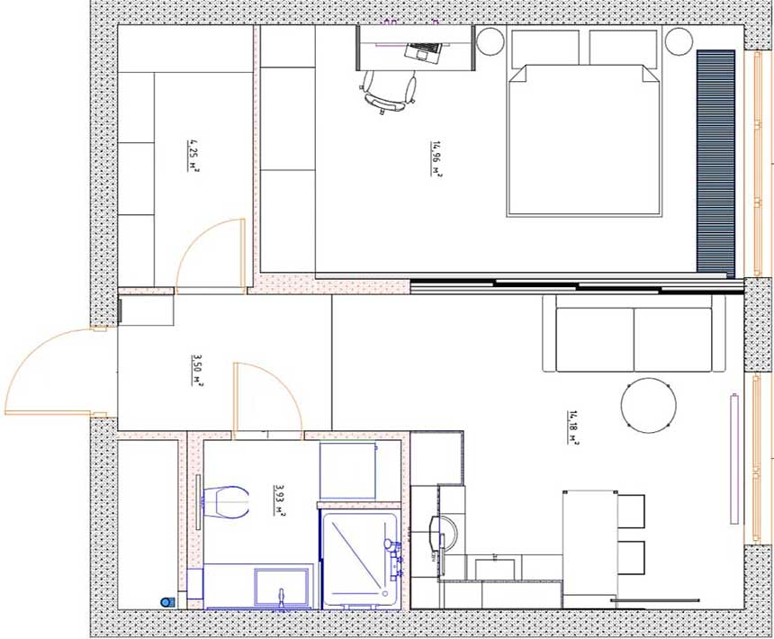
A megbízó kérése egy olyan egyedi megoldás volt, amely modern, nyitott életteret hoz létre anélkül, hogy a funkcionális zónák határozott elválasztása csorbát szenvedne. A tervező a helyiségek közötti falak helyett egy grafikus fekete keretbe foglalt üveg toló-válaszfalat javasolt. Ennek segítségével a privát szféra igény szerint leválasztható a konyha-nappali közösségi terétől. Nyitott állapotban a viszonylag kis tér látványosan megnövekszik és egységes egésznek hat.
Ezt a hatást az egységes, matt fehér falfelületek is erősítik. A koncepció szerint semmi sem vonhatja el a figyelmet a fő bútorokról és a kellemes, szürke tónusú textíliákról. A sarok elrendezésnek köszönhetően a konyha kompakt maradt; mellette kényelmesen elfért egy bárpult tömörfa bárszékekkel és egy falra szerelt televízióval. A monokróm színvilágot a konyhai hátfal texturált, terrazzo mintás greslapja élénkíti.
Ez is érdekelhet: Így lett fiatalos és élhető a keskeny egyszobás lakás, 30m²
A tér fókuszpontját egy íves, bézs kanapé és egy fekete dohányzóasztal kettőse adja. A visszafogott palettát a dekoráció és a műalkotások narancssárga színfoltjai oldják. A tárolásról beépített szekrények és egy tágas gardrób gondoskodnak. A világítási koncepció a nap bármely szakában kényelmes használatot biztosít az állítható dőlésszögű falikaroknak köszönhetően – ezek geometrikus formavilágát két falpanel erősíti.
további cikkek kis lakás berendezése témában | lakberendezés: Nina Abaseeva | fotók: Alexander Gavrilov





















