.A tervező ebben a pici lakásban minden négyzetcentimétert kihasznált, hogy egy olyan teljes értékű otthont hozzon létre, ahol időnként még a tulajdonos gyermeke is kényelmesen alhat. A visszafogott kék-zöld-szürke paletta, a fa elemek és az egyszerű dekoráció otthonossá teszik a teret, a berendezés a helykihasználás érdekében részben egyedi asztalosmunkával (konyhabútor, beépített szekrények, dolgozósarok), részben pedig az IKEA áruházból származó termékekkel valósult meg.

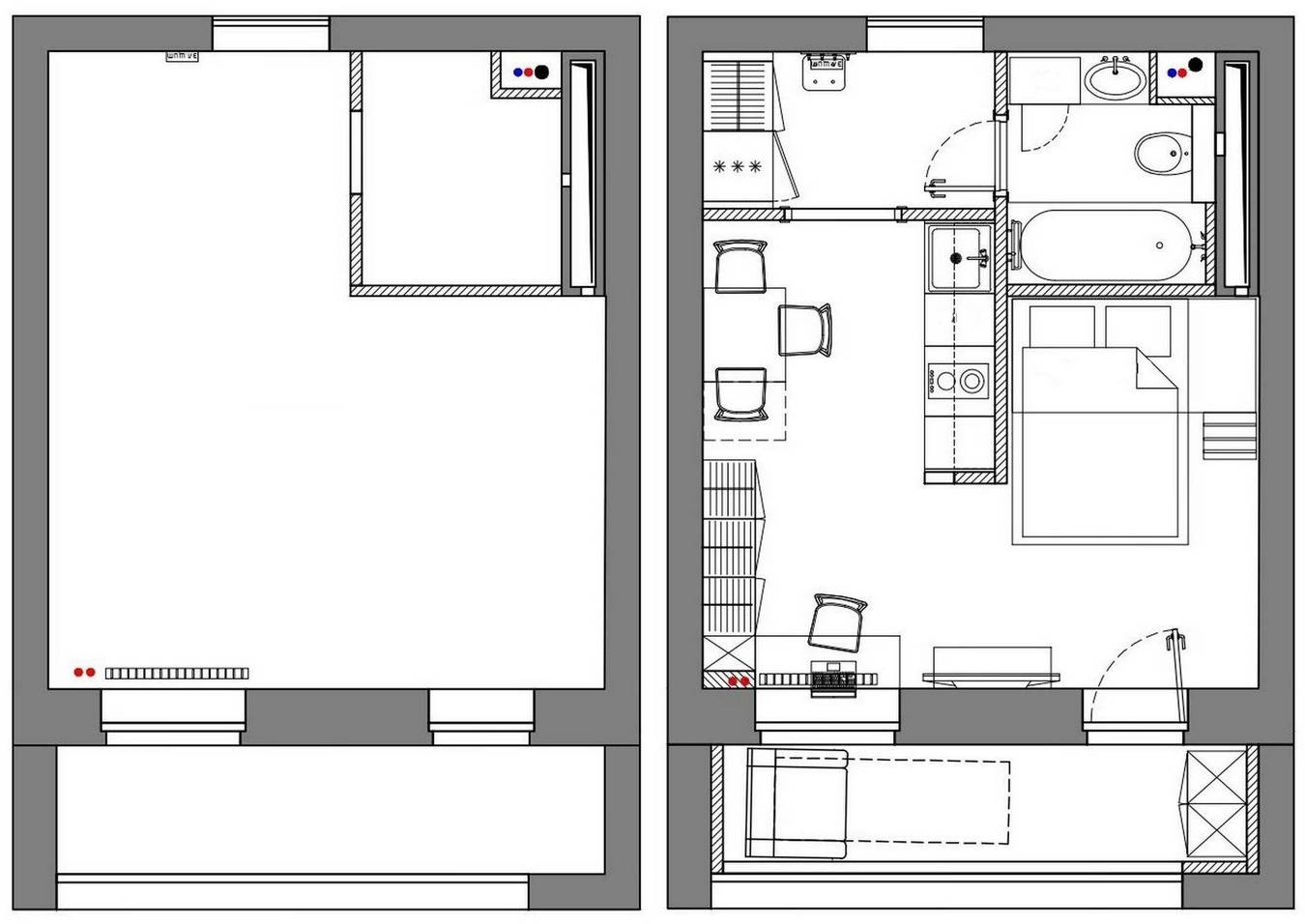
A térszervezés logikája szerint a konyha és az étkező funkció a bejárat és a pici előszoba utáni közlekedő zónába került. Ezt a területet követi a tárolóbútorok sora, amely egy ablak előtti dolgozósarokba vezet át. A televíziókészülék az ággyal szemben, az íróasztal melletti falfelületre került. A franciaágy fölötti kis galéria oldja meg a vendégágy kérdését, ez a bútor extra polcokat is rejt, a fürdőben pedig kád és mosógép is elfért anélkül, hogy a helyiség túlzottan zsúfolttá vált volna.
Az előszoba után rögtön a konyha és étkező következnek – a kompakt L-alakú konyhablokk (szürke alsó és fehér felső frontokkal, fehér pulttal) alatt beépített mosogatógép és sütő kapott helyet, a finoman mintás csempe hátfal pedig élénkíti a teret. Mellette a kis fehér étkezőasztal négy székkel (sárga párnákkal) nemcsak étkezésre szolgál, hanem extra munkafelületet ad.
Az előszobai szekrény önmagában nem biztosítana elegendő tárolóhelyet, ezért az étkező után,, a dolgozósarok mellett még egy, mennyezetig beépített szekrényt is elhelyeztek.
Az anyaghasználat a lakás egészében egységes. A falakon festett felületek és dekortégla váltakoznak, míg a padlóburkolat vinyl és kőporcelán. A színpaletta visszafogott: a szürke, fehér, bézs és fa árnyalatok képezik az alapot, amelyeket kék és zöld tónusok egészítenek ki.
A lakótérből nyílik a beépített erkély, amely egy elkülönült pihenősarokként és kiegészítő tárolóhelyként funkcionál. A háló zónában a dupla ágy fölé egy kompakt galériát terveztek, amely a vendégágy funkcióját tölti be. A galéria szerkezete egyben nyitott polcrendszerként funkcionál
A kisméretű fürdőszobában a tervezés lehetővé tette a fürdőkád beépítését. A helytakarékosság érdekében a mosógép a mosdópult alá került. A falburkolat nem ér a mennyezetig; a csempézett rész feletti falfelületeket nyugodt zöld árnyalatúra festették, ami a költséghatékonyság mellett a helyiség karakterét is meghatározza.
további cikkek kis lakás berendezése témában | lakberendezés: Cubiq Studio

























