Kis alapterületű lakásoknál a praktikus térkihasználás és letisztult formavilág különösen fontos szerepet kap. A 28 négyzetméteres stúdiólakás költséghatékony átalakítása során a maximális térérzet és funkcionalitás megteremtéséhez skandináv stílust választott a tervező.

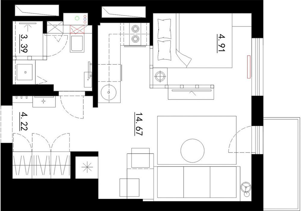
A lakberendezési projekt célkitűzései:
- Franciaágy, 140×200 cm fekvőfelülettel,
- Kinyitható kanapé vendégágy funkcióval,
- Teljesen felszerelt konyhabútor, minden szükséges konyhagéppel, praktikus tárolási lehetőségekkel és elegendő munkafelülettel,
- Bővíthető étkezőasztal, amely alapállapotában 2 személy számára ideális, de szükség esetén 6 személyesre bővíthető,
- Beépített szekrény a bejáratnál, és egy kisebb különálló szekrény az ágy környezetében,
- Tárolórendszer a fürdőszobában, ahol kényelmesen elférnek a tisztítószerek és takarítóeszközök
A skandináv stílus az egyszerű, világos színek, a minimális dekoráció és a praktikus elrendezés révén különösen előnyös választás kis alapterületű lakások számára. A minimalista szemlélet és az alacsonyabb áron elérhető, ám esztétikus bútorok használata ideális megoldást jelenthet azok számára, akik költséghatékonyan szeretnének kellemes, áttekinthető és kényelmes lakókörnyezetet kialakítani.
Nemcsak az alapvetően fehér színvilág segíti a természetes fény maximális kihasználását, de a hálószoba leválasztásánál is gondoskodtak arról, hogy könnyed maradjon a tér: a fal felső része üvegezett, és ennek köszönhetően a kis konyhának kialakított fülke is világos maradt.
Tárolás szempontjából is átgondolt megoldások születtek. A bejárati résznél beépített szekrények foglalnak el egy teljes falat, az ágy környezetében pedig egy kisebb különálló szekrény biztosítja a személyes holmik praktikus elhelyezését. A fürdőszobában a WC mögötti falban kialakított tárolók lehetővé teszi a tisztítószerek és takarítóeszközök diszkrét és rendszerezett tárolását.
további cikkek kis lakás berendezése témában | lakberendezés: Projektion Építésziroda



























