A kis lakás tereinek kialakítása során a tervezői vízió a klasszikus polgári elegancia és a könnyed párizsi báj ötvözése volt: fehér falak díszlécekkel, fekete-fehér fotók, grafikus mintázatú burkolatok, fekete szerelvények és arany kiegészítők határozzák meg az enteriőrt. Ez a kombináció teszi a szerény alapterületű életteret világosabbá, tágasabbá és hangulatosabbá.
Bár az eredeti alaprajz kihívásokat is tartogatott – a helyiségek szabálytalan formájúak, kiugró sarkokkal -, a végeredmény egy letisztult, minden igényt kielégítő otthon lett.

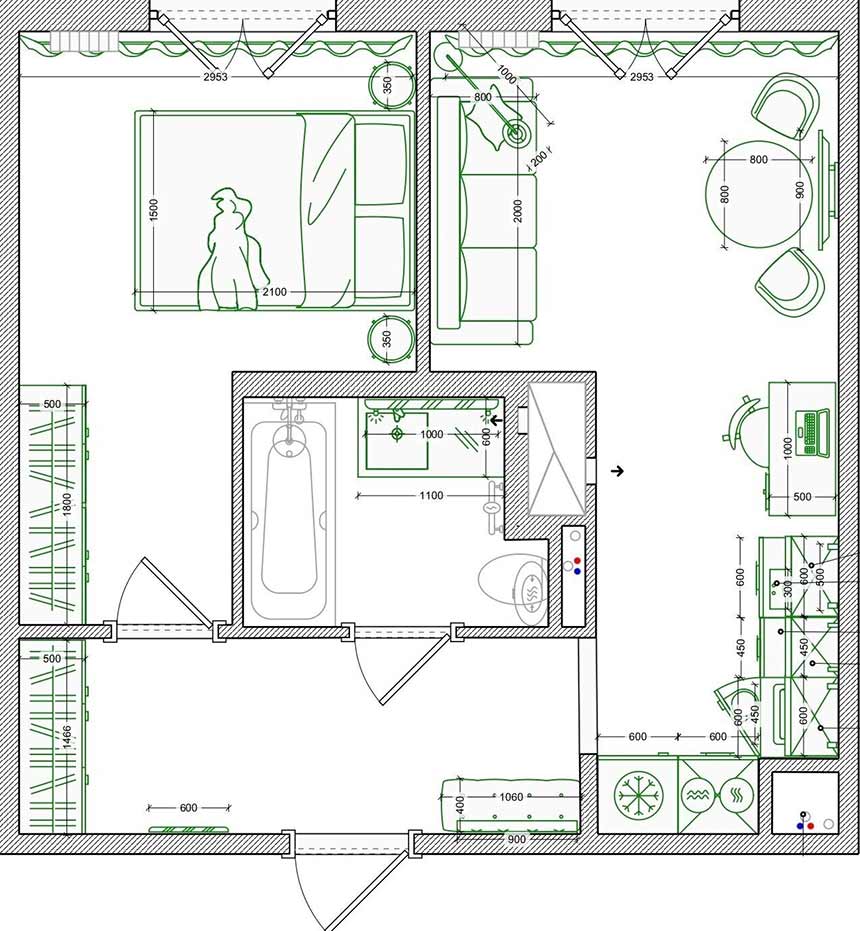
Az ingatlan adatai:
- Alapterület: 35 m²
- Helyiségek: Amerikai konyhás nappali, hálószoba, fürdőszoba
- Stílus: Modern klasszikus, “párizsi sikk”
- Lakó: Egyedülálló fiatal hölgy
Elleshető ötletek stílusos és költséghatékony megoldásokkal:
Egységes fehér szín: a harmónia kulcsa
A lakás teljes területén szándékosan ugyanazt a fehér árnyalatot alkalmazták a falakon. Mivel a geometria meglehetősen bonyolult, és a szobák szabálytalan formájúak, ezeket az építészeti sajátosságokat a fehér szín tisztaságával sikerült „feloldani”. Ez a megoldás egységességet és világosságot kölcsönöz a térnek, a falakon futó díszlécek pedig segítenek kijelölni a funkciókat: a nappalit, az étkezőt és a dolgozósarkot.
Funkcionális zónák elválasztása
A nappaliban dedikált helyet kapott az otthoni iroda. A tervező úgy helyezte el az íróasztalt, hogy a szükséges csatlakozók – laptop töltés, asztali lámpa – kéznél legyenek. Ezzel a megoldással a munkaállomás és a szomszédos étkező funkciója nem keveredik, ami különösen fontos, ha otthonról dolgozol, és szeretnéd a munkát és a pihenést elválasztani egymástól.
Maximális tárolás, minimális vizuális zaj
A konyhai zónában egy falvastagítással létrehozott beugróba két nagyméretű, mennyezetig érő szekrényelem került. Ezek rejtik a beépített hűtőszekrényt, valamint a sütőt és a mikrohullámú sütőt. Ezzel a megoldással nemcsak a tárolókapacitás lett maximális, de a konyha megjelenése is rendezett és esztétikus maradt, elkerülve a kis terekre jellemző zsúfoltságot.

Játék a kontrasztokkal
A lakás színpalettája az akromatikus színekre – fehér, fekete és szürke – épül, melyeket az arany részletek tesznek ünnepélyessé. A fekete-fehér geometrikus padlóburkolat, a fekete bútorlábak és képkeretek karaktert adnak a térnek, míg a puha textíliák és a fehér falak lágyságot sugároznak. Ez a kontraszt teszi az enteriőrt modernné, mégis időtállóvá.

Kompakt háló, budoár hangulatban
A hálószoba méretei szerények, de okos tervezéssel minden elfért. A 140 cm széles franciaágy mellett két miniatűr éjjeliszekrény kapott helyet, így az ágy mindkét oldalról megközelíthető. A tárolást a hálóhoz vezető, folyosószerű előtérben oldották meg: itt kapott helyet egy retró hangulatú, mart előlapos gardróbszekrény, amely stílusában tökéletesen illeszkedik a lakás karakteréhez.
Optikai térnövelés dekorációval
A hálószoba fókuszpontja a franciaablak, amelyet sötétítő függönyök kereteznek. A térérzet növelése érdekében az ágyvég feletti falra egy nagyméretű fotót helyeztek el, amely egy nyitott spalettás, kovácsoltvas rácsos párizsi ablakot ábrázol. Ez a vizuális trükk megnyitja a teret, és erősíti a lakás francia stílusát.
Költséghatékony megoldások a fürdőszobában
A fürdőszobában a falak csak részben kaptak nagyméretű greslap burkolatot, a többi felületet speciális, vízálló festékkel kezelték. Ez a megoldás jelentősen csökkenti a burkolási költségeket, miközben a helyiség kevésbé tűnik steril „vizesblokknak”, sokkal inkább szobaszerű hatást kelt.
további cikkek kis lakás berendezése témában | lakberendezés: | fotók:




























