A tervező egy fiatal hölgy lakását rendezte be. Nyitott alaprajzban egyeztek meg, ugyanakkor a hálót egy elhúzható üveg válaszfallal szeparálták el a közösségi tértől. A végeredmény egy kifejezetten funkcionális, modern és fiatalos hangulatú otthon lett.
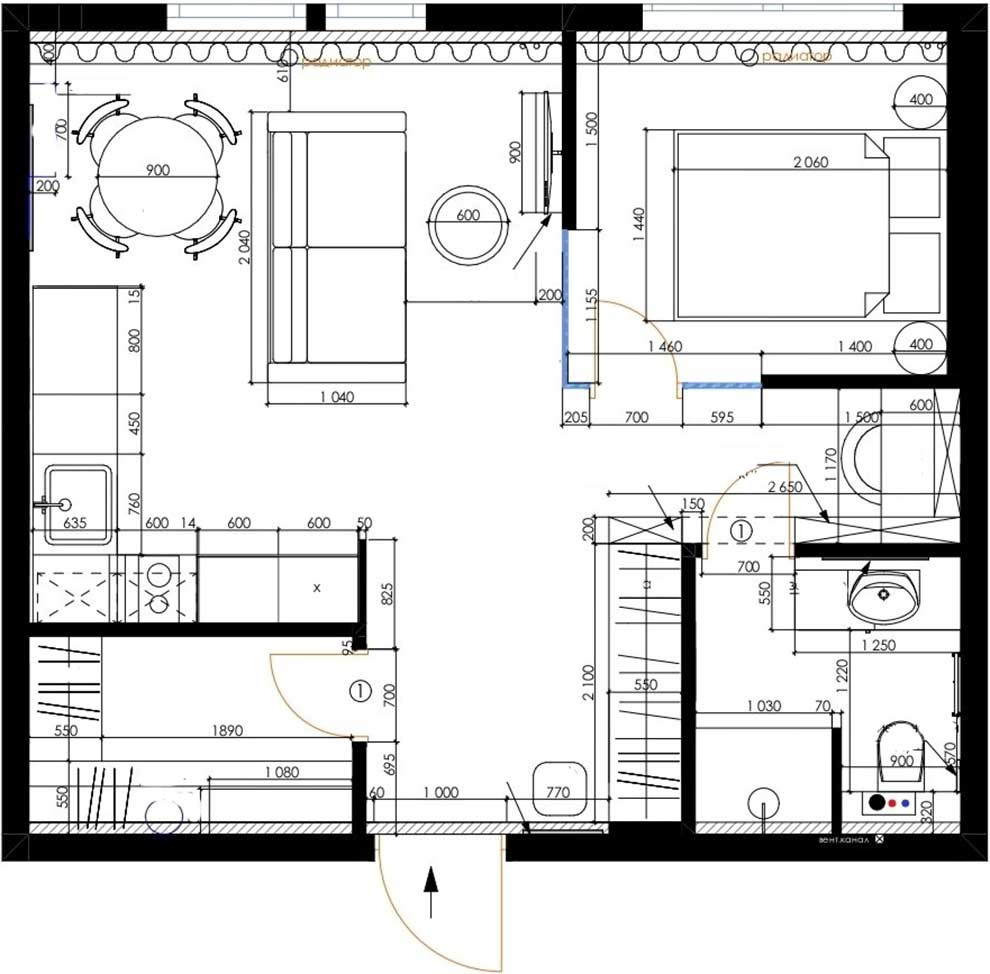
A mindössze 32 négyzetméter alapterületű kislakásban a tervezés során az elsődleges cél egy olyan multifunkcionális tér létrehozása volt, amely magában foglalja az egyterű konyha-nappalit, egy dolgozósarkot, a gardróbot, valamint egy szeparált hálószobát is. A koncepcióhoz élénk, telített színeket választottak, hogy az enteriőr divatos és modern hangulatot árasszon.

Az ingatlan az előszobától az étkezőn át egészen a dolgozósarokig egyetlen összefüggő teret alkot. A lakásban mindössze egyetlen válaszfal található, amely a hálószoba leválasztását szolgálja. Ez az elrendezés lehetővé tette a tágas térérzet és a szellősség megőrzését, ugyanakkor biztosítja a privát szférát, amikor arra szükség van.
A tárolórendszer a lakás méretéhez képest kifejezetten bőséges: a bejáratnál elhelyezett szekrények egyedi asztalosmunkával készültek, és fokozatosan mennek át nyitott könyvespolcba a dolgozósarok falán. Bár ez a megoldás növelte a költségvetést, lehetővé tette a bútorok harmonikus integrálását az enteriőrbe. Egy külön helyiségben helyet kapott egy kisebb, nyitott polcrendszerrel felszerelt gardrób is.

A konyhabútorok standard méretezéssel készültek. A magas kamraszekrényeket és a felső elemeket az ablakkal szemközti fal mentén helyezték el, így azok a nappali és a háló felől nézve kevésbé dominánsak, vizuálisan nem nyomják össze a teret. A munkapult felületének növelése érdekében egy kétzónás főzőlapot építettek be, amely elegendő helyet hagy az előkészületekhez.

A berendezés során néhány kiegészítő, például az újrahasznosított műanyagból készült függőlámpa és a nappaliban található nagyméretű, kerek tükör, az IKEA kínálatából került kiválasztásra – utóbbi remek eszköz a tér optikai növelésére.
A hálószoba falai mély kék árnyalatot kaptak. A helyiség a sötétebb tónus ellenére sem hat komornak, köszönhetően az ablakokon beáramló bőséges természetes fénynek és az átlátszó térelválasztó elemeknek.
A fürdőszoba alapterülete nem éri el a négy négyzetmétert, mégis sikerült minden szükséges funkciót elhelyezni: egy épített zuhanyzót, mosdókagylót, amely alatt a mosógép kapott helyet, valamint egy beépített tartályos WC-t, felette tárolószekrénnyel. A burkolatok tekintetében a tervező a terrazzo mintázatú csempét, a kőporcelánt és a festett falfelületeket kombinálta.
további cikkek kis lakás berendezése témában | lakberendezés: DENISH DESIGN, Christina Selyutina | fotók: Katya Geits



























