A 2000-es évek elején épült házban található ingatlan kiváló adottságokkal rendelkezik: bár a város nyüzsgő központjában helyezkedik el, ablakai egy csendes, zöld belső udvarra néznek, így az enteriőrben teljes a nyugalom. Ez a természetközeli hangulat határozta meg a felújítás koncepcióját is, amelynek célja egy fiatal egyetemista számára ideális, egyszerre funkcionális és elegáns élettér kialakítása volt.

Funkcionális zónák és vizuális egység
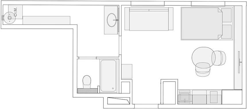
A Párizs 7. kerületében található kis stúdiólakásban a tervezési koncepció központi eleme a tér vizuális tágítása volt. A lakás minden négyzetcentimétere tudatos mérlegelés eredménye, ahol a cél a “kis tér, nagy lehetőségek” elvének érvényesítése. A zónák elosztása logikus és folytonos: a konyha összhangban van az étkezővel, amely finom átmenetet képez a nappali és a háló zónák felé.
A hagyományos, steril fehér falak helyett a tervező a melegebb, otthonosabb megoldások mellett döntött. A falakat lágy textúrájú, szövet hatású tapéta borítja, amely tapinthatóvá teszi az otthonosságot. A színpalettát a fa természetes árnyalatai uralják, amelyeket a mustársárga és az olívazöld élettel teli, mégis természetes akcentusai egészítenek ki. Ez a színharmónia, kiegészülve a fa padlóburkolattal és a fa falpanelekkel, egységes keretbe foglalja a különböző funkciókat.
Konyha és tárolás: a láthatatlan technológia
A kis alapterületű lakások egyik legnagyobb kihívása a megfelelő mennyiségű tárolóhely kialakítása anélkül, hogy a bútorok “agyonnyomnák” a teret. Ebben a projektben a konyhabútor mennyezetig érő beépítése biztosítja a maximális helykihasználást. A kompakt méret ellenére a konyha felszereltsége hiánytalan: a beépített sütő, a mikrohullámú sütő, a főzőlap, az elszívó és a mosogatógép is helyet kapott a frontok mögött.
Otthonosság és karakter
A lakás karaktere a részletekben rejlik. A nappali-háló térben elhelyezett kanapé nemcsak vendégágyként funkcionál, de erőteljes mustársárga színével fókuszpontot is kijelöl. A textúrák játékát egy hangsúlyos, állatmintás gyapjúszőnyeg teszi teljessé, amely merész kontrasztot alkot a letisztult bútorzattal.
A végeredmény egy olyan enteriőr, amely messze túlmutat a szokványos diáklakások színvonalán. A prémium anyaghasználat, a méretre készült asztalosmunkák és a gondos ergonómiai tervezés révén a 29 négyzetméter tágasabbnak, levegősebbnek hat, bizonyítva, hogy a stílus és a komfort nem négyzetméterek kérdése.
A fürdőszoba újraértelmezése
Az alaprajzi adottságok és a párizsi klíma sajátosságai – különösen a páratartalom – egyedi megoldást szültek a vizesblokk kialakításánál. A szűkös alapterület miatt a fürdőszoba funkcióit kettéválasztották: a zuhanyzó és a WC egy zárt helyiségbe került, míg a mosdókagyló a közlekedő zónában kapott helyet.
Ez a megosztás nemcsak helytakarékos, de a napi rutin szempontjából is praktikus, elkerülve a nyirkos érzetet a tisztálkodás során. A komfortérzetet tovább növeli a vizesblokkban kialakított padlófűtés. A lakótér meleg fa burkolatával ellentétben itt, valamint a gardrób zónájában, egy organikus hatású, kőmintázatú burkolat került beépítésre, amely vizuálisan is elkülöníti ezeket a kiszolgáló helyiségeket.
A térszervezés egyik legleleményesebb megoldása a gardrób és a háztartási helyiség kialakítása. A ruhák tárolását és a mosógépet egy keskenyebb technikai zónában, egy sűrű szövésű függöny mögött rejtették el. Itt egy moduláris polcrendszer biztosítja, hogy a tulajdonos teljes ruhatára átláthatóan elférjen, mentesítve ezzel a lakóteret a nagy szekrények látványától.
további cikkek kis lakás berendezése témában | lakberendezés: Ekaterina Volodina @katryndesign | fotók: Christina Nikishina























