Kis lakásban nagy kihívás a megfelelő térszervezés – az összes funkcionális zóna kialakítása anélkül, hogy a végeredmény zsúfoltnak tűnjön. A képeken látható egyszobás lakás tervezésekor a szempont egy kényelmes, minden funkciót biztosító otthon kialakítása volt, modern és loft stíluselemekkel, tágas közösségi térrel és privát háló zónával.
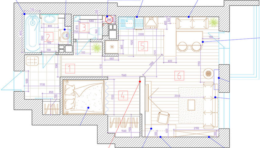
Alaprajz:

A háló ugyan kicsi, de elhelyezésének, egy térelválasztó szepet betöltő, alacsony téglafalnak köszönhetően teljesen elkülönül a közösségi tértől – ami cserébe kényelmesen tágas, konyhával, étkezővel, nappalival, dolgozósarokkal. Az alacsony fal nem csak a zónák elválasztásához hasznos megoldás, de a nappali felé eső felületére a TV is felszerelhető. A berendezés modern, a tégla és fa felületek, sötét kőburkolatok természetes textúrája nagyon hangulatossá teszi az összképet.
további cikkek kis lakás berendezése témában | lakberendezés: Studio Malgrim
























