A tulajdonosok felnőtt gyermekei már külön élnek, a kétszobás, 70 m2-es így már csak a saját igényeikre és kényelmükre koncentrálva rendezhették be. A megrendelők egy kényelmes és modern enteriőrre vágytak, amely ideális helyszín a családdal és barátokkal való közös időtöltésre, továbbá kiemelt szempont volt a tárolórendszerek diszkrét és optimális kialakítása.

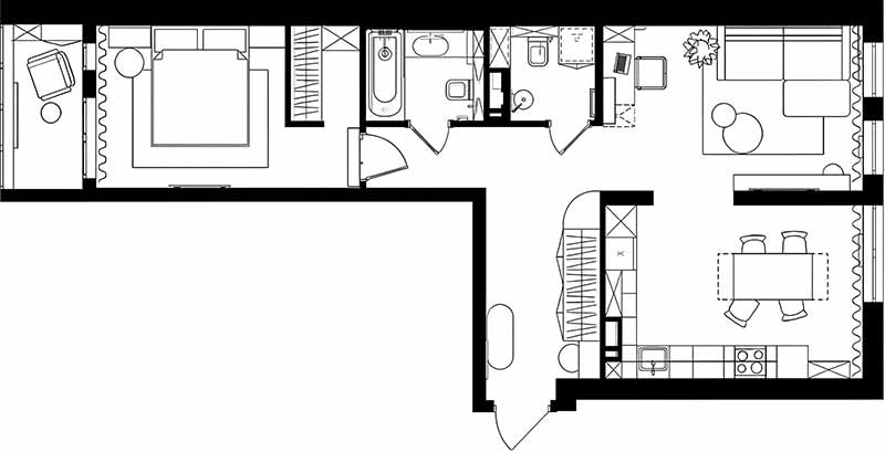
Az új lakóparkban vásárolt ingatlan egy szerkezetkész, burkolatok nélküli, üres betonkocka volt, csupán a válaszfalak álltak. A lakás alapvetően világos: napközben a konyhát és a nappalit éri a napfény, este pedig a lemenő nap sugarai töltik meg a hálószobát. Az eredeti alaprajzon a konyha bejárata az előszobából nyílt. Annak érdekében, hogy a bejáratnál egy méretes gardróbszekrényt lehessen elhelyezni, ezt az ajtónyílást befalazták, az új bejáratot pedig a nappali felől nyitották meg. A hálószoba természetes megvilágításának javítása érdekében egy további bevilágító ablakot vágtak a lodzsa felé.
Az előtér otthonosságát a homokszínű falfestés alapozza meg. A bejárati zóna padlóját greslappal burkolták, míg a bejárati ajtó melletti falat kontrasztot képezve fekete dekorvakolattal emelték ki.
Egy tölgyfurnér borítású, íves szekrény vizuálisan a nappali felé tereli a látogatót. A bútor kivitelezése komoly kihívást jelentett: a tervező elmondása szerint hétszer kellett áttervezni, mire elkészült. A nehézséget a szekrény nem szabványos, 70 cm-es mélysége (a standard maximum 65 cm) és a speciális ív okozta, amelyet a gyártók többsége nem vállalt. Végül sikerült olyan kivitelezőt találni, aki megvalósította a tervben szereplő elképzelést.
A konyhával kapcsolatban a háziasszony kérése egy nagy munkafelület és bőséges tárolóhely volt. Ennek megfelelően egyedi gyártású, zománcozott frontokkal és műköves pulttal ellátott sarokgarnitúra került beépítésre. A jobb oldalon toronyszekrények kaptak helyet, amelyek a hűtőszekrényt és további tárolópolcokat rejtenek. A középső szakasz kétszintes kialakítású: itt található a főzőlap a beépített elszívóval, a mosogatógép, az ivóvízszűrővel ellátott mosogató és a munkafelület. A kompozíciót egy beépített gépeket (mikrohullámú sütőt és sütőt) tartalmazó elem zárja. Az ablaknál egy megvilágított vitrines szekrény is helyet kapott a díszesebb étkészletek számára.
A tömörfából készült, kihúzható étkezőasztal matt fekete lakkozást kapott. Az étkezőasztal melletti falon látható zöld kör a nappaliból az étkezőzónába átnyúló ritmikus, térbeli falburkolat egyedi lezárása. A kör zöld színe harmonizál a konyhabútor frontjaival, nem mindennapi és élénk összhatást eredményezve.
A konyhai világításról egy mágneses sínrendszer gondoskodik, amely kétféle forgatókönyvet tesz lehetővé:
- Amikor az asztal a falnál áll, az irányított függesztékek a bal oldali sínben helyezkednek el.
- Nagyobb társaság esetén, amikor az asztalt a konyha közepére húzzák, a lámpatestek áthelyezhetők a jobb oldali sínbe.
A konyhát és a nappalit egy széles átjáró köti össze. A nappali falai fehér festést kaptak, az egyes zónákat 3D-s duropolimer panelek emelik ki. A padlót minden helyiségben francia halszálka mintában lerakott vinil burkolat fedi.
Az ablakkal szemközti fal mentén egy teljes értékű dolgozósarkot alakítottak ki tárolóhelyekkel. A szoba nagy részét a TV-zóna foglalja el egy puha sarokkanapéval, amelyet egy fekete dohányzóasztal egészít ki, kontrasztot adva az enteriőrnek.
A hálót természetes árnyalatok ölelik körül: fűzöld és meleg fehér. Az ágyvég mögötti falat természetet idéző mintával ellátott tapéta díszíti.
A választott ágy puha, kárpitozott fejvéggel rendelkezik, ami manapság kifejezetten trendi, a felnyitható ágyneműtartó pedig növeli a komfortot. A fésülködőasztal mellett elhelyezett tárolós puff bája és finomsága oldja a teret.
A hagyományos szekrényes megoldás helyett a tervezők – az ergonómiai szabályok betartása mellett – leválasztottak egy kisebb területet a hálószobából, így egy teljes értékű gardróbot sikerült kialakítaniuk.
A lodzsán a hálószoba fehér falfestését vitték tovább, ami felerősíti a beáramló fényt. Itt egy pihenőzónát rendeztek be egy kényelmes fotellal, a tárolást egy álló szekrény és egy komód biztosítja.
Fürdőszoba és vendég WC
A vizes helyiségekben a mennyezetig érő, trópusi mintás greslap jelenti a fő látványelemet. A betonhatású, nyugodt textúrájú alapburkolat háttérként szolgál, a figyelmet a dekorpanelekre irányítva. A kontraszt érdekében a szaniterek és a kiegészítők fekete színűek.
A vendég WC-ben kapott helyet a mosókonyha funkció is: itt a beépített WC és a pultra ültetett kézmosó mellett egy szekrény rejti a mosó- és szárítógépet.
A fő fürdőszobában elfért egy 170×75 cm-es kád, egy beépített tartályos WC, valamint egy függesztett szekrény pultra ültetett mosdóval, bőséges tárolóhelyet biztosítva.
további cikkek 50 és 100n2 közötti lakások lakberendezése témában | lakberendezés: Marina Kirillova | fotók: Yuri Prokofiev

































