A lakás tulajdonosa egy fiatal, céltudatos nő, aki rengeteget utazik. Mivel aktív életmódot folytat – maratont fut, kerékpárversenyeken indul és jógázik -, az enteriőrt leginkább pihenésre terveztette. A cél egy minimalista, visszafogott otthon megteremtése volt, amely tökéletes helyszín a lelassulásra és a feltöltődésre.
Ebben a cikkben többek között az alábbi lakberendezési ötleteket találod:
- Hogyan növeld optikailag a teret és a fényviszonyokat eltolható üveg válaszfallal.
- Miért lehet előnyös a sötét, „kuckós” árnyalatok használata kis alapterületen is.
- Rejtett tárolórendszerek és háztartási blokkok kialakítása a gépészeti terek kihasználásával.
- Falba süllyesztett profilok és árnyékfugák alkalmazása dekorációs elemként.

A lakás tulajdonosának elképzelései és térszervezés
A hölgy kifejezett kérése volt a sötét árnyalatok használata, kerülve az élénk színeket és a hivalkodó részleteket. Fontos szempont volt, hogy minden helyiségben elegendő tárolóhely álljon rendelkezésre, valamint változatos világítási helyzeteket lehessen kialakítani.
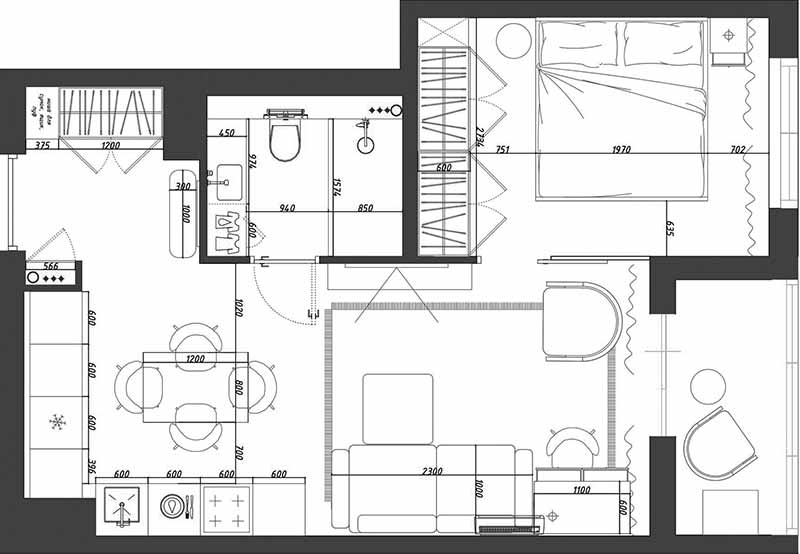
Az eredeti alaprajz módosítására nem volt szükség, mivel az elrendezés teljes mértékben megfelelt a megrendelő igényeinek. A hálószoba és az amerikai konyhás nappali közötti falat egy eltolható üveg válaszfalra cserélték, így sikerült maximalizálni a nyitottságot és a térérzetet.
Előszoba
Az előszobába egy nagyméretű ruhásszekrényt terveztek, míg a szemközti oldalon, a csövek takarására szolgáló fülkében egy kisebb háztartási blokkot alakítottak ki. A tükörfalat egy fiókos konzolasztal töri meg, amely lerakófelületként és tárolóként is funkcionál.

Konyha-nappali
A lakás nagyobb helyiségében kapott helyet a konyha, az étkező és a pihenő zóna. A projektben szereplő összes bútor egyedi tervek alapján, asztalosmunkával készült, kifejezetten a megrendelő életviteléhez igazítva. A konyhabútor két mennyezetig érő, zárt eleme közé egy megvilágított vitrint terveztek a dekorációk és az étkészlet számára.

A nappali részben egy letisztult formavilágú, sok párnával kiegészített kanapé áll, amely ideális a pihenéshez. A kompozíciót egy vékony lábú állólámpa egészíti ki. A kanapé mögötti falon dekorációs elemként süllyesztett profilokat (árnyékfugát) alkalmaztak, amely ritmusával oldja a lakás leghosszabb falfelületének monotóniáját. A kivitelezés során a gipszkartonba előre kimarták a profil helyét, magát az elemet pedig a festési munkálatok során rögzítették.

Hálószoba
A háló és a nappali közötti üvegfal extra térérzetet biztosít. A falak színét itt szándékosan sötétebbre választották, mint a többi helyiségben, ezzel teremtve meg a kuckós hangulatot a pihenéshez. Az ágy fejtámlája mögötti falat laminált bútorlappal burkolták. Az ablakkal szemben egy üveges vitrinnel kombinált gardróbszekrényt helyeztek el, amely a lakás fő tárolórendszereként szolgál.
Az ágy, bár méretei tekintélyesek, lekerekített sarkaival és formavilágával otthonos hatást kelt. A kis alapterület miatt kulcsfontosságú volt a funkcionalitás, így az ágy felnyitható szerkezettel és nagy ágyneműtartóval rendelkezik.

Fürdőszoba
A WC-vel kombinált fürdőszobában épített zuhanyzót alakítottak ki, mellyel szemben egy széles pulttal ellátott mosdószekrény kapott helyet. A zuhanyfülke üvegfalát mennyezetig érő magasságban rendelték meg, figyelembe véve a szállíthatóság és a beépíthetőség korlátait. A WC mögötti falat bútorlapból alakították ki, így a sima frontok mögött további rejtett tárolóhelyeket sikerült nyerni.

további cikkek kis lakás berendezése témában | lakberendezés: Olga Koposova és Victoria Egorova | fotók: Ivan Sorokin
























