Egy 50 négyzetméteres, kompakt városi lakás enteriőrje született újjá azzal a céllal, hogy a komfort és a karakteres, egyedi vizuális világ egyszerre érvényesüljön. A megbízás egy olyan otthon megteremtését irányozta elő, amely ideális életteret biztosít egy fiatal gyermektelen pár számára: logikus térszervezéssel, bőséges tárolókapacitással, strapabíró felületekkel és olyan részletekkel, amelyek kiemelik az ingatlant a semleges, „biztonsági játékos” megoldások sorából.

Térszervezés és az alaprajz finomhangolása
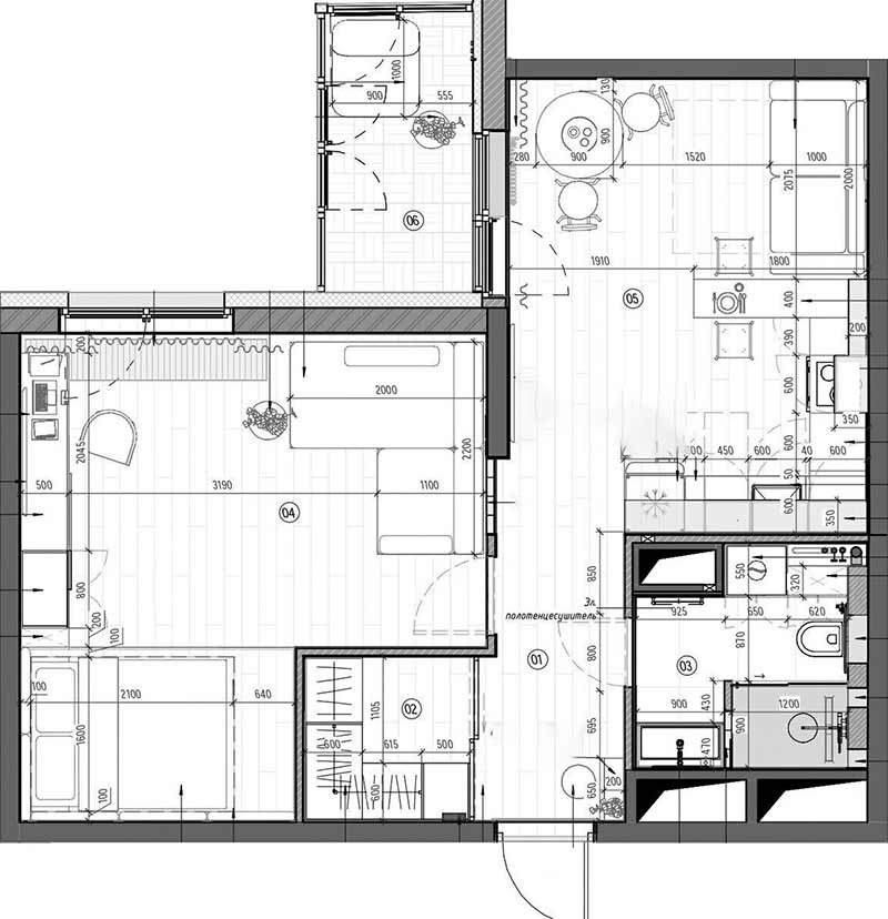
A tervezés kiindulópontját az eredeti alaprajz adta, amelyet a funkciók optimalizálása érdekében finoman átdolgoztak. A gépészetet és a falba süllyesztett szerelvényeket gipszkarton előtétfalak mögé rejtették, a zuhanyzót pedig egy épített dobogóval emelték ki. Az előszoba és a konyha közötti teret korábban elválasztó, nyílás feletti falszakaszt elbontották, így egy mennyezetig futó, légies átjáró jött létre, amely vizuálisan összekapcsolja a tereket. A közlekedőben a hagyományos szekrények helyett egy tágas, jól rendszerezhető gardróbot alakítottak ki, amelyet egy loft stílusú, tolóajtós térelválasztó szeparál el – ezáltal a tárolókapacitás maximalizálódott anélkül, hogy a bejárati zóna zsúfoltnak hatna.
Előszoba: fényjáték üvegtéglával
Az előszobában a fényáteresztő üvegtégla falrész kettős funkciót lát el: izgalmas válaszfalként jelenik meg a lakótér felé, és fényt enged a fürdőszobába. A falak itt festett felületképzést kaptak: a vlies alátétre felvitt, nedvességálló és színtartó festék nemcsak strapabíró, de egységes, nyugodt hátteret is biztosít a változatos textúrák számára.
Konyha és étkező
A 18 négyzetméteres konyha mérete lehetővé tette egy komplex funkcióegyüttes elhelyezését: a konyhabútor mellett egy teljes értékű étkező és egy vendégágyként is funkcionáló pihenősarok is helyet kapott. A kihúzható kanapét egy épített bárpult választja el a főzőzónától, amely a munkafelületet is növeli, így nem csupán térelválasztó elem, hanem aktív konyhai munkaállomás is.
A konyhatechnológia elrendezése is az ergonómiát szolgálja: a magas kamraszekrények helyett a tervező egy szélesebb hűtőszekrény mellett döntött, a sütő a főzőlap alá került, a mikrohullámú sütőt pedig a felső szekcióba integrálták. A rendszerezést a mosogató melletti kihúzható rácsok, valamint a bárpult alatti nyitott polcrendszer segítik.
A felső szekrénysor tudatosan nem fut fel a mennyezetig, elkerülve a „raktár-hatást”. A kényelmes magasságú elemek felett egy optikai trükk érvényesül: a poliuretán díszlécek és tükrök kombinációja egyfajta felülvilágító ablak illúzióját kelti, ami vizuálisan oldja a bútor tömegét. A szellős hatás érdekében a zárt elemek csak az egyik oldalon jelennek meg, míg a szemközti falon egy hangsúlyos páraelszívó és egy dekorációs fali polc kapott helyet.
A konyhai hátfal beton- és fa hatású nagylapok kombinációjából áll, amely bátran kilép a pult feletti sávból, stilárisan is összefogva a konyhát a pihenősarokkal. A tapéta és a burkolat találkozását díszlécek rendezik építészeti keretbe – itt a léc nem csupán takarás, hanem tudatos designelem.
Nappali
A fő élettérben a háló és a nappali funkciói vizuálisan elkülönülő zónákra oszlanak. A lakás teljes alapterületén egységes, kvarc alapú SPC padlóburkolat fut végig, amely a 100%-os vízállóság és a padlófűtés-kompatibilitás mellett vizuális folytonosságot teremt. A mennyezeten árnyékfugás profillal rögzített feszített fólia (Barrisol-típusú) felület készült; a kerületen futó fekete kontúr elegáns, grafikus keretbe foglalja az enteriőrt. A bútorok és a profilok találkozását precíz takarólécek teszik esztétikussá.
A TV-fal egy multifunkcionális bútorkompozíció: egy gardróbszekrény választja le a hálófülkét a munkasaroktól. A szekrény oldalán kialakított nyitott polcok éjjeliszekrényként szolgálnak az ágy felől, míg a nappali felé a fiókos médiagység és egy kompakt home office sarok folytatja a sort. A falon megjelenő betonhatású dekorvakolatot a súrolófények emelik ki, fókuszponttá avatva ezt a felületet.
Háló zóna: rejtett tárolás az alkóvban
A hálórész egy intim falfülkében, egy épített dobogón kapott helyet. A dobogó nem csupán szinteltolás, hanem egy komplex tárolórendszer is: a szerkezetben mély fiókok nyelik el az ágyneműt, a felnyitható ágyrács alatt pedig bőröndök és nagyobb tárgyak számára alakítottak ki helyet. Ez a megoldás tehermentesíti a lakás többi részét a szekrényektől, így a nappali zóna levegős és tágas maradhatott.
Fürdőszoba
A fürdőszoba kialakítása a kompakt luxus jegyében zajlott. A mosdó mellett az üvegtégla fal vizuális kapcsolatot teremt az előszobával. A falba szerelt gépészetet gipszkarton fal rejti, amelyben a klasszikus szekrény helyett egy mikrocementtel burkolt, poszterrel díszített falfülke biztosítja a tárolást.
további cikkek 50 és 100n2 közötti lakások lakberendezése témában | lakberendezés: Victoria Krylova | fotók: Yaroslav Kone



























