A lakás egy kreatív, a dizájn területén dolgozó fiatal hölgy otthona. Az enteriőr alaphangulatát a tompított zöld és szürke tónusok adják meg, amelyek olyan természetes árnyalatokat idéznek mint a a puha moha, a füstös eukaliptusz és az elegáns grafit. Ezek a nyugodt színek harmonikus hátteret biztosítanak, amelyen különösen hatásosan érvényesülnek a változatos textúrák és az élénk színfoltok.

A tér elrendezése
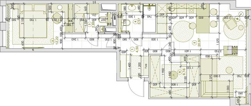
A lakás alaprajza, a hosszanti elrendezésű, keskeny forma gyakori, ugyanakkor a tervezők számára az egyik legnagyobb kihívást jelentő típus. Előnye azonban, hogy a lakás két homlokzatán is vannak ablakok, ami lehetővé teszi a kereszthuzatot, így a természetes átszellőztetés is hatékonyabb. A tulajdonos legfőbb kérései egy tágas gardróbszoba, egy különálló mosókonyha és egy konyhasziget voltak. A végső elrendezés így egy kompakt konyha-nappaliból, hálószobából, előszobából, mosókonyhából, gardróbból és fürdőszobából áll.
Ez is érdekelhet: Ne legyen modern minimál – kérte az 50m2-es lakás tulajdonosa
Az előszoba azonnal bevezet a lakás színvilágába és stílusába: világos, szürkés árnyalatú falak, mélyzöld komód, nőies, poros pink ülőke, modern vonalak és formák. A lakás egyik fénypontja a tágas, üvegajtós, jól átlátható gardróbszoba, ahol minden négyzetcentimétert a tárolás szolgálatába állítottak. A teljes berendezés egyedi asztalosmunka, amely a költségvetés jelentős részét tette ki.
Ez is érdekelhet: Anya és iskolás fia 50m2-es otthona nagy lakásfelújítás után
A konyhabútor egyedileg, asztalosmunkával készült, a tárolókapacitás maximalizálására törekedve. A padlótól mennyezetig érő, oszlopszerű elemek és a felső szekrénysor optimális térkihasználást biztosítanak. A nagyméretű félsziget nem csupán plusz munkafelületet és étkezőasztalt kínál, hanem a lakás közösségi életének centrumaként is szolgál.
Ez is érdekelhet: Elegáns berendezés, harmonikus színvilág, átlátszó térelválasztók, 50m2
A legizgalmasabb tervezői kihívást a két helyiség összenyitása után a nappali közepére került tartóoszlop jelentette. Ezt a statikai elemet egy multifunkcionális térelemmé alakították, amely magában foglalja a biokandallót, a könyvespolcokat és a TV-t is. Ez a megoldás finoman zónázza is a teret, kijelölve a kanapé körüli pihenőrészt.
A falak a „greige” népszerű árnyalatát kapták – ez az elnevezés az angol „grey” (szürke) és „beige” (bézs) szavak ötvözete, és egy elegáns, semleges szürkés-bézs tónust jelöl. A bársony kárpitozású kanapé a kifakult olíva tompított zöldjében pompázik, a kézzel készített, élénk színű díszpárnák pedig játékosságot csempésznek az összhatásba.
A tulajdonos kedvenc pihenőhelye a konyha után következő tér, lábtartóval kiegészített olvasófotellel, a biokandalló mellett.
Ez is érdekelhet: 50m2-en a stílusos teret a berendezés színes elemei keltették életre
A hálószobában a puha, szövettel kárpitozott ágytámla és a rétegzett, finom textíliák otthonosságot sugároznak. A „greige” falak és a meleg tölgyfa furnér panelek harmonikus egységet alkotnak, amelyet az egyedi világítási megoldások – a falikarok és a sárgaréz függesztékek – tesznek még hangulatosabbá. A térkihasználás itt is példaértékű: a beépített szekrények egy kompakt dolgozó- vagy fésülködősarkot is magukban foglalnak.
Ez is érdekelhet: Megunt berendezés teljes frissítése fiatal nő 50m2-es, kétszobás otthonában
A fürdőszobában egy nagyméretű, épített zuhanykabin és számos rejtett tároló biztosítja a funkcionalitást. A kényelmes méretű mosdópult tágas rakodófelületet kínál a mindennapi készülődéshez. A gondosan megválasztott, modern burkolatok egységes és letisztult megjelenést kölcsönöznek a helyiségnek, kellemes atmoszférát teremtve ebben az intim térben.
Ez is érdekelhet: Fiatal nő modern otthona sötét színekkel, nyitott elrendezéssel, 50m2
további cikkek 50 és 100n2 közötti lakások lakberendezése témában | lakberendezés: Victoria Kolesnikova | fotók: Mikhail Bravy


























