’90-es években épült lakóházban vásárolt lakást a fiatal gyermekes család. A lakberendező feladata a volt, hogy a tereket finomhangolva élhető és funkcionális elosztást alakítson ki ügyfeleinek, és a kényelmes otthon megteremtése során a szokványos szürke-bézs sémákat kerülve hozzon létre egy egyedi karaktert sem nélkülöző, esztétikus enteriőrt.

Átalakítás
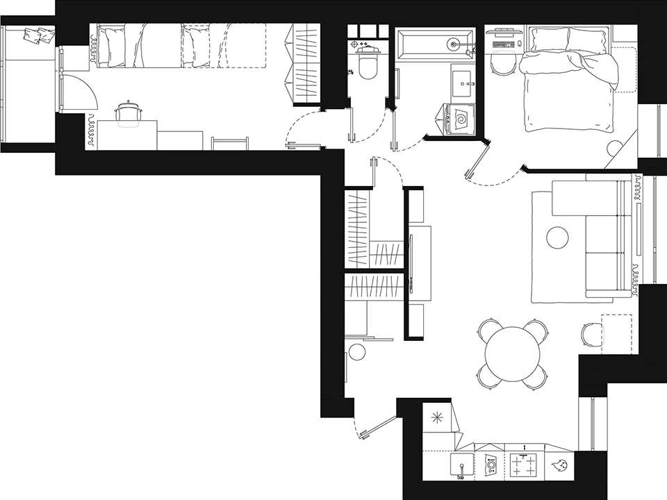
A lakás eredeti elrendezése – egybenyitott konyha-nappali, két kisebb szoba, külön fürdő és WC, valamint két gardrób – alapvetően megfelelt a család igényeinek, így a tulajdonosok nem szerettek volna jelentős változtatásokat. A tervező csupán a fürdőszoba és a háló bejáratának geometriáját finomította a harmonikusabb térérzet érdekében. A legnagyobb kihívást az alacsony mennyezet és a szűkösnek tűnő terek jelentették, amelyeket optikai trükkökkel és átgondolt bútortervezéssel sikerült ellensúlyozni.
Ez is érdekelhet: Kétgyermekes család 60m2-es otthona hangulatos, időtálló berendezéssel
Előszoba
A bejárati zóna központi eleme a mini-gardrób, amely a kabátok és cipők tárolására szolgál. Ezt egy elegáns, üvegezett tolóajtóval választották le, amely nem zárja le teljesen a teret, mégis diszkréten elrejti a tároló funkciót. A padlón világosszürke, beton hatású greslapot alkalmaztak, amely alá padlófűtést telepítettek a maximális komfort érdekében.
Ez is érdekelhet: Tipikus kétszobás lakás izgalmasan újragondolva, 60m2
Konyha
A konyha rendkívül tágas és funkcionális lett. A tervező mennyezetig érő, sima felületű, matt zöld frontokat választott, amelyeket könnyű tisztán tartani, megkönnyítve ezzel egy dolgozó édesanya mindennapjait. A hűtőszekrényt, a sütőt, a mikrohullámú sütőt és a mosogatógépet beépítették, így a konyha egységes és letisztult megjelenést kapott. A bőséges tárolóhely biztosítja, hogy minden eszközt elpakolhassanak.
Ez is érdekelhet: Diszkrét eklektika: fiatal nő 60m2-es lakása
Nappali
A nappali szervesen kapcsolódik a konyhához; a két teret a zöld szín használata köti össze, amely a konyhabútoron és a nappali kanapéjának kárpitján is visszaköszön. A szórakoztató központot egy TV-állvány és két oldalsó polcrendszer alkotja, amelyeket a család személyes tárgyakkal, fotókkal és emlékekkel tölthet meg. A világítási koncepció itt is a rétegzettségen alapul: az általános mennyezeti fény mellett dekoratív fali- és asztali lámpák, valamint állólámpák számára kialakított csatlakozók gondoskodnak a meghitt, esti hangulatról.
Ez is érdekelhet: Pompás terek fiatal nő 60m2-es lakásában, színes, eklektikus berendezés
Hálószoba
A lakberendező a kis alapterületű hálószobának egy mélyzöld árnyalattal adott meghitt “ékszerdoboz” hangulatot. A tér zsúfoltságának elkerülése érdekében a ruhák tárolását a folyosón kialakított gardróbba szervezték ki. A szobában csupán a legszükségesebb bútorok kaptak helyet: az ágy, egy éjjeliszekrény és egy kis asztal, amely fésülködő- vagy akár munkaasztalként is funkcionálhat. Az ablakpárkány helyére egyedi méretű, a falnál ferdén kiszélesedő pultlap került, egy második kompakt munkaállomást létrehozva. A szobákban és a nappaliban fa hatású, strapabíró SPC vinyl padlóburkolat biztosítja az egységes és meleg hatást.
Ez is érdekelhet: Időtálló lakberendezés kétgyermekes család 60m2-es otthonában
Gyerekszoba és erkély
A gyerekszoba alaphangulata semleges, a bútorokon és a kiegészítőkön megjelenő élénk színek teszik vidámmá a berendezést. Az ablaknál egy íróasztalt és egy könyvespolc helyeztek el. A szobából nyíló beépített erkély egyfajta bónusz helyiségként funkcionál. A tervező itt a színes, mintás padlólapra és a praktikus bútorokra helyezte a hangsúlyt. Egy kihúzható tárolófiókokkal ellátott mini-kanapé került ide, amelyben kényelmesen elfér egy összecsukható roller és egyéb szezonális tárgyak is, így a kis alapterületű helyiség tároló funkciót is ellát.
Ez is érdekelhet: Fiatal nő szép otthona, ahol a semleges színvilág nem unalmas, 60m2
Fürdőszoba és WC
A fürdőszobát világos tónusok, enyhén texturált falicsempék és diszkrét geometrikus mintázatú padlólapok jellemzik. A térkihasználás jegyében itt kapott helyet egy háztartási szekrény a mosó- és szárítógépel, a mosdó alatti bútor pedig színében harmonizál a konyhabútorral. A különálló WC-ben a falak felső részét festették, és a beépített WC-tartály felett egyedi tárolót alakítottak ki. A tervező leleményességét dicséri, hogy a szekrényajtók frontjait pontosan a fal színére sikerült legyártatni, így a tároló szinte észrevétlenül olvad bele a környezetébe. Az egységes, kékeszöld színvilág finoman itt is megjelenik, összekötve a lakás különböző helyiségeit.
Ez is érdekelhet: Hosszú, keskeny 60m2-es lakás szép berendezése – klasszikus stílus, keleti motívumok, természetes színárnyalatok
további cikkek 50 és 100n2 közötti lakások lakberendezése témában | lakberendezés: Nina Klyus | fotók: Margarita Nizamova


























