Meleg okker árnyalatok, antracit és fa bútorfrontok, természetes textúrák és vintage tárgyak segítségével alkotta meg a tervező egy kis lakás otthonosan elegáns enteriőrjét. A koncepció modern, a kinfolk stílusra utalásokkal.
A Kinfolk-stílus a dán hygge életérzésből és a minimalista esztétikából merít. Lényege a lassú élet, a természetes anyagok, a nyugodt színek és a letisztult formák harmóniája. A terekben sok a fény, a természetes textúra (len, fa, kerámia), és minden tárgynak megvan a maga funkciója. A cél: egyszerű, csendes, mégis meleg és személyes otthon – a túlzott díszítés helyett az élet minőségére helyezve a hangsúlyt.

A lakás ablakai egy 19. századi épületre néznek. A szemközti ház letisztult formavilága és semleges homlokzati színei inspirálták az enteriőr palettájának kialakítását. „Szerettük volna elkerülni a személytelenséget, ezért a megszokott világos falak helyett egy meleg okkeres tónus mellett döntöttünk. Célunk az volt, hogy a lakás egész évben otthonosságot sugározzon. Ez egyfajta közös kísérletezés volt a megrendelőkkel, de az eredményével mindannyian elégedettek lettünk” – meséli a tervező. „A másik meghatározó szín az antracit lett, amely a konyhabútor frontjain köszön vissza, majd a textíliákban, a kanapén és a székek kárpitján feketébe mélyül. Ezzel egy karakteres, grafikus hatású teret hoztunk létre.”
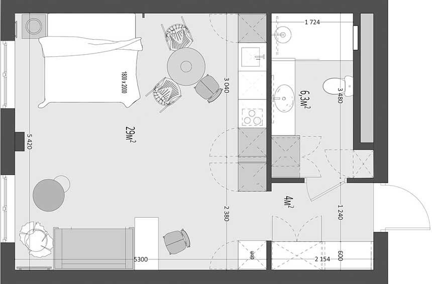
Az ingatlan eredetileg egyetlen, téglalap alaprajzú, nagy belmagasságú tér volt, két hatalmas, padlótól mennyezetig érő franciaablakkal. „Nem akartuk falakkal felszabdalni a teret, hogy megőrizzük a levegős, tágas érzetet. Ez persze kihívást jelentett a funkciók zónásításánál.
Az előszobába méretes beépített szekrényt terveztek. „A szekrényben egy széles, tükrös fülkét alakítottunk ki ülőpadkával, így nem volt szükség további bútordarabokra a szűkös előtérben. A konyha és a gardrób egyetlen, a fal síkjába simuló tömböt alkotnak. Tudatosan törekedtem rá, hogy ez a blokk vizuálisan ne törjön meg, így is őrizve az enteriőr egységét.” Az étkező zónában a robusztus asztalt könnyed vonalvezetésű fa székekkel egészítették ki.
Az ággyal szemben kapott helyet a kanapé; a megrendelők kérésére egy ágyazható modellt választottak, a vendégek fogadását is szem előtt tartva.
Olvastad már? Otthonos minimalizmus meleg karamell barna színvilággal 40 m²-en
Az ágy került közelebb az ablakokhoz, ahol a puha római rolók nappal kellemesen szűrik a fényt, este pedig biztosítják az intimitást. A függőlámpa, akárcsak az éjjeliszekrény dekorációja, a hatvanas évek formavilágát idézi.”
A kompakt alapterület ellenére sikerült egy tágas és funkcionális fürdőszobát is kialakítani. A helyiség központi eleme a lebegő, Carrara márványból készült mosdópult, amely alatt nyitott polc ad helyet a törölközőknek. A polc smaragdzöld árnyalata a tükörkereten is visszaköszön, finom kontrasztot alkotva a márvány rajzolatával. A tervező a tárolásról is gondoskodott: a beépített szekrények frontjai diszkréten rejtik a mosógépet és a háztartási eszközöket.
további cikkek kis lakás berendezése témában | lakberendezés: Valentina Ivannikova | fotók: Sergey Krasyuk






















