Íves részletek, falra akasztott szőnyeg, mély tónusú falfestékek, funkcionális alaprajz és jól szervezett tárolás – a tervező a kortárs kényelmet trendi megoldásokkal ötvözte. Az enteriőr alapja a skandináv stílus, minimalista és franciás elemekkel kiegészítve, így eklektikus összhatás jött létre.
Az íves motívum a lakás több pontján megjelenik: a nappali és konyha közötti kis válaszfalnál, a konyha hátfal csempe burkolatán és a hálószoba falának színes festésén. A hálóban például a mustársárga ív a napfelkeltét szimbolizálja.

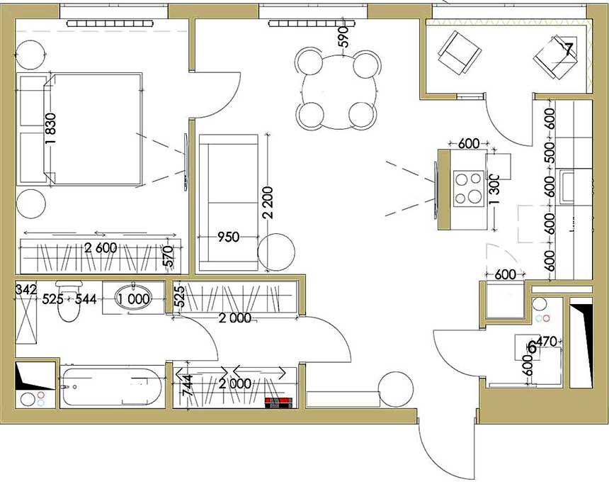
Átalakítás
A lakás szerkezetkész állapotban volt: az építtető csak a fürdőszobát, a WC-t és a loggiát választotta le. A tervező az alábbi alaprajzot alakította ki: amerikai konyhás nappali, külön hálószoba, gardróbszoba az előszobában, ahonnan közvetlen átjárás nyílik a fürdőbe, a WC helyén pedig mosókonyha. A hűtőszekrény beépítéséhez a korábbi WC területének egy részét használták.
„Szerettem volna egy közös étkező- és nappalit, viszont nem kedvelem a konyhával teljesen egybenyitott tereket, ezért egy mindkét irányból körbejárható, íves válaszfal mellett döntöttünk, amely mögött elfért a konyhasziget is. Ez korszerű és rendkívül praktikus megoldás” – magyarázza a tervező.
Burkolatok és dekoráció
A falakat festették, a padlót faerezetes kvarc vinyl burkolat fedi, az előszobában márványmintás greslapot alkalmaztak, ugyanez a gres került a fürdőszoba padlójára és falaira is.
A konyha és a nappali közötti íves fal formája visszaköszön a hálószobai ágyvég falának festésében; itt hangsúlyként mustársárga színt választottak. A konyha hátfal csempéje szintén az íves koncepciót követi – az ívek újra divatosak.
A kanapé mögötti fal díszítésére a tervező szokatlan megoldást választott: gobelint függesztettek fel. Ez a régmúltból visszatérő trend ma ismét aktuális, a példa pedig mutatja, hogy a faliszőnyeg modern enteriőrben is új életre kelhet.
Bútorok és tárolórendszerek
Az alaprajz kialakításakor a tervező átjárható gardróbszobát alakított ki az előtérben, amelyet élénkpiros függöny takar. Itt nemcsak ruhák, hanem kabátok és cipők is elférnek, így a bejárati zónát nem terheli gardróbszekrény.
Minden háztartási tároló, beleértve a mosógépet is, a mosókonyhában kapott helyet, melynek ajtaja szintén az előszobából nyílik.
A hálószobában tükrös tolóajtós gardróbszekrényt építettek be, ami vizuálisan tágítja a kis alapterületű helyiséget.
A konyhába egyenes konyhabútort terveztek, a felső szekrények a mennyezetig érnek. A hűtőszekrényt falfülkébe süllyesztették, a konyhasziget pedig a munkaháromszög teljes értékű eleme, mivel itt kapott helyet a főzőlap és a sütő.
Világítás
Általános megvilágításként fekete sínrendszeres lámpákat alkalmaztak, amelyek hangsúlyos módon érvényesülnek a fehér mennyezeten, emellett forgatható, páros spotlámpákat is elhelyeztek. Az étkezőasztal fölé dekoratív csillárt választottak, melynek konstrukciója szintén íves formákat tartalmaz. A hálószobában éjjeliszekrényeken álló lámpák biztosítanak kiegészítő fényt, a fürdőszobában pedig háttérvilágításos tükör szolgál feladatvilágításként.
további cikkek 50 és 100n2 közötti lakások lakberendezése témában | lakberendezés: Mia Grabchak | fotók: Maxim Kanakin






















