A 68m2-es lakásban egy nő és tinédzser fia élnek, akik ismerőseik ajánlása alapján keresték meg a lakberendezőt. Visszafogott, finoman férfias hangulatú berendezésre vágytak a szürke lágy árnyalataival, amelyet egyedi részletekkel és finom textúrákkal szerettek volna kiegészíteni. Fontos volt, hogy a lakás funkcionálisan is megfeleljen mindkettőjük igényeinek: két különálló hálószobára és egy közös konyha-nappalira volt szükségük.

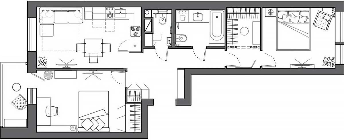
Eredeti állapot és térszervezés
A lakás eredeti elrendezését csak kisebb mértékben módosították. Az eredetileg konyha-nappali, két szoba, illetve különálló fürdő és WC helyiségekből álló lakást úgy alakították át, hogy az anya hálószobáját gardróbbal egészítették ki. A fiú szobája és az előszoba közötti válaszfalat úgy módosították, hogy mind a szobában, mind az előtérben praktikus, beépített tárolóhelyeket tudjanak kialakítani.
Dekoráció és belsőépítészet fő jellemzői
A lakás uralkodó színe a tulajdonos kedvence, a szürke, melyet meleg bézs árnyalatok egészítenek ki. A lakás falain festéket és dekoratív vakolatot használtak – tóbbit kiemelten a nő hálószobájában alkalmazták. A szobák padlóburkolata halszálka mintájú tölgyfa parketta, míg a konyhában és az előszobában szürke kőhatású greslap található. A fürdőszobában nagyméretű, betonhatású greslapokat alkalmaztak.
A finom részleteket vintage bútorokkal, természetes textíliákkal és egyedi kiegészítőkkel adták a berendezéshez. Különleges darabok teszik egyedivé a lakás, mint például a fürdőszobai bútoron található, természetes kövekkel díszített réz fogantyúk, vagy a hálószoba falát díszítő porcelánok.
Világítás
A világítást funkcionális és dekoratív szempontból is gondosan megtervezték. A vintage lámpák közül kiemelkedik az étkezőasztal fölötti “Pitypang” lámpa. Emellett modern sínrendszeres spotvilágítók, minimalistára tervezett fali lámpák és olvasólámpák biztosítják a megfelelő fényt a különböző helyiségekben
Előszoba, gardrób és tárolók
Az előszobában átgondolt tárolórendszereket alakítottak ki. A bejárat mellett egy nyitott részt tartalmazó szekrény található kabátakasztóval, ülőhellyel és cipőtartóval. A felső, zárt szekrényrészek a szezonális ruhák tárolását szolgálják. A bejárattal szemben kisebb beépített gardróbszekrényt helyeztek el.
Konyha – nappali
A konyha minimalista és letisztult dizájnnal készült, fogantyú nélküli szekrényfrontokkal és egységesen, ugyanabból az anyagból készült munkalappal, illetve hátfallal. A tárolásról a plafonig érő felső szekrények és egy plusz beépített szekrény gondoskodik. Az étkező az asztal faragott lábaival és a mid-century stílusú székekkel lágyítja a konyha szigorú minimalizmusát.
A nappaliban található szürke kanapé pár árnyalattal sötétebb, mint a falak, a színpaletta nyugodt, pihentető légkört teremt.
Hálószoba
Az anya hálószobájából gardróbhelyiség nyílik, így a hálóban csak minimális berendezés található: ágy, éjjeliszekrény és egy kényelmes karosszék.
Gyerekszoba
A kamasz fiú szobája modern, de visszafogott stílusú, a lakás többi részével harmonizáló színpalettával készült. A helyiségben egy beépített gardróbszekrény és egy kombinált tárolópolcokkal ellátott íróasztal kapott helyet. A szoba egyik jellegzetes darabja a vintage stílusú forgószék.
Fürdőszoba és WC
A fürdőszobában vintage stílusú fabútort választottak a mosdókagyló alá, továbbá egy magas tárolószekrényt is elhelyeztek, amelyben a mosógép is helyet kapott. A külön helyiségben kialakított WC-ben egy kis mélységű szekrény szolgálja a háztartási eszközök tárolását.
további cikkek 50 és 100n2 közötti lakások lakberendezése témában | lakberendezés: Irina Kalinina | fotók: Natalia Mavrenkova
































