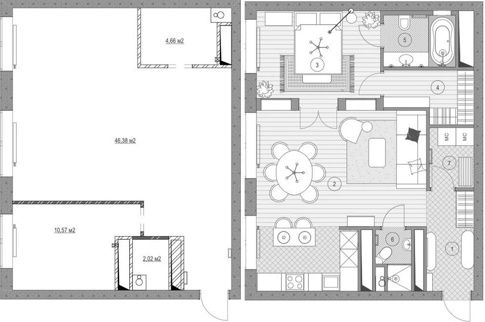
Fiatal nő kereste meg a lakberendezőt, aki 60m2-es lakásának elosztását szerette volna az igényeihez szabni, tágas, mégis praktikus kialakítással. Kiemelt feladat volt a könyveinek megtalálni a legjobb helyet. A lakás szabad alaprajzzal került átadásra, külön kijelölt zónákkal a konyha és a fürdőszoba számára.

Eredeti állapot és a térszervezés
A térszervezésben központi szerepet kapott a nappali és konyha egyesítése, amelyből dupla ajtón keresztül nyílik a hálószoba. A lakás érdekessége, hogy a tulajdonos lemondott a tévé zónáról, így vált lehetővé egy klasszikus enfiládos (egy tengely mentén sorba nyíló helyiségek) elrendezés, amely vizuálisan még tágasabbá teszi a lakást.
A hálószobához külön fürdőszoba és gardrób tartozik, továbbá a bejárati térben helyet kapott egy külön mosókonyha és vendég WC is.
Dekoráció és belsőépítészet fő jellemzői
A lakás falait egységesen púderes bézs árnyalatú festékkel díszítették, míg a dekorációs hangsúlyt a magas mennyezeti stukkók és ugyanilyen magas lábazati elemek adják. A padlóburkolat halszálkás mintázatú fa parketta.
Az előszoba és a konyha padlóburkolata praktikus és strapabíró kőhatású greslap, a fürdőszobákban szintén greslapot és nedvességálló dekoratív vakolatot alkalmaztak.
A tulajdonos könyvgyűjteményének elhelyezésére a nappali falába süllyesztett, egyedi kialakítású polcrendszert terveztek, amely már az alaprajz kialakításánál előre megtervezett fali fülkékbe került.
A konyhabútor alsó szekrényei fa hatású frontokkal készültek, míg a felső szekrények matt fehérek és fogantyú nélküliek. A konyha és nappali közötti vizuális elválasztást egy konyhasziget adja.
további cikkek 50 és 100n2 közötti lakások lakberendezése témában | lakberendezés: Jevgenyija Busueva | fotók: Darja Szokolova


























