Ez a lakás bővelkedik a váratlan megoldásokban: a konyhabútor vonalát egy stílusos, beépített pad folytatja, a hálószoba falát egyedi, kézzel festett motívum díszíti, az ajtók többsége pedig zsalugáter kialakítású harmonikaajtó. Az enteriőr legfőbb ereje mégis abban rejlik, ahogyan a bézs és a földszínek rétegződése mélységet és karaktert ad a tereknek.

A „városi barlang” koncepciója
A lakás belső kialakítását egy fiatal, kreatív pár igényeire szabva tervezték meg. A megbízók olyan belsőépítészeti megoldásokat kerestek, amely az optimális funkcionalitás mellett emlékezetes vizuális élményt is nyújt. A leendő lakók életmódjához – akik a városközpontban dolgoznak, rajonganak a művészetekért és a kortárs designért, de otthonukban a nyugalom szigetét keresik – a tervezők a „városi barlang” koncepcióját alkották meg. Az enteriőrt a földszínek dominanciája, a természetes textúrák kombinációja, valamint a Bauhaus és a mid-century modern stílusjegyek finom találkozása határozza meg.
Térszervezés és alaprajzi átalakítás
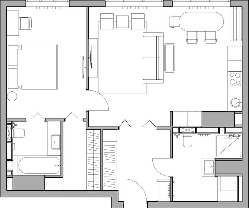
Az eredeti, zárt helyiségekből álló alaprajzot a tervezők radikálisan újragondolták a modernebb térélmény érdekében. A korábbi sötétebb konyhát és a nappalit egybenyitották, így egy tágas, két hatalmas ablakkal rendelkező, fényárban úszó közösségi zóna jött létre. A kényelmet és a funkcionalitást növelve a lakásban két fürdőszobát alakítottak ki: egy privát egységet a hálószobához kapcsolva, és egy vendégmosdót az előtérnél, ahol diszkrét módon a háztartási helyiséget is elhelyezték. A tárolást egy önálló gardróbszoba teszi teljessé.
Előszoba
A beépített szekrények tükrös frontokat kaptak, amelyek a mennyezet süllyesztésével együtt azt az illúziót keltik, mintha a tárolók észrevétlenül a falba simulnának. A lakás egyik legkarakteresebb eleme, a fa zsalugáter már itt megjelenik: a gardrób és a helyiségek közötti ajtókon használt lécezett struktúra ritmust és természetes textúrát visz a térbe.
Ez is érdekelhet: Kreatív fiatal nő háromszobás otthona – kevés pénzből inspiráló, színes berendezés 70m2-en
Nappali és közösségi tér
A nappali zónájában a földszínek és az organikus formák uralkodnak. A pihenősarok központi eleme egy hatvanas évek stílusát idéző, kényelmes kanapé, amelyet egy nagyméretű puff és puha díszpárnák egészítenek ki. A tervezők tudatosan elhagyták a hagyományos függönyözést; helyette stílusos fa reluxákat alkalmaztak. Ezek a zsalugáteres ajtókkal és a radiátorburkolatokkal együttműködve a függőleges és vízszintes vonalak izgalmas játékát teremtik meg. A világítást és a dekorációt vintage elemek és kézműves kerámiák teszik egyedivé, fokozva a „kézzel készített” otthon érzetét.
Ez is érdekelhet: A klasszikus polgári hangulathoz 53 m² is elég volt: kétszobás lakás vintage eleganciával
Konyha és étkező
A konyha kialakítása a Bauhaus esztétika előtt tiszteleg. A tervezők a felső szekrénysor magasságának csökkentésével tették szellősebbé a falat, ahol a texturált furnér és a modern alsó elemek kontrasztja érvényesül. A konyhai technológiát – a sütőt és a mikrohullámú sütőt – egy különálló, falba süllyesztett oszlopba integrálták, amely egy tartópillért is elrejt, így a gépek a nappali felől nézve szinte láthatatlanok maradnak.
Az étkezőben egyedi tervezésű kerek asztal körül foglalnak helyet az olasz design klasszikusai: az 1980-as évekből származó, természetes cserzett bőrrel bevont Belotti székek. Az asztal felett az Aromas elegáns függesztéke biztosítja a hangulatvilágítást. A konyhai hátfal és a pihenőpad puha párnáinak színvilága finom vizuális kapcsot teremt az étkező és a főzőzóna között.
Hálószoba és gardrób
A hálószoba leglátványosabb eleme a fejtámla mögötti falrész, amelyre egyedi, kézzel festett motívum került. Ez a „sziklarajzokra” emlékeztető grafika mélyíti el a barlang-koncepciót, miközben művészi értéket ad a helyiségnek. A kényelmet és a természetességet hangsúlyozza a lenvászon ágynemű és a puha, texturált szőnyeg. A világításért a Market SET különleges csillárja és a La Redoute letisztult falikarjai felelnek, az utóbbiak a hálószobában elhelyezett kompakt íróasztal munkafényét is adják. A hálóból közvetlen átjárás nyílik a tágas, zsalugáteres ajtóval leválasztott gardróbba.
Fürdőszobák
A fürdőszobákban is folytatódik a természetközeli esztétika. A „barlangi” hangulatot egy egyedi beton mosdókagyló koronázza meg, amelynek különleges, sötét tónusát egy véletlen gyártási folyamat eredményezte, tökéletesen illeszkedve a tervezői elképzeléshez. A kiegészítő világításként használt, H&M Home kollekcióból származó falikarok és a válogatott kerámia kiegészítők teszik teljessé a spa-élményt nyújtó, intim teret.
további cikkek 50 és 100n2 közötti lakások lakberendezése témában | lakberendezés: Via interior buro | fotók: Olga Meleketsova

























